Connectez-vous/S’inscrire
Votre e-mail a été envoyé.
Zona centre Lot | Résidentiel | 0,04 ha | À vendre | 540 000 € | Calella, Barcelona 08370



Certaines informations ont été traduites automatiquement.
INFORMATIONS PRINCIPALES SUR L'INVESTISSEMENT
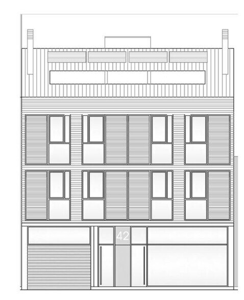
- Proyecto con seis viviendas, local comercial y aparcamiento.
- Fachada amplia y profundidad ideal para distribución eficiente.
- Potencial edificable de más de 1.100?m2 útiles.
- Alta demanda residencial y turística en el centro urbano.
RÉSUMÉ ANALYTIQUE
Disponible en venta estupenda parcela urbana ubicada en pleno centro de Calella, a escasos pasos de la playa y rodeado de actividad comercial.
Cuenta con una superficie de 392?m2, una fachada de 11,16 metros y una profundidad de 35,06 metros, el terreno ofrece una configuración ideal para maximizar el aprovechamiento edificable.
La parcela permite construir hasta 1.148?m2 útiles distribuidos en planta sótano, planta baja, dos plantas piso y planta bajo cubierta. El proyecto previsto contempla la edificación de seis viviendas, un local comercial en planta baja, siete plazas de aparcamiento y siete trasteros, lo que responde perfectamente a la demanda urbana de vivienda con servicios complementarios.
Este solar representa una inversión con potencial de retorno tanto por venta como por alquiler.
Cuenta con una superficie de 392?m2, una fachada de 11,16 metros y una profundidad de 35,06 metros, el terreno ofrece una configuración ideal para maximizar el aprovechamiento edificable.
La parcela permite construir hasta 1.148?m2 útiles distribuidos en planta sótano, planta baja, dos plantas piso y planta bajo cubierta. El proyecto previsto contempla la edificación de seis viviendas, un local comercial en planta baja, siete plazas de aparcamiento y siete trasteros, lo que responde perfectamente a la demanda urbana de vivienda con servicios complementarios.
Este solar representa una inversión con potencial de retorno tanto por venta como por alquiler.
INFORMATIONS SUR L’IMMEUBLE
| Prix | 540 000 € | Type de bien | Terrain |
| Type de vente | Investissement ou propriétaire occupant | Sous-type de bien | Résidentiel |
| Nb de lots | 1 | Surface totale du lot | 0,04 ha |
| Prix | 540 000 € |
| Type de vente | Investissement ou propriétaire occupant |
| Nb de lots | 1 |
| Type de bien | Terrain |
| Sous-type de bien | Résidentiel |
| Surface totale du lot | 0,04 ha |
1 LOT DISPONIBLE
Lot
| Prix | 540 000 € | Surface du lot | 0,04 ha |
| Prix par ha | 13 776 976,52 € |
| Prix | 540 000 € |
| Prix par ha | 13 776 976,52 € |
| Surface du lot | 0,04 ha |
Parcela urbana de forma rectangular que cuenta con 11,16 metros de fachada y una profundidad de 35,06 m2. Un total de 392 m2 sobre terreno llano en bruto.
DESCRIPTION
Disponible en venta estupenda parcela urbana ubicada en pleno centro de Calella, a escasos pasos de la playa y rodeado de actividad comercial. Cuenta con una superficie de 392?m2, una fachada de 11,16 metros y una profundidad de 35,06 metros, el terreno ofrece una configuración ideal para maximizar el aprovechamiento edificable.
1 1
1 sur 5
VIDÉOS
VISITE EXTÉRIEURE 3D MATTERPORT
VISITE 3D
PHOTOS
STREET VIEW
RUE
CARTE
1 sur 1
Présenté par
Zona centre
Vous êtes déjà membre ? Connectez-vous
Hum, une erreur s’est produite lors de l’envoi de votre message. Veuillez réessayer.
Merci ! Votre message a été envoyé.

