Votre e-mail a été envoyé.
Informations principales sur l'investissement
- Accès direct avec extérieurs privatifs
- Parkings disponibles
- Immeuble rénové et sécurisé
Résumé analytique
L’immeuble est situé dans un environnement tertiaire établi, à proximité immédiate des transports en commun (métro ligne 10, tram T2, bus). Le quartier offre un cadre verdoyant et une excellente accessibilité. De plus, l'immeuble a bénéficié d'une restructuration totale.
3 Lots disponibles
Lot Bât B
| Surface du lot | 607 m² | Usage du lot en coprop. | Bureau |
| Prix | 4 856 000 € | Type de vente | Propriétaire occupant |
| Prix par m² | 8 000,85 € |
| Surface du lot | 607 m² |
| Prix | 4 856 000 € |
| Prix par m² | 8 000,85 € |
| Usage du lot en coprop. | Bureau |
| Type de vente | Propriétaire occupant |
Description
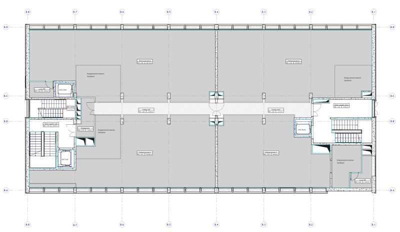
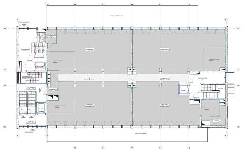
Ce lot situé en rez-de-chaussée bénéficie d’un accès direct et d’espaces extérieurs privatifs, offrant un cadre agréable et fonctionnel. Les plateaux sont livrés brut, permettant une grande flexibilité pour l’aménagement. L’immeuble propose des services modernes tels qu’un hall d’accueil indépendant, des ascenseurs neufs et des parkings pour faciliter la mobilité.
Notes sur la vente
Excellente opportunité pour un propriétaire occupant.
Floor Plan
Floor Plan
Interior Photo
Floor Plan
Interior Photo
Floor Plan
Lot Bât B
| Surface du lot | 639 m² | Usage du lot en coprop. | Bureau |
| Prix | 5 435 750 € | Type de vente | Propriétaire occupant |
| Prix par m² | 8 506,82 € |
| Surface du lot | 639 m² |
| Prix | 5 435 750 € |
| Prix par m² | 8 506,82 € |
| Usage du lot en coprop. | Bureau |
| Type de vente | Propriétaire occupant |
Description
Ce plateau situé au premier étage bénéficie d’une luminosité optimale et d’un environnement calme. Les espaces sont livrés brut, offrant une liberté totale pour l’aménagement. L’immeuble dispose d’un hall d’accueil indépendant, d’ascenseurs neufs et de parkings pour un confort maximal.
Notes sur la vente
Excellente opportunité pour un propriétaire occupant.
Floor Plan
Floor Plan
Interior Photo
Floor Plan
Interior Photo
Floor Plan
Lot Bât B
| Surface du lot | 639 m² | Usage du lot en coprop. | Bureau |
| Prix | 5 435 750 € | Type de vente | Propriétaire occupant |
| Prix par m² | 8 506,82 € |
| Surface du lot | 639 m² |
| Prix | 5 435 750 € |
| Prix par m² | 8 506,82 € |
| Usage du lot en coprop. | Bureau |
| Type de vente | Propriétaire occupant |
Description
Ce plateau situé au deuxième étage offre un cadre de travail agréable avec une vue dégagée sur un environnement verdoyant. Les espaces sont livrés brut pour permettre une personnalisation complète. L’immeuble propose des prestations modernes incluant un hall d’accueil indépendant, des ascenseurs neufs et des parkings.
Notes sur la vente
Excellente opportunité pour un propriétaire occupant.
Floor Plan
Floor Plan
Interior Photo
Floor Plan
Interior Photo
Floor Plan
Informations sur l’immeuble
| Surface totale de l’immeuble | 1 000 - 5 000 m² | Étages | 4 |
| Type de bien | Bureau | Année de construction/rénovation | 2000 - 2009/2020 - 2029 |
| Sous-type de bien | Bureau résidentiel | Stationnement | Oui |
| Classe d’immeuble | B |
| Surface totale de l’immeuble | 1 000 - 5 000 m² |
| Type de bien | Bureau |
| Sous-type de bien | Bureau résidentiel |
| Classe d’immeuble | B |
| Étages | 4 |
| Année de construction/rénovation | 2000 - 2009/2020 - 2029 |
| Stationnement | Oui |
Caractéristiques
- Accès contrôlé
- Cour
- Terrain clôturé
- Métro
- Système de sécurité
- Signalisation
- Accessible fauteuils roulants
- Lumière naturelle
- Wi-Fi
- Internet par fibre optique
- Détecteur de fumée
- Agents de sécurité sur place
Présenté par
"92100 Boulogne-Billancourt"
Hum, une erreur s’est produite lors de l’envoi de votre message. Veuillez réessayer.
Merci ! Votre message a été envoyé.



