Votre e-mail a été envoyé.
Boulevard Michael Faraday Bureaux/Local commercial | 334 m² | 847 420 € | À vendre | 77700 Serris



INFORMATIONS PRINCIPALES SUR L'INVESTISSEMENT
- Immeuble neuf et sécurisé
- Espaces verts et services
- Accès A4 et RER A
RÉSUMÉ ANALYTIQUE
Situé à Serris, au sein d’un parc tertiaire neuf, l’immeuble bénéficie d’une excellente accessibilité grâce à la proximité immédiate des axes A4, D231 et D406, ainsi que de la gare RER A « Val d’Europe ». Les parties communes sont modernes et offrent des prestations de qualité, avec hall d’accueil, espaces verts et services adaptés à un environnement professionnel dynamique.
INFORMATIONS SUR L’IMMEUBLE
| Surface totale de l’immeuble | 3 038 m² | Surface type par étage | 2 278 m² |
| Type de bien | Bureau (Lot en copropriété) | Année de construction | 2026 |
| Classe d’immeuble | A | Surface du lot | 0,59 ha |
| Étages | 4 | Ratio de stationnement | 1,06/1 000 m² |
| Surface totale de l’immeuble | 3 038 m² |
| Type de bien | Bureau (Lot en copropriété) |
| Classe d’immeuble | A |
| Étages | 4 |
| Surface type par étage | 2 278 m² |
| Année de construction | 2026 |
| Surface du lot | 0,59 ha |
| Ratio de stationnement | 1,06/1 000 m² |
CARACTÉRISTIQUES
- Food court
- Accessible fauteuils roulants
- Balcon
- Internet par fibre optique
1 LOT DISPONIBLE
Lot OVBUR22062
| Surface du lot | 334 m² | Usage du lot en coprop. | Bureaux/Local commercial |
| Prix | 847 420 € | Type de vente | Propriétaire occupant |
| Prix par m² | 2 537,29 € | Frais d’agence | 5,00 % du prix de vente |
| Surface du lot | 334 m² |
| Prix | 847 420 € |
| Prix par m² | 2 537,29 € |
| Usage du lot en coprop. | Bureaux/Local commercial |
| Type de vente | Propriétaire occupant |
| Frais d’agence | 5,00 % du prix de vente |
DESCRIPTION
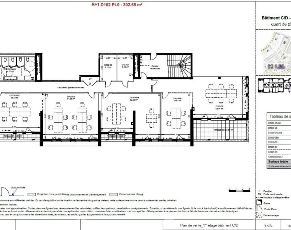
Ce lot est situé en étage et dispose d’une terrasse privative offrant un espace extérieur agréable. Les bureaux sont aménagés avec des prestations modernes, incluant faux plafond, éclairage LED et moquette. L’accès est facilité par une porte de plain-pied et des parkings sont disponibles pour les occupants. Le site est clos et sécurisé par un portail motorisé, garantissant un environnement professionnel de qualité.
NOTES SUR LA VENTE
Excellente opportunité pour un propriétaire occupant dans un secteur en plein développement.
Floor Plan
Présenté par
Boulevard Michael Faraday
Hum, une erreur s’est produite lors de l’envoi de votre message. Veuillez réessayer.
Merci ! Votre message a été envoyé.

