Votre e-mail a été envoyé.
Deanfield Mills Asquith Av Bureau | 168 m² | À louer | Leeds LS27 9QS



Certaines informations ont été traduites automatiquement.
Informations principales
- Natural light
- Car park
- Versatile use
Tous les espace disponibles(1)
Afficher les loyers en
- Espace
- Surface
- Durée
- Loyer
- Type de bien
- Aménagement
- Disponible
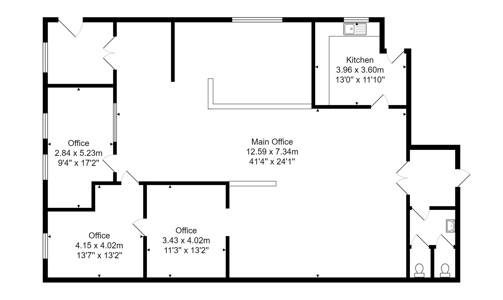
Unit 16C Deanfield Mills, is a first floor office / workshop premises, situated on Asquith Avenue, approximately 1 mile to the north of Morley Town Centre. Deanfield Mills multi-occupied commercial estate. The suite benefits from a largely open plan office space that includes separately partitioned office accommodation, Meeting / Storage rooms, kitchen and WC facilities. Externally the property benefits from a large, gated communal car pack. The unit is offered on a new effective repairing and insuring lease at an asking rental of £8,000 per annum plus VAT.
- Classe d’utilisation : E
- Principalement open space
- Bureaux cloisonnés
- Système de chauffage central
- Vidéosurveillance
- Lumière naturelle
- Open space
- Natural light
- Partiellement aménagé comme Bureau standard
- Convient pour 5 à 15 personnes
- Espace en excellent état
- Cuisine
- Entreposage sécurisé
- Toilettes dans les parties communes
- WC & Kitchen
- Storage room
| Espace | Surface | Durée | Loyer | Type de bien | Aménagement | Disponible |
| 1er étage, bureau 16C | 168 m² | Négociable | 54,96 € /m²/an 4,58 € /m²/mois 9 227 € /an 768,92 € /mois | Bureau | Construction partielle | Maintenant |
1er étage, bureau 16C
| Surface |
| 168 m² |
| Durée |
| Négociable |
| Loyer |
| 54,96 € /m²/an 4,58 € /m²/mois 9 227 € /an 768,92 € /mois |
| Type de bien |
| Bureau |
| Aménagement |
| Construction partielle |
| Disponible |
| Maintenant |
1er étage, bureau 16C
| Surface | 168 m² |
| Durée | Négociable |
| Loyer | 54,96 € /m²/an |
| Type de bien | Bureau |
| Aménagement | Construction partielle |
| Disponible | Maintenant |
Unit 16C Deanfield Mills, is a first floor office / workshop premises, situated on Asquith Avenue, approximately 1 mile to the north of Morley Town Centre. Deanfield Mills multi-occupied commercial estate. The suite benefits from a largely open plan office space that includes separately partitioned office accommodation, Meeting / Storage rooms, kitchen and WC facilities. Externally the property benefits from a large, gated communal car pack. The unit is offered on a new effective repairing and insuring lease at an asking rental of £8,000 per annum plus VAT.
- Classe d’utilisation : E
- Partiellement aménagé comme Bureau standard
- Principalement open space
- Convient pour 5 à 15 personnes
- Bureaux cloisonnés
- Espace en excellent état
- Système de chauffage central
- Cuisine
- Vidéosurveillance
- Entreposage sécurisé
- Lumière naturelle
- Toilettes dans les parties communes
- Open space
- WC & Kitchen
- Natural light
- Storage room
Aperçu du bien
The property provides versatile accommodation and is located in the heart of Deanfield.
Faits sur l’installation entrepôt
Occupants
- Nom de l’occupant
- Secteur d’activité
- A P F Business Services
- Services professionnels, scientifiques et techniques
- Allied Fabrication Services
- Services professionnels, scientifiques et techniques
- Delta Design & Print
- -
- Retrac
- -
Présenté par
Adair Paxton
Deanfield Mills | Asquith Av
Hum, une erreur s’est produite lors de l’envoi de votre message. Veuillez réessayer.
Merci ! Votre message a été envoyé.



