Votre e-mail a été envoyé.
74000 Annecy Local commercial | | 455 000 € | À vendre



Description
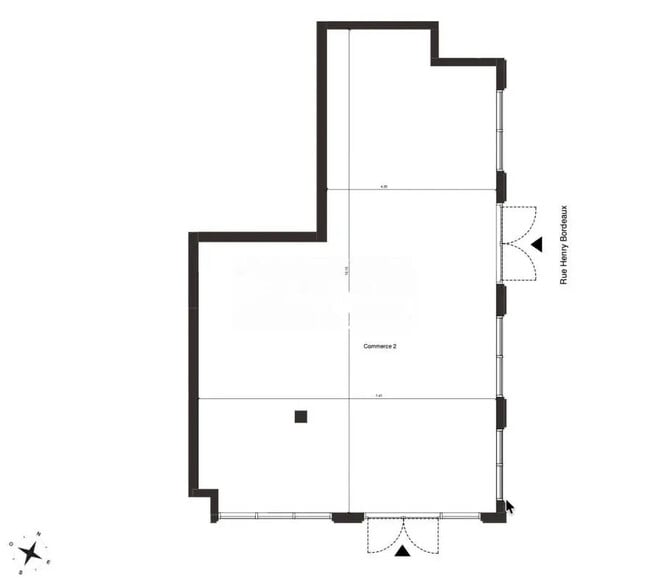
Idéalement situé au coeur du très recherché triangle d'or d'Annecy, à proximité immédiate du lac et du secteur emblématique des Nouvelles Galeries, ce local commercial neuf bénéficie d'un emplacement stratégique de premier ordre. Implanté à un carrefour particulièrement passant, il profite d'une visibilité exceptionnelle ainsi que d'un flux constant, aussi bien piéton qu'automobile. Cette implantation garantit une forte exposition pour toute activité souhaitant s'inscrire dans un environnement urbain dynamique et à forte attractivité commerciale. Le bien s'intègre au sein d'un programme immobilier neuf porté par un promoteur reconnu pour la qualité de ses réalisations, offrant une architecture soignée et une véritable valeur patrimoniale sur le long terme. Le local est livré brut de béton, permettant une liberté totale d'aménagement selon votre concept. Les fluides sont en attente, avec notamment l'alimentation en eau, les évacuations, l'électricité ainsi qu'une gaine de ventilation en toiture, facilitant l'installation de nombreuses activités. La hauteur sous plafond permet d'envisager un aménagement qualitatif et des volumes agréables pour accueillir votre clientèle. Surfaces disponibles : - Commerce 1 : 158,29 m² - Commerce 2 : 71,46 m² Ces locaux conviendront parfaitement à une activité de commerce, de service ou à une enseigne souhaitant s'implanter dans un secteur premium, bénéficiant d'une excellente image et d'un fort pouvoir d'attractivité. Leur positionnement en coeur de ville, à proximité immédiate du lac, en fait une adresse particulièrement recherchée, aussi bien par les enseignes locales que nationales. La combinaison entre emplacement stratégique, visibilité, accessibilité et qualité du programme en fait une opportunité rare sur le marché annécien, que ce soit pour une implantation ou un investissement à forte valeur patrimoniale. Prix de vente : - Lot 1 (158,29 m²) : 1 005 000 € HT - Lot 2 (71,46 m²) : 455 000 € HT Disponibilité : livraison prévisionnelle : 4? trimestre 2027 Contact : nicolas.parroche@avinim-brokers.fr AVINIM RESEAU BROKERS est le premier cabinet immobilier d'entreprise structuré en réseau de mandataires. Nous maillons avec notre équipe de 80 Brokers une grande partie du territoire national pour accompagner nos entreprises clientes dans leurs recherches de commerces, bureaux, locaux d'activités, immeubles et fonciers. www.reseau-brokers.com Honoraires à la charge du vendeur. DPE en cours. Les informations sur les risques auxquels ce bien est exposé sont disponibles sur le site Géorisques : georisques.gouv.fr. Votre conseiller AVINIM RESEAU BROKERS : Nicolas PARROCHE Agent commercial (Entreprise individuelle) RSAC 478800212 RCP 7953190/S17093745
Informations sur l’immeuble
| Prix | 455 000 € | Surface totale de l’immeuble | 71 m² |
| Surface du lot | 71 m² | Type de bien | Local commercial (Lot en copropriété) |
| Nb de lots | 1 | Type de vente | Propriétaire occupant |
| Prix | 455 000 € |
| Surface du lot | 71 m² |
| Nb de lots | 1 |
| Surface totale de l’immeuble | 71 m² |
| Type de bien | Local commercial (Lot en copropriété) |
| Type de vente | Propriétaire occupant |
1 Lot disponible
| Surface du lot | 71 m² | Usage du lot en coprop. | Local commercial |
| Prix | 455 000 € | Type de vente | Propriétaire occupant |
| Prix par m² | 6 410,44 € |
| Surface du lot | 71 m² |
| Prix | 455 000 € |
| Prix par m² | 6 410,44 € |
| Usage du lot en coprop. | Local commercial |
| Type de vente | Propriétaire occupant |
Présenté par
"74000 Annecy"
Hum, une erreur s’est produite lors de l’envoi de votre message. Veuillez réessayer.
Merci ! Votre message a été envoyé.

