Connectez-vous/S’inscrire
Votre e-mail a été envoyé.
Lyell Business Center 961-1029 Lyell Ave Local d’activités | 3 036 m² | À louer | Rochester, NY 14606



Certaines informations ont été traduites automatiquement.
Caractéristiques
Hauteur libre
9,14 m
Accès plain-pied
10
Portes de quai de chargement extérieures
4
Tous les espace disponibles(1)
Afficher les loyers en
- Espace
- Surface
- Durée
- Loyer
- Type de bien
- État
- Disponible
- Le loyer ne comprend pas les services publics, les frais immobiliers ou les services de l’immeuble.
- 4 quais de chargement
- 10 accès plain-pied
| Espace | Surface | Durée | Loyer | Type de bien | État | Disponible |
| RDC | 3 036 m² | Négociable | 50,96 € /m²/an 4,25 € /m²/mois 154 716 € /an 12 893 € /mois | Local d’activités | - | Maintenant |
RDC
| Surface |
| 3 036 m² |
| Durée |
| Négociable |
| Loyer |
| 50,96 € /m²/an 4,25 € /m²/mois 154 716 € /an 12 893 € /mois |
| Type de bien |
| Local d’activités |
| État |
| - |
| Disponible |
| Maintenant |
1 sur 1
Vidéos
Visite extérieure 3D Matterport
Visite 3D
Photos
Street view
Rue
Carte
RDC
| Surface | 3 036 m² |
| Durée | Négociable |
| Loyer | 50,96 € /m²/an |
| Type de bien | Local d’activités |
| État | - |
| Disponible | Maintenant |
- Le loyer ne comprend pas les services publics, les frais immobiliers ou les services de l’immeuble.
- 10 accès plain-pied
- 4 quais de chargement
Aperçu du bien
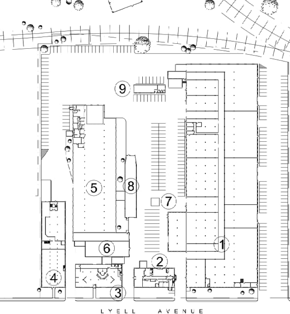
961 Lyell Ave in Rochester offers 32,678 SF of flex space on 9.93 acres, ideal for light industrial or distribution use. The property features 14'-30’ clear height, 10 drive-ins, and 4 exterior docks. Located in the Lyell Business Center, it provides excellent access to I-390, I-490, and Route 31, just minutes from Downtown Rochester and the airport—perfect for businesses seeking visibility and convenience.
Informations sur l’immeuble
Surface de l’immeuble
25 102 m²
Surface du lot
4,02 ha
Année de construction
1900
Zonage
M1
1 1
1 sur 23
Vidéos
Visite extérieure 3D Matterport
Visite 3D
Photos
Street view
Rue
Carte
1 sur 1
Présenté par
Lyell Business Center | 961-1029 Lyell Ave
Vous êtes déjà membre ? Connectez-vous
Hum, une erreur s’est produite lors de l’envoi de votre message. Veuillez réessayer.
Merci ! Votre message a été envoyé.



