Votre e-mail a été envoyé.
Center for Novel Therapeutics 9310 Athena Cir Local d’activités | 560–5 884 m² | 5 étoiles | À louer | La Jolla, CA 92037



Certaines informations ont été traduites automatiquement.
Caractéristiques
Tous les espaces disponibles(5)
Afficher les loyers en
- Espace
- Surface
- Durée
- Loyer
- Type de bien
- Aménagement
- Disponible
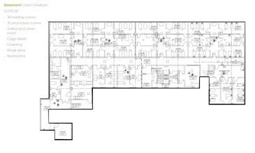
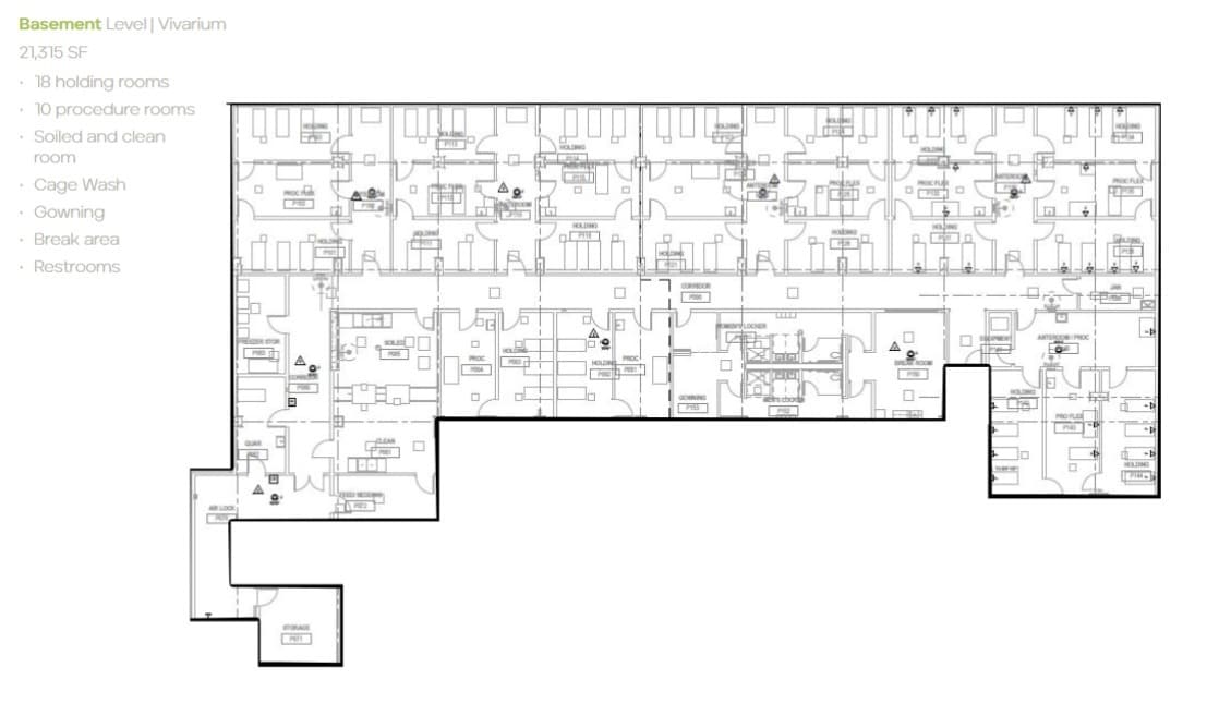
The facility includes 18 holding rooms, 10 procedure rooms, as well as a soiled and clean room. It also features a cage wash area, gowning area, break area, and restrooms. CNT is a fully amenitized lab building located on the UCSD campus. Amenities within the building include multiple common conference rooms to accommodate small meetings up to large all-hands meeting functions, fitness center with shower and locker facilities and a 1st floor restaurant. https://cntsandiego.com/about/
- Espace en excellent état
Suite 100 | 9,906 SF Lab: 5 lab benches, 2 lab support rooms, 3 lab rooms, equipment room Office: 7 private offices, 1 conference room, open office area, phone room CNT is a fully amenitized lab building located on the UCSD campus. Amenities within the building include multiple common conference rooms to accommodate small meetings up to large all-hands meeting functions, fitness center with shower and locker facilities and a 1st floor restaurant. https://cntsandiego.com/about/
- Espace en excellent état
- Laboratoire
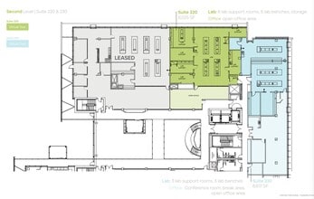
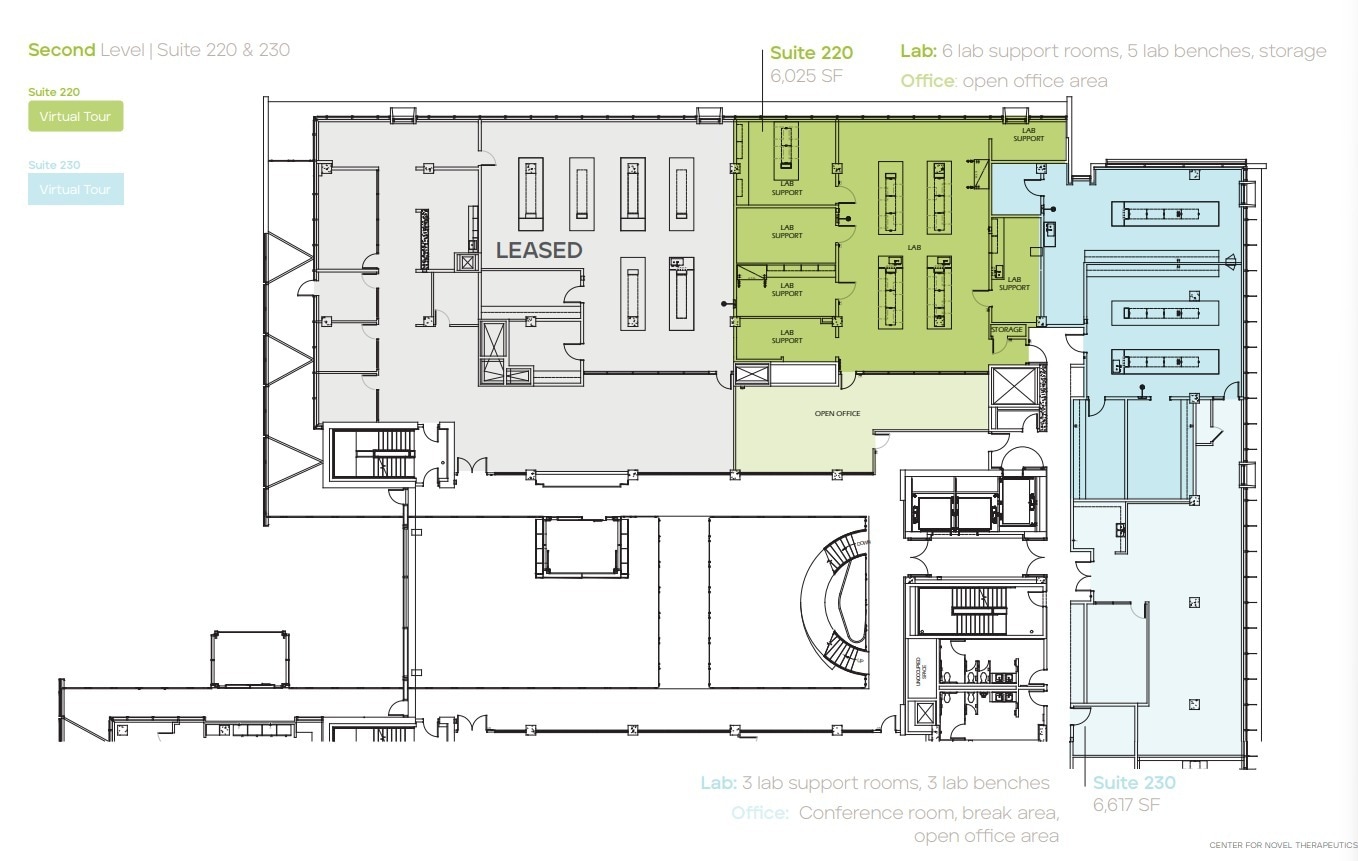
Lab: 6 lab support rooms, 5 lab benches, storage Office: open office area CNT is a fully amenitized lab building located on the UCSD campus. Amenities within the building include multiple common conference rooms to accommodate small meetings up to large all-hands meeting functions, fitness center with shower and locker facilities and a 1st floor restaurant. https://cntsandiego.com/about/
- Espace en excellent état
- Laboratoire
- Peut être associé à un ou plusieurs espaces supplémentaires pour obtenir jusqu’à 1 174 m² d’espace adjacent.
Lab: 3 lab support rooms, 3 lab benches Office: 1 conference room, break area, open office area CNT is a fully amenitized lab building located on the UCSD campus. Amenities within the building include multiple common conference rooms to accommodate small meetings up to large all-hands meeting functions, fitness center with shower and locker facilities and a 1st floor restaurant. https://cntsandiego.com/about/
- Peut être associé à un ou plusieurs espaces supplémentaires pour obtenir jusqu’à 1 174 m² d’espace adjacent.
- Laboratoire
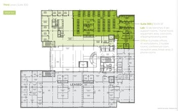
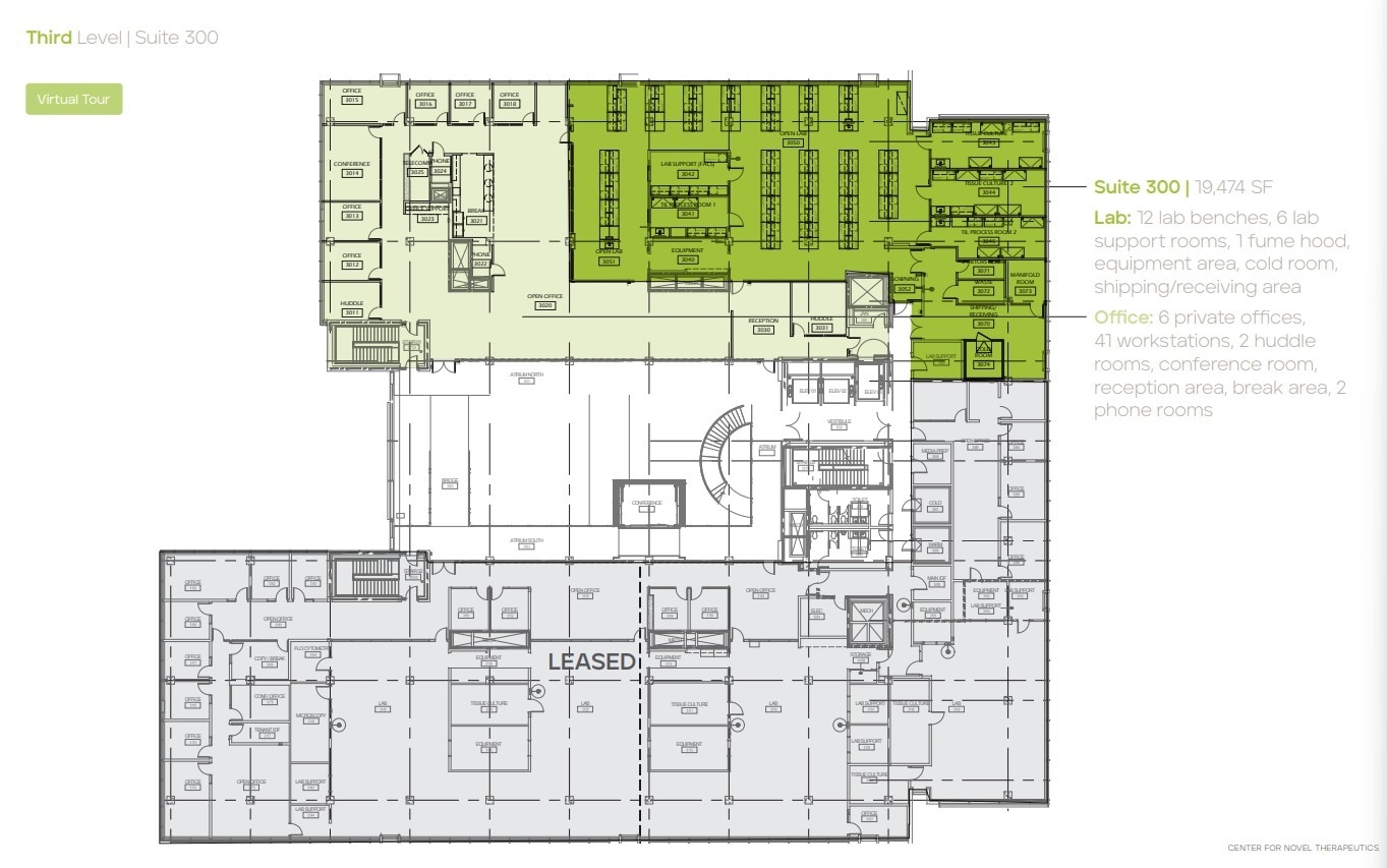
12 lab benches, 6 lab support rooms, equipment area, cold room, shipping/ receiving area CNT is a fully amenitized lab building located on the UCSD campus. Amenities within the building include multiple common conference rooms to accommodate small meetings up to large all-hands meeting functions, fitness center with shower and locker facilities and a 1st floor restaurant. https://cntsandiego.com/about/
- Espace en excellent état
- Laboratoire
- 6 bureaux privés
- 1 salle de conférence
| Espace | Surface | Durée | Loyer | Type de bien | Aménagement | Disponible |
| Sous-sol | 1 980 m² | Négociable | Sur demande Sur demande Sur demande Sur demande | Local d’activités | Construction achevée | Maintenant |
| 1er étage – 100 | 920 m² | Négociable | Sur demande Sur demande Sur demande Sur demande | Local d’activités | Construction achevée | Maintenant |
| 2e étage – 220 | 560 m² | Négociable | Sur demande Sur demande Sur demande Sur demande | Local d’activités | Construction achevée | Maintenant |
| 2e étage – 230 | 615 m² | Négociable | Sur demande Sur demande Sur demande Sur demande | Local d’activités | Construction achevée | Maintenant |
| 3e étage – 300 | 1 809 m² | Négociable | Sur demande Sur demande Sur demande Sur demande | Local d’activités | Construction achevée | Maintenant |
Sous-sol
| Surface |
| 1 980 m² |
| Durée |
| Négociable |
| Loyer |
| Sur demande Sur demande Sur demande Sur demande |
| Type de bien |
| Local d’activités |
| Aménagement |
| Construction achevée |
| Disponible |
| Maintenant |
1er étage – 100
| Surface |
| 920 m² |
| Durée |
| Négociable |
| Loyer |
| Sur demande Sur demande Sur demande Sur demande |
| Type de bien |
| Local d’activités |
| Aménagement |
| Construction achevée |
| Disponible |
| Maintenant |
2e étage – 220
| Surface |
| 560 m² |
| Durée |
| Négociable |
| Loyer |
| Sur demande Sur demande Sur demande Sur demande |
| Type de bien |
| Local d’activités |
| Aménagement |
| Construction achevée |
| Disponible |
| Maintenant |
2e étage – 230
| Surface |
| 615 m² |
| Durée |
| Négociable |
| Loyer |
| Sur demande Sur demande Sur demande Sur demande |
| Type de bien |
| Local d’activités |
| Aménagement |
| Construction achevée |
| Disponible |
| Maintenant |
3e étage – 300
| Surface |
| 1 809 m² |
| Durée |
| Négociable |
| Loyer |
| Sur demande Sur demande Sur demande Sur demande |
| Type de bien |
| Local d’activités |
| Aménagement |
| Construction achevée |
| Disponible |
| Maintenant |
Sous-sol
| Surface | 1 980 m² |
| Durée | Négociable |
| Loyer | Sur demande |
| Type de bien | Local d’activités |
| Aménagement | Construction achevée |
| Disponible | Maintenant |
The facility includes 18 holding rooms, 10 procedure rooms, as well as a soiled and clean room. It also features a cage wash area, gowning area, break area, and restrooms. CNT is a fully amenitized lab building located on the UCSD campus. Amenities within the building include multiple common conference rooms to accommodate small meetings up to large all-hands meeting functions, fitness center with shower and locker facilities and a 1st floor restaurant. https://cntsandiego.com/about/
- Espace en excellent état
1er étage – 100
| Surface | 920 m² |
| Durée | Négociable |
| Loyer | Sur demande |
| Type de bien | Local d’activités |
| Aménagement | Construction achevée |
| Disponible | Maintenant |
Suite 100 | 9,906 SF Lab: 5 lab benches, 2 lab support rooms, 3 lab rooms, equipment room Office: 7 private offices, 1 conference room, open office area, phone room CNT is a fully amenitized lab building located on the UCSD campus. Amenities within the building include multiple common conference rooms to accommodate small meetings up to large all-hands meeting functions, fitness center with shower and locker facilities and a 1st floor restaurant. https://cntsandiego.com/about/
- Espace en excellent état
- Laboratoire
2e étage – 220
| Surface | 560 m² |
| Durée | Négociable |
| Loyer | Sur demande |
| Type de bien | Local d’activités |
| Aménagement | Construction achevée |
| Disponible | Maintenant |
Lab: 6 lab support rooms, 5 lab benches, storage Office: open office area CNT is a fully amenitized lab building located on the UCSD campus. Amenities within the building include multiple common conference rooms to accommodate small meetings up to large all-hands meeting functions, fitness center with shower and locker facilities and a 1st floor restaurant. https://cntsandiego.com/about/
- Espace en excellent état
- Peut être associé à un ou plusieurs espaces supplémentaires pour obtenir jusqu’à 1 174 m² d’espace adjacent.
- Laboratoire
2e étage – 230
| Surface | 615 m² |
| Durée | Négociable |
| Loyer | Sur demande |
| Type de bien | Local d’activités |
| Aménagement | Construction achevée |
| Disponible | Maintenant |
Lab: 3 lab support rooms, 3 lab benches Office: 1 conference room, break area, open office area CNT is a fully amenitized lab building located on the UCSD campus. Amenities within the building include multiple common conference rooms to accommodate small meetings up to large all-hands meeting functions, fitness center with shower and locker facilities and a 1st floor restaurant. https://cntsandiego.com/about/
- Peut être associé à un ou plusieurs espaces supplémentaires pour obtenir jusqu’à 1 174 m² d’espace adjacent.
- Laboratoire
3e étage – 300
| Surface | 1 809 m² |
| Durée | Négociable |
| Loyer | Sur demande |
| Type de bien | Local d’activités |
| Aménagement | Construction achevée |
| Disponible | Maintenant |
12 lab benches, 6 lab support rooms, equipment area, cold room, shipping/ receiving area CNT is a fully amenitized lab building located on the UCSD campus. Amenities within the building include multiple common conference rooms to accommodate small meetings up to large all-hands meeting functions, fitness center with shower and locker facilities and a 1st floor restaurant. https://cntsandiego.com/about/
- Espace en excellent état
- 6 bureaux privés
- Laboratoire
- 1 salle de conférence
Informations sur l’immeuble
Présenté par
Center for Novel Therapeutics | 9310 Athena Cir
Hum, une erreur s’est produite lors de l’envoi de votre message. Veuillez réessayer.
Merci ! Votre message a été envoyé.









