Votre e-mail a été envoyé.
Certaines informations ont été traduites automatiquement.
Informations principales
- 70,961 s.f. of Class A office space in a landmark building.
- Newly renovated, best in-class lobby, conference areas and ceilings up to 14’ engage the modern worker
- Flexible zoning can accommodate a variety of users
- Steps to premier dining, retail, and entertainment amenities
- Located within walking distance from Vancouver City Centre and Granville Street SkyTrain station
- Storage lockers, end-of-trip shower facilities, and bike storage
Tous les espaces disponibles(5)
Afficher les loyers en
- Espace
- Surface
- Durée
- Loyer
- Type de bien
- État
- Disponible
- Convient pour 29 à 91 personnes
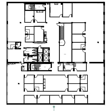
929 Granville presents an exceptional opportunity to lease premium office space in a fully retrofitted Class-A character building strategically located in Vancouver’s vibrant Granville Entertainment District. This 70,961 s.f. 5-story property masterfully blends historic charm with modern sophistication, featuring high-end improvements, stylish furnishings, and state-of-the-art lighting. The beautiful open-concept atrium at the entry point creates a striking first impression
- Entièrement aménagé comme Bureau standard
- Convient pour 35 à 111 personnes
- 44 postes de travail
- Salle d’impression/photocopie
- Copy room
- 2 phone rooms
- Principalement open space
- 2 salles de conférence
- Peut être associé à un ou plusieurs espaces supplémentaires pour obtenir jusqu’à 5 290 m² d’espace adjacent.
- Toilettes privées
- 5 four-person focus rooms
929 Granville presents an exceptional opportunity to lease premium office space in a fully retrofitted Class-A character building strategically located in Vancouver’s vibrant Granville Entertainment District. This 70,961 s.f. 5-story property masterfully blends historic charm with modern sophistication, featuring high-end improvements, stylish furnishings, and state-of-the-art lighting. The beautiful open-concept atrium at the entry point creates a striking first impression.
- Entièrement aménagé comme Bureau standard
- Convient pour 36 à 113 personnes
- 65 postes de travail
- Salle d’impression/photocopie
- 1 six-person team room
- Small kitchenette and breakout area
- Principalement open space
- 2 salles de conférence
- Peut être associé à un ou plusieurs espaces supplémentaires pour obtenir jusqu’à 5 290 m² d’espace adjacent.
- Toilettes privées
- 10 four-person team rooms
- Private washrooms (men and womens)
929 Granville presents an exceptional opportunity to lease premium office space in a fully retrofitted Class-A character building strategically located in Vancouver’s vibrant Granville Entertainment District. This 70,961 s.f. 5-story property masterfully blends historic charm with modern sophistication, featuring high-end improvements, stylish furnishings, and state-of-the-art lighting. The beautiful open-concept atrium at the entry point creates a striking first impression.
- Entièrement aménagé comme Bureau standard
- Convient pour 37 à 117 personnes
- 70 postes de travail
- Salle d’impression/photocopie
- 10 four-person team rooms
- 8 phone rooms
- Small kitchenette and breakout area
- Principalement open space
- 1 salle de conférence
- Peut être associé à un ou plusieurs espaces supplémentaires pour obtenir jusqu’à 5 290 m² d’espace adjacent.
- Toilettes privées
- 2 six-person team rooms
- Private washrooms (men and womens)
- Wellness room
929 Granville presents an exceptional opportunity to lease premium office space in a fully retrofitted Class-A character building strategically located in Vancouver’s vibrant Granville Entertainment District. This 70,961 s.f. 5-story property masterfully blends historic charm with modern sophistication, featuring high-end improvements, stylish furnishings, and state-of-the-art lighting. The beautiful open-concept atrium at the entry point creates a striking first impression
- Entièrement aménagé comme Bureau standard
- Convient pour 37 à 117 personnes
- 71 postes de travail
- 71 workstations
- Lounge and kitchenette
- Small kitchenette and breakout area
- Principalement open space
- 3 salles de conférence
- Peut être associé à un ou plusieurs espaces supplémentaires pour obtenir jusqu’à 5 290 m² d’espace adjacent.
- 3 six-person conference rooms
- Private washrooms (men and womens)
- 11 four-person team rooms
| Espace | Surface | Durée | Loyer | Type de bien | État | Disponible |
| Sous-sol | 1 055 m² | Négociable | Sur demande Sur demande Sur demande Sur demande | Bureau | Meublé et équipé | Maintenant |
| 2e étage | 1 282 m² | Négociable | Sur demande Sur demande Sur demande Sur demande | Bureau | Construction achevée | Maintenant |
| 3e étage | 1 305 m² | Négociable | Sur demande Sur demande Sur demande Sur demande | Bureau | Construction achevée | Maintenant |
| 4e étage | 1 352 m² | Négociable | Sur demande Sur demande Sur demande Sur demande | Bureau | Construction achevée | Maintenant |
| 5e étage | 1 351 m² | Négociable | Sur demande Sur demande Sur demande Sur demande | Bureau | Construction achevée | Maintenant |
Sous-sol
| Surface |
| 1 055 m² |
| Durée |
| Négociable |
| Loyer |
| Sur demande Sur demande Sur demande Sur demande |
| Type de bien |
| Bureau |
| État |
| Meublé et équipé |
| Disponible |
| Maintenant |
2e étage
| Surface |
| 1 282 m² |
| Durée |
| Négociable |
| Loyer |
| Sur demande Sur demande Sur demande Sur demande |
| Type de bien |
| Bureau |
| État |
| Construction achevée |
| Disponible |
| Maintenant |
3e étage
| Surface |
| 1 305 m² |
| Durée |
| Négociable |
| Loyer |
| Sur demande Sur demande Sur demande Sur demande |
| Type de bien |
| Bureau |
| État |
| Construction achevée |
| Disponible |
| Maintenant |
4e étage
| Surface |
| 1 352 m² |
| Durée |
| Négociable |
| Loyer |
| Sur demande Sur demande Sur demande Sur demande |
| Type de bien |
| Bureau |
| État |
| Construction achevée |
| Disponible |
| Maintenant |
5e étage
| Surface |
| 1 351 m² |
| Durée |
| Négociable |
| Loyer |
| Sur demande Sur demande Sur demande Sur demande |
| Type de bien |
| Bureau |
| État |
| Construction achevée |
| Disponible |
| Maintenant |
Sous-sol
| Surface | 1 055 m² |
| Durée | Négociable |
| Loyer | Sur demande |
| Type de bien | Bureau |
| État | Meublé et équipé |
| Disponible | Maintenant |
- Convient pour 29 à 91 personnes
2e étage
| Surface | 1 282 m² |
| Durée | Négociable |
| Loyer | Sur demande |
| Type de bien | Bureau |
| État | Construction achevée |
| Disponible | Maintenant |
929 Granville presents an exceptional opportunity to lease premium office space in a fully retrofitted Class-A character building strategically located in Vancouver’s vibrant Granville Entertainment District. This 70,961 s.f. 5-story property masterfully blends historic charm with modern sophistication, featuring high-end improvements, stylish furnishings, and state-of-the-art lighting. The beautiful open-concept atrium at the entry point creates a striking first impression
- Entièrement aménagé comme Bureau standard
- Principalement open space
- Convient pour 35 à 111 personnes
- 2 salles de conférence
- 44 postes de travail
- Peut être associé à un ou plusieurs espaces supplémentaires pour obtenir jusqu’à 5 290 m² d’espace adjacent.
- Salle d’impression/photocopie
- Toilettes privées
- Copy room
- 5 four-person focus rooms
- 2 phone rooms
3e étage
| Surface | 1 305 m² |
| Durée | Négociable |
| Loyer | Sur demande |
| Type de bien | Bureau |
| État | Construction achevée |
| Disponible | Maintenant |
929 Granville presents an exceptional opportunity to lease premium office space in a fully retrofitted Class-A character building strategically located in Vancouver’s vibrant Granville Entertainment District. This 70,961 s.f. 5-story property masterfully blends historic charm with modern sophistication, featuring high-end improvements, stylish furnishings, and state-of-the-art lighting. The beautiful open-concept atrium at the entry point creates a striking first impression.
- Entièrement aménagé comme Bureau standard
- Principalement open space
- Convient pour 36 à 113 personnes
- 2 salles de conférence
- 65 postes de travail
- Peut être associé à un ou plusieurs espaces supplémentaires pour obtenir jusqu’à 5 290 m² d’espace adjacent.
- Salle d’impression/photocopie
- Toilettes privées
- 1 six-person team room
- 10 four-person team rooms
- Small kitchenette and breakout area
- Private washrooms (men and womens)
4e étage
| Surface | 1 352 m² |
| Durée | Négociable |
| Loyer | Sur demande |
| Type de bien | Bureau |
| État | Construction achevée |
| Disponible | Maintenant |
929 Granville presents an exceptional opportunity to lease premium office space in a fully retrofitted Class-A character building strategically located in Vancouver’s vibrant Granville Entertainment District. This 70,961 s.f. 5-story property masterfully blends historic charm with modern sophistication, featuring high-end improvements, stylish furnishings, and state-of-the-art lighting. The beautiful open-concept atrium at the entry point creates a striking first impression.
- Entièrement aménagé comme Bureau standard
- Principalement open space
- Convient pour 37 à 117 personnes
- 1 salle de conférence
- 70 postes de travail
- Peut être associé à un ou plusieurs espaces supplémentaires pour obtenir jusqu’à 5 290 m² d’espace adjacent.
- Salle d’impression/photocopie
- Toilettes privées
- 10 four-person team rooms
- 2 six-person team rooms
- 8 phone rooms
- Private washrooms (men and womens)
- Small kitchenette and breakout area
- Wellness room
5e étage
| Surface | 1 351 m² |
| Durée | Négociable |
| Loyer | Sur demande |
| Type de bien | Bureau |
| État | Construction achevée |
| Disponible | Maintenant |
929 Granville presents an exceptional opportunity to lease premium office space in a fully retrofitted Class-A character building strategically located in Vancouver’s vibrant Granville Entertainment District. This 70,961 s.f. 5-story property masterfully blends historic charm with modern sophistication, featuring high-end improvements, stylish furnishings, and state-of-the-art lighting. The beautiful open-concept atrium at the entry point creates a striking first impression
- Entièrement aménagé comme Bureau standard
- Principalement open space
- Convient pour 37 à 117 personnes
- 3 salles de conférence
- 71 postes de travail
- Peut être associé à un ou plusieurs espaces supplémentaires pour obtenir jusqu’à 5 290 m² d’espace adjacent.
- 71 workstations
- 3 six-person conference rooms
- Lounge and kitchenette
- Private washrooms (men and womens)
- Small kitchenette and breakout area
- 11 four-person team rooms
Aperçu du bien
Located in Downtown Vancouver’s thriving Granville Entertainment District, 929 Granville is a 5-story, Class A creative office building that offers an elevated experience in a highly desirable location. The 70,961 s.f. office building has undergone a comprehensive repositioning to highlight the building’s brick and beam architecture.
- Ligne d’autobus
Informations sur l’immeuble
Occupants
- Étage
- Nom de l’occupant
- Secteur d’activité
- 1er
- Ardene
- -
- 1er
- Chit Chat Burger Bar
- Hébergement et restauration
- Multi
- Microsoft Corporation
- Information
- Multi
- Spaces.
- Immobilier
Durabilité
Durabilité
Certification LEED Dirigé par le Conseil du Bâtiment Durable du Canada (CBDCa), le programme de certification LEED (Leadership in Energy and Environmental Design) est axé sur la conception, la construction, l’exploitation et la maintenance d’immeubles, de maisons et de quartiers écologiques. Sa vocation est d’aider les propriétaires et les exploitants à adopter des pratiques écoresponsables et à utiliser les ressources de façon efficace. La certification LEED est un symbole mondialement reconnu de réalisation et de leadership en matière de développement durable. Pour obtenir la certification LEED, un projet doit obtenir des points en respectant des conditions préalables et un barème de crédits qui tiennent compte des émissions de carbone, de l’énergie, de l’eau, des déchets, du transport, des matériaux, de la santé et de la qualité de l’environnement intérieur. Les projets passent par un processus de vérification et d’évaluation et reçoivent un score correspondant à un niveau de certification LEED : Platine (80 points et plus) Or (60 à 79 points) Argent (50 à 59 points) Certifié (40 à 49 points)
Présenté par
Tom Lee Building | 929 Granville St
Hum, une erreur s’est produite lors de l’envoi de votre message. Veuillez réessayer.
Merci ! Votre message a été envoyé.














