Connectez-vous/S’inscrire
Votre e-mail a été envoyé.
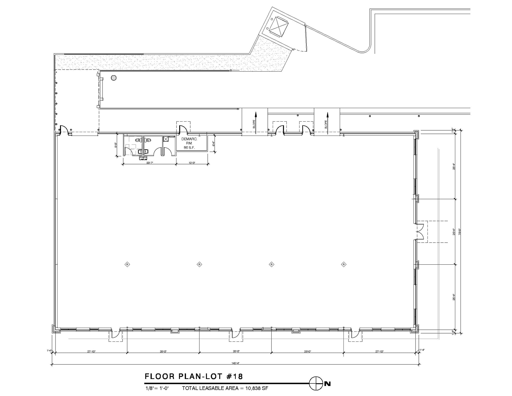
Lot 18 Office/Warehouse 9 Remington Dr Bureau 1 011 m² À vendre Little Rock, AR 72204 2 854 100 € (2 824,17 €/m²)



Certaines informations ont été traduites automatiquement.
INFORMATIONS PRINCIPALES SUR L'INVESTISSEMENT
- Accès facile à l'autoroute I-430, I-630 et I-30
- Bâtiment entièrement en brique
- Excellent éclairage de sécurité
- État de la coque avec deux toilettes et une salle de démarcation
- Autonome avec un excellent parking privé
RÉSUMÉ ANALYTIQUE
Bienvenue sur une opportunité exceptionnelle à Little Rock, en Arkansas ! Explorez le potentiel de cet espace de bureau/entrepôt polyvalent à louer au #9 Remington Drive. Bénéficiant d'un excellent emplacement derrière Tractor Supply, la propriété dispose d'un espace de 3 626 à 10 878 pieds carrés sur un terrain de 1,38 acre.
Les points forts incluent une porte enroulable de 10 x 10 donnant accès à un puits de camions coulé à hauteur de quai, deux portes enroulables supplémentaires et un entrepôt d'une hauteur libre de 14 pieds. Cette propriété est zonée O-3 et dispose d'un vaste parking privé de 46 places et d'un éclairage de sécurité pour votre tranquillité d'esprit.
Profitez d'une opportunité unique avec une allocation informatique de 25$ par pied carré pour les bureaux et de 10$ par pied carré pour la zone d'entrepôt. Ne manquez pas cette offre, dont la disponibilité est prévue pour le 1er avril 2024. Contactez l'agent dès maintenant pour connaître les détails des prix et garantir votre place dans cette propriété recherchée !
Ce bâtiment est également classé à la location. Possibilité de location à l'achat.
Les points forts incluent une porte enroulable de 10 x 10 donnant accès à un puits de camions coulé à hauteur de quai, deux portes enroulables supplémentaires et un entrepôt d'une hauteur libre de 14 pieds. Cette propriété est zonée O-3 et dispose d'un vaste parking privé de 46 places et d'un éclairage de sécurité pour votre tranquillité d'esprit.
Profitez d'une opportunité unique avec une allocation informatique de 25$ par pied carré pour les bureaux et de 10$ par pied carré pour la zone d'entrepôt. Ne manquez pas cette offre, dont la disponibilité est prévue pour le 1er avril 2024. Contactez l'agent dès maintenant pour connaître les détails des prix et garantir votre place dans cette propriété recherchée !
Ce bâtiment est également classé à la location. Possibilité de location à l'achat.
INFORMATIONS SUR L’IMMEUBLE
Type de vente
Propriétaire occupant
Conditions de vente
Type de bien
Bureau
Sous-type de bien
Surface de l’immeuble
1 011 m²
Classe d’immeuble
B
Année de construction
2024
Prix
2 854 100 €
Prix par m²
2 824,17 €
Occupation
Multi
Hauteur du bâtiment
1 étage
Surface type par étage
1 011 m²
Dalle à dalle
4,27 m
Coefficient d’occupation des sols de l’immeuble
0,18
Surface du lot
0,56 ha
Zonage
O-3 - Formulaire abrégé POD (développement planifié de bureaux).
O-3 District de bureaux généraux avec entrepôt de bureaux comme utilisation autorisée.
Stationnement
46 places (45,52 places par 1 000 m² loué)
CARACTÉRISTIQUES
- Accès 24 h/24
- Property Manager sur place
DISPONIBILITÉ DE L’ESPACE
- ESPACE
- SURFACE
- TYPE DE BIEN
- ÉTAT
- DISPONIBLE
3 626 à 10 878 pieds carrés d'espace flexible disponibles à la location.
| Espace | Surface | Type de bien | État | Disponible |
| 1er étage | 337 – 1 011 m² | Bureau | Espace brut | Maintenant |
1er étage
| Surface |
| 337 – 1 011 m² |
| Type de bien |
| Bureau |
| État |
| Espace brut |
| Disponible |
| Maintenant |
1 sur 1
VIDÉOS
VISITE EXTÉRIEURE 3D MATTERPORT
VISITE 3D
PHOTOS
STREET VIEW
RUE
CARTE
1er étage
| Surface | 337 – 1 011 m² |
| Type de bien | Bureau |
| État | Espace brut |
| Disponible | Maintenant |
3 626 à 10 878 pieds carrés d'espace flexible disponibles à la location.
1 1
TAXES FONCIÈRES
| Numéro de parcelle | 44L-143-07-004-00 | Évaluation des aménagements | 102 471 € (2025) |
| Évaluation du terrain | 30 812 € (2025) | Évaluation totale | 133 283 € (2025) |
TAXES FONCIÈRES
Numéro de parcelle
44L-143-07-004-00
Évaluation du terrain
30 812 € (2025)
Évaluation des aménagements
102 471 € (2025)
Évaluation totale
133 283 € (2025)
1 sur 11
VIDÉOS
VISITE EXTÉRIEURE 3D MATTERPORT
VISITE 3D
PHOTOS
STREET VIEW
RUE
CARTE
1 sur 1
Présenté par
Lot 18 Office/Warehouse | 9 Remington Dr
Vous êtes déjà membre ? Connectez-vous
Hum, une erreur s’est produite lors de l’envoi de votre message. Veuillez réessayer.
Merci ! Votre message a été envoyé.



