Votre e-mail a été envoyé.
Certaines informations ont été traduites automatiquement.
Informations principales
- Flexible office/warehouse configuration totaling approximately 13,171 square feet.
- Features one 10'x10' drive-in door and one 10'x10' dock door for efficient loading and unloading.
- Includes eight private offices and a dedicated conference room for administrative functions.
- Positioned on a 1.2-acre site with S-1 zoning to accommodate a range of industrial and service uses.
Caractéristiques
Tous les espace disponibles(1)
Afficher les loyers en
- Espace
- Surface
- Durée
- Loyer
- Type de bien
- Aménagement
- Disponible
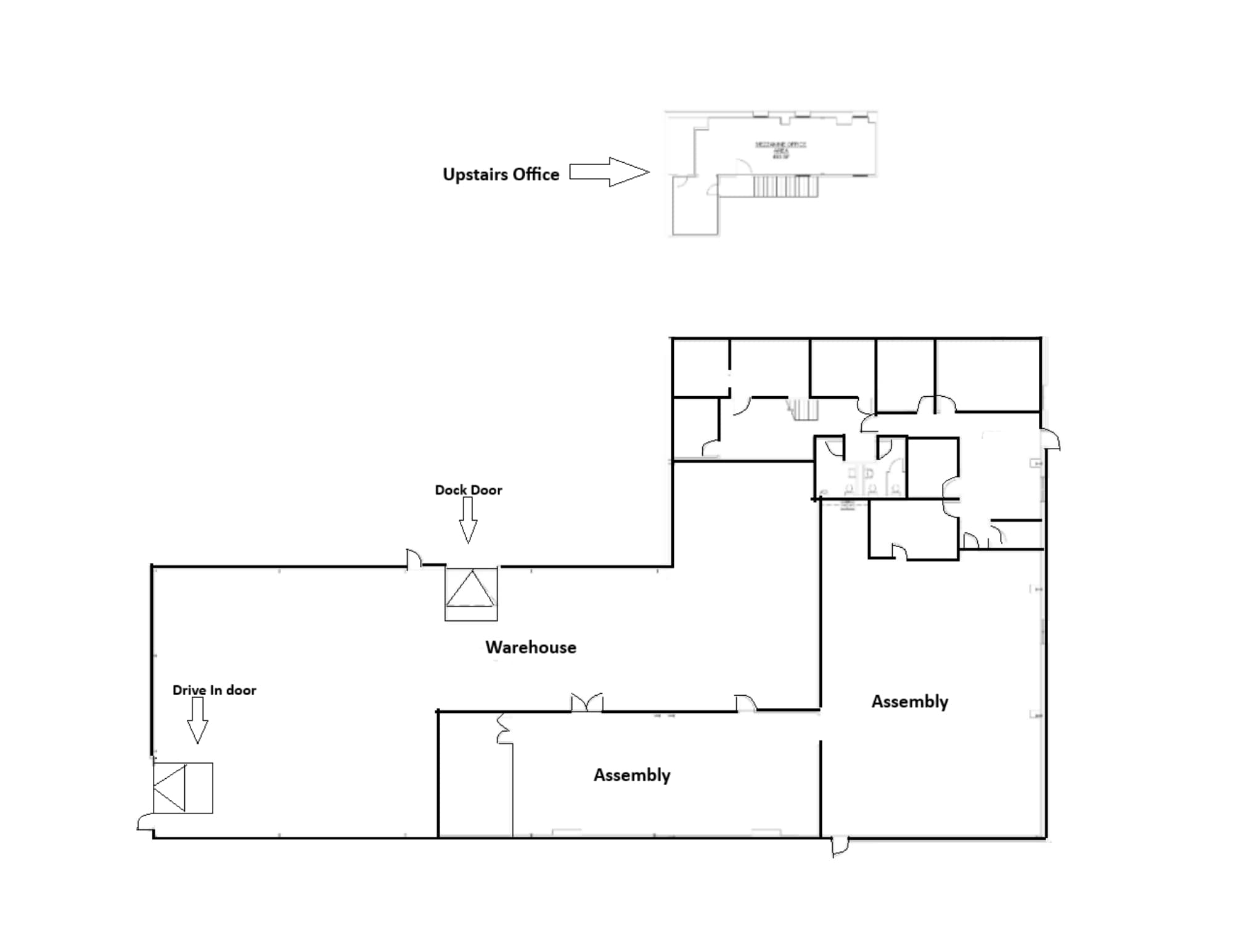
The property encompasses a total building size of approximately 13,171 square feet, thoughtfully designed to support a range of operational needs. The layout includes a warehouse and assembly area of about 10,393 square feet, providing ample space for storage, production, or distribution activities. Complementing this is an office component of roughly 2,770 square feet, which features eight private offices and a dedicated conference room, offering a functional environment for administrative and collaborative work. For loading and logistics, the facility is equipped with one 10-foot by 10-foot drive-in door and one 10-foot by 10-foot dock door, ensuring efficient access for deliveries and shipments.
- Le loyer ne comprend pas les services publics, les frais immobiliers ou les services de l’immeuble.
- 1 accès plain-pied
- 1 conference room
- (1) 10'x10' drive-in door
- Comprend 257 m² d’espace de bureau dédié
- 1 quai de chargement
- 8 offices
| Espace | Surface | Durée | Loyer | Type de bien | Aménagement | Disponible |
| 1er étage | 1 224 m² | Négociable | 97,52 € /m²/an 8,13 € /m²/mois 119 331 € /an 9 944 € /mois | Industriel/Logistique | Construction achevée | Maintenant |
1er étage
| Surface |
| 1 224 m² |
| Durée |
| Négociable |
| Loyer |
| 97,52 € /m²/an 8,13 € /m²/mois 119 331 € /an 9 944 € /mois |
| Type de bien |
| Industriel/Logistique |
| Aménagement |
| Construction achevée |
| Disponible |
| Maintenant |
1er étage
| Surface | 1 224 m² |
| Durée | Négociable |
| Loyer | 97,52 € /m²/an |
| Type de bien | Industriel/Logistique |
| Aménagement | Construction achevée |
| Disponible | Maintenant |
The property encompasses a total building size of approximately 13,171 square feet, thoughtfully designed to support a range of operational needs. The layout includes a warehouse and assembly area of about 10,393 square feet, providing ample space for storage, production, or distribution activities. Complementing this is an office component of roughly 2,770 square feet, which features eight private offices and a dedicated conference room, offering a functional environment for administrative and collaborative work. For loading and logistics, the facility is equipped with one 10-foot by 10-foot drive-in door and one 10-foot by 10-foot dock door, ensuring efficient access for deliveries and shipments.
- Le loyer ne comprend pas les services publics, les frais immobiliers ou les services de l’immeuble.
- Comprend 257 m² d’espace de bureau dédié
- 1 accès plain-pied
- 1 quai de chargement
- 1 conference room
- 8 offices
- (1) 10'x10' drive-in door
Aperçu du bien
9 Ellwood Court in Greenville features approximately 13,171 square feet of versatile office and warehouse space available for lease. The building offers a well-balanced layout with about 10,393 square feet dedicated to warehouse and assembly functions, complemented by 2,770 square feet of office space. The office area includes eight private offices and a conference room, creating an efficient setting for both administrative and operational needs. For loading and distribution, the property is equipped with one 10-foot by 10-foot drive-in door and one 10-foot by 10-foot dock door, ensuring smooth logistical operations. Situated on approximately 1.2 acres and zoned S-1, the property provides excellent accessibility to major transportation routes. It is located just 1.6 miles from I-385, 2.5 miles from I-85, and about 8 miles from Downtown Greenville, offering convenient connectivity for regional and local business activity.
Faits sur l’installation entrepôt
Présenté par
9 Ellwood Ct
Hum, une erreur s’est produite lors de l’envoi de votre message. Veuillez réessayer.
Merci ! Votre message a été envoyé.






