Votre e-mail a été envoyé.
La Jolla Wellness Center La Jolla, CA 92037 Espace disponible | 52–6 385 m²



Certaines informations ont été traduites automatiquement.
Informations principales sur le parc
- Café sur place, salle de conférence ultramoderne, vestiaires et douches
- Parking couvert
- Gestion immobilière sur site
- De nombreux espaces de rassemblement extérieurs
- Gardien de sécurité fourni le soir et le week-end
Faits sur le parc
| Espace total disponible | 6 385 m² | Max. Contigu | 536 m² |
| Min. Divisible | 52 m² | Type de parc | Parc de bureaux |
| Espace total disponible | 6 385 m² |
| Min. Divisible | 52 m² |
| Max. Contigu | 536 m² |
| Type de parc | Parc de bureaux |
Tous les espaces disponibles(16)
Afficher les loyers en
- Espace
- Surface
- Durée
- Loyer
- Type de bien
- Aménagement
- Disponible
Bldg. A – Suite A109 • Space Available: 1,284 RSF • Lease Rate: Call for Pricing • Lease Type: Call for Pricing • Suite Description: Reception. 5 Private Offices. Conference Room. Kitchen Area. Floor Plan: https://medwestrealty.com/wp-content/uploads/2023/05/Bldg.-A-–-Suite-A109.png
- Entièrement aménagé comme Bureau standard
- Espace en excellent état
- 5 bureaux privés
Bldg. A – Suite A124 • Space Available: 11,249 RSF • Lease Rate: Call for Pricing • Lease Type: Call for Pricing • Suite Description: First floor Suite with retail drive-up, walk-in amenity. Eyebrow signage available. Large open floor plate with multiple windows providing ample natural light. Floor Plan: https://medwestrealty.com/wp-content/uploads/2023/05/Bldg.-A-–-Suite-A124.png
- Entièrement aménagé comme Bureau standard
- 4 bureaux privés
- Principalement open space
- Espace en excellent état
Bldg. A – Suite A126 • Space Available: 2,280 RSF • Lease Rate: Call for Pricing • Lease Type: Call for Pricing • Suite Description: First floor Suite with retail drive-up, walk-in amenity. Eyebrow signage available. Floor Plan: https://medwestrealty.com/wp-content/uploads/2023/05/Bldg.-A-–-Suite-A126.png
- Entièrement aménagé comme Bureau standard
- 4 bureaux privés
- Espace en excellent état
- Principalement open space
- 1 salle de conférence
- Aire de réception
Bldg. A – Suite A203-A217 • Space Available: 5,000 RSF - 21,918 RSF • Lease Rate: Call for Pricing • Lease Type: Call for Pricing • Suite Description: Ability to get 21,918 RSF of contiguous space. Vaulted ceilings providing new open feel. Expansive window line for natural light. Will demise Suites to 5,000 RSF. Floor Plan: https://medwestrealty.com/wp-content/uploads/2023/05/Bldg.-A-–-Suite-A203-A217.png
- Partiellement aménagé comme Bureau standard
- 2 bureaux privés
- Espace en excellent état
- Principalement open space
- 4 postes de travail
| Espace | Surface | Durée | Loyer | Type de bien | Aménagement | Disponible |
| 1er étage, bureau A109 | 119 m² | Négociable | Sur demande Sur demande Sur demande Sur demande | Bureaux/Médical | Construction achevée | 01/05/2026 |
| 1er étage, bureau A124 | 1 045 m² | Négociable | Sur demande Sur demande Sur demande Sur demande | Bureaux/Médical | Construction achevée | Maintenant |
| 1er étage, bureau A126 | 212 m² | Négociable | Sur demande Sur demande Sur demande Sur demande | Bureaux/Médical | Construction achevée | 30 jours |
| 2e étage, bureau A203-A217 | 465 – 2 036 m² | Négociable | Sur demande Sur demande Sur demande Sur demande | Bureaux/Médical | Construction partielle | Maintenant |
8950 Villa La Jolla Dr - 1er étage – Bureau A109
8950 Villa La Jolla Dr - 1er étage – Bureau A124
8950 Villa La Jolla Dr - 1er étage – Bureau A126
8950 Villa La Jolla Dr - 2e étage – Bureau A203-A217
- Espace
- Surface
- Durée
- Loyer
- Type de bien
- Aménagement
- Disponible
Bldg. B – Suite B122 • Space Available: 6,415 RSF • Lease Rate: Call for Pricing • Lease Type: Call for Pricing • Suite Description: Lots of natural light and located in the heart of the property. Easy access to elevator and parking area. Floor Plan: https://medwestrealty.com/wp-content/uploads/2023/05/Bldg.-B-–-Suite-B122.png
- Entièrement aménagé comme Bureau standard
- 4 postes de travail
- 20 bureaux privés
- Espace en excellent état
Bldg. B – Suite B209 • Space Available: 565 RSF - 1,836 RSF • Lease Rate: Call for Pricing • Lease Type: Call for Pricing • Suite Description: Suite can be combined with B212 for a total of 1,836 RSF. Floor Plan: https://medwestrealty.com/wp-content/uploads/2023/05/Bldg.-B-–-Suite-B209.png
- Entièrement aménagé comme Bureau standard
- Espace en excellent état
- Disposition open space
- Peut être associé à un ou plusieurs espaces supplémentaires pour obtenir jusqu’à 171 m² d’espace adjacent.
Bldg. B – Suite B212 • Space Available: 1,271 RSF - 1,836 RSF • Lease Rate: Call for Pricing • Lease Type: Call for Pricing • Suite Description: Suite can be combined with B209 for a total of 1,836 RSF. Floor Plan: https://medwestrealty.com/wp-content/uploads/2023/05/Bldg.-B-–-Suite-B212.png
- Entièrement aménagé comme Bureau standard
- Espace en excellent état
- Plan d’étage avec bureaux fermés
- Peut être associé à un ou plusieurs espaces supplémentaires pour obtenir jusqu’à 171 m² d’espace adjacent.
Bldg. B – Suite B218 • Space Available: 2,268 RSF - 4,325 RSF • Lease Rate: Call for Pricing • Lease Type: Call for Pricing • Suite Description: Suite can be combined with B220 for a total of 4,325 rsf. Office is in great location situated just off the heart of the property. 7 Offices. 1 Exam Room. 1 Break Room. 1 Conference Room. Floor Plan: https://medwestrealty.com/wp-content/uploads/2023/05/Bldg.-B-–-Suite-B218.png
- Entièrement aménagé comme Cabinet médical standard
- 1 salle de conférence
- Espace en excellent état
- 7 bureaux privés
- 1 poste de travail
- Peut être associé à un ou plusieurs espaces supplémentaires pour obtenir jusqu’à 402 m² d’espace adjacent.
Bldg. B – Suite B220 • Space Available: 2,057 RSF - 4,325 RSF • Lease Rate: Call for Pricing • Lease Type: Call for Pricing • Suite Description: Featuring hard to find second generation dental suite. 5 Treatment Rooms. 1 Sterilization Area. Lab. EnSuite Restroom. Break Room. Consult Room. Doctor’s Office. Reception and Waiting Room. Suite can be combined with B218 for a total of 4,325 rsf. Floor Plan: https://medwestrealty.com/wp-content/uploads/2023/05/Bldg.-B-–-Suite-B220.png Virtual Tour: https://my.matterport.com/show/?m=sKjWCg7oqXS
- Le loyer comprend les services publics, les services de l’immeuble et les frais immobiliers.
- 1 bureau privé
- Espace en excellent état
- Aire de réception
- Entièrement aménagé comme Cabinet médical standard
- 5 postes de travail
- Peut être associé à un ou plusieurs espaces supplémentaires pour obtenir jusqu’à 402 m² d’espace adjacent.
- Climatisation centrale
| Espace | Surface | Durée | Loyer | Type de bien | Aménagement | Disponible |
| 1er étage, bureau B122 | 596 m² | Négociable | Sur demande Sur demande Sur demande Sur demande | Bureaux/Médical | Construction achevée | Maintenant |
| 2e étage, bureau B209 | 52 m² | Négociable | Sur demande Sur demande Sur demande Sur demande | Bureaux/Médical | Construction achevée | Maintenant |
| 2e étage, bureau B212 | 118 m² | Négociable | Sur demande Sur demande Sur demande Sur demande | Bureau | Construction achevée | Maintenant |
| 2e étage, bureau B218 | 211 m² | Négociable | Sur demande Sur demande Sur demande Sur demande | Bureaux/Médical | Construction achevée | Maintenant |
| 2e étage, bureau B220 | 191 m² | Négociable | Sur demande Sur demande Sur demande Sur demande | Bureaux/Médical | Construction achevée | Maintenant |
8950 Villa La Jolla Dr - 1er étage – Bureau B122
8950 Villa La Jolla Dr - 2e étage – Bureau B209
8950 Villa La Jolla Dr - 2e étage – Bureau B212
8950 Villa La Jolla Dr - 2e étage – Bureau B218
8950 Villa La Jolla Dr - 2e étage – Bureau B220
- Espace
- Surface
- Durée
- Loyer
- Type de bien
- Aménagement
- Disponible
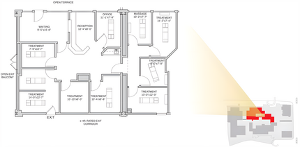
Bldg. C – Suite C117 • Space Available: 1,426 RSF • Lease Rate: Call for Pricing • Lease Type: Call for Pricing • Suite Description: Great second generation medical office space located on the First floor. Efficient layout with 5 treatment room, and one procedure room. En Suite restroom available for your patients exclusive use. Floor Plan: https://medwestrealty.com/wp-content/uploads/2023/05/Bldg.-C-–-Suite-C117.png
- Entièrement aménagé comme Cabinet médical standard
- Espace en excellent état
- Plan d’étage avec bureaux fermés
Bldg. C – Suite C126 • Space Available: 3,201 RSF • Lease Rate: Call for Pricing • Lease Type: Call for Pricing • Suite Description: Call for details. Floor Plan: https://medwestrealty.com/wp-content/uploads/2023/05/Bldg.-C-–-Suite-C126.png Virtual Tour: https://my.matterport.com/show/?m=3efdjKq3Cce
- Entièrement aménagé comme Cabinet médical standard
- 4 postes de travail
- Aire de réception
- 4 bureaux privés
- Espace en excellent état
Bldg. C – Suite C203 • Space Available: 7,760 RSF • Lease Rate: Call for Pricing • Lease Type: Call for Pricing • Suite Description: Large office suite with great window line, close to elevator. Easily converted to medical. Floor Plan: https://medwestrealty.com/wp-content/uploads/2023/05/Bldg.-C-–-Suite-C203.png
- Entièrement aménagé comme Bureau standard
- 2 salles de conférence
- Aire de réception
- 22 bureaux privés
- Espace en excellent état
Bldg. C – Suite C213 • Space Available: 1,465 RSF - 5,766 RSF • Lease Rate: Call for Pricing • Lease Type: Call for Pricing • Suite Description: Suite can be combined with C215 and C217 for a total of 5,766 rsf. Quiet location with many windows for ample natural light. Corner Suite with abundant window line with 4 offices. 2 small breakout rooms and reception area. Suite can be modified to fit your practice’s needs. Floor Plan: https://medwestrealty.com/wp-content/uploads/2023/05/Bldg.-C-–-Suite-C213.png
- Le loyer comprend les services publics, les services de l’immeuble et les frais immobiliers.
- 5 bureaux privés
- Aire de réception
- Partiellement aménagé comme Bureau standard
- Peut être associé à un ou plusieurs espaces supplémentaires pour obtenir jusqu’à 536 m² d’espace adjacent.
Bldg. C – Suite C215 (SPEC SUITE) • Space Available: 1,013 RSF - 5,766 RSF • Lease Rate: Call for Pricing • Lease Type: Call for Pricing • Suite Description: Suite can be combined with C213 and C217 for a total of 5,766 rsf. New Spec Suite perfect for single doctor or behavioral health practice. Quiet location - with beautiful serene setting outside the windows. Floor Plan: https://medwestrealty.com/wp-content/uploads/2023/05/Bldg.-C-–-Suite-C215.png Virtual Tour: https://my.matterport.com/show/?m=2WsEVeGVHb4
- 3 bureaux privés
- Peut être associé à un ou plusieurs espaces supplémentaires pour obtenir jusqu’à 536 m² d’espace adjacent.
- Espace en excellent état
- Suite de spécifications médicales
Bldg. C – Suite C217 • Space Available: 3,288 RSF - 5,766 RSF • Lease Rate: Call for Pricing • Lease Type: Call for Pricing • Suite Description: Suite can be combined with C213 and C215 for a total of 5,766 rsf. Existing behavioral health suite with 7 consult rooms, 1 break room, storage, large waiting and reception area. • Available within 90 days Floor Plan: https://medwestrealty.com/wp-content/uploads/2023/05/Bldg.-C-–-Suite-C217.png Virtual Tour: https://my.matterport.com/show/?m=B1d7wLojHuo
- Entièrement aménagé comme Cabinet médical standard
- Espace en excellent état
- 7 bureaux privés
- Peut être associé à un ou plusieurs espaces supplémentaires pour obtenir jusqu’à 536 m² d’espace adjacent.
Bldg. C – Suite C226 • Space Available: 1,263 RSF • Lease Rate: Call for Pricing • Lease Type: Call for Pricing • Suite Description: Great suite for single practitioner. Small office with three additional testing rooms. Ability to add reception area in front of suite. Floor Plan: https://medwestrealty.com/wp-content/uploads/2023/05/Bldg.-C-–-Suite-C226.png
- Entièrement aménagé comme Cabinet médical standard
- 3 bureaux privés
- Principalement open space
- Espace en excellent état
| Espace | Surface | Durée | Loyer | Type de bien | Aménagement | Disponible |
| 1er étage, bureau C117 | 132 m² | Négociable | Sur demande Sur demande Sur demande Sur demande | Bureaux/Médical | Construction achevée | Maintenant |
| 1er étage, bureau C126 | 297 m² | Négociable | Sur demande Sur demande Sur demande Sur demande | Bureaux/Médical | Construction achevée | Maintenant |
| 2e étage, bureau C203 | 721 m² | Négociable | Sur demande Sur demande Sur demande Sur demande | Bureaux/Médical | Construction achevée | Maintenant |
| 2e étage, bureau C213 | 136 m² | Négociable | Sur demande Sur demande Sur demande Sur demande | Bureaux/Médical | Construction partielle | Maintenant |
| 2e étage, bureau C215 | 94 m² | Négociable | Sur demande Sur demande Sur demande Sur demande | Bureaux/Médical | Meublé et équipé | Maintenant |
| 2e étage, bureau C217 | 305 m² | Négociable | Sur demande Sur demande Sur demande Sur demande | Bureaux/Médical | Construction achevée | Maintenant |
| 2e étage, bureau C226 | 117 m² | Négociable | Sur demande Sur demande Sur demande Sur demande | Bureaux/Médical | Construction achevée | Maintenant |
8950 Villa La Jolla Dr - 1er étage – Bureau C117
8950 Villa La Jolla Dr - 1er étage – Bureau C126
8950 Villa La Jolla Dr - 2e étage – Bureau C203
8950 Villa La Jolla Dr - 2e étage – Bureau C213
8950 Villa La Jolla Dr - 2e étage – Bureau C215
8950 Villa La Jolla Dr - 2e étage – Bureau C217
8950 Villa La Jolla Dr - 2e étage – Bureau C226
8950 Villa La Jolla Dr - 1er étage – Bureau A109
| Surface | 119 m² |
| Durée | Négociable |
| Loyer | Sur demande |
| Type de bien | Bureaux/Médical |
| Aménagement | Construction achevée |
| Disponible | 01/05/2026 |
Bldg. A – Suite A109 • Space Available: 1,284 RSF • Lease Rate: Call for Pricing • Lease Type: Call for Pricing • Suite Description: Reception. 5 Private Offices. Conference Room. Kitchen Area. Floor Plan: https://medwestrealty.com/wp-content/uploads/2023/05/Bldg.-A-–-Suite-A109.png
- Entièrement aménagé comme Bureau standard
- 5 bureaux privés
- Espace en excellent état
8950 Villa La Jolla Dr - 1er étage – Bureau A124
| Surface | 1 045 m² |
| Durée | Négociable |
| Loyer | Sur demande |
| Type de bien | Bureaux/Médical |
| Aménagement | Construction achevée |
| Disponible | Maintenant |
Bldg. A – Suite A124 • Space Available: 11,249 RSF • Lease Rate: Call for Pricing • Lease Type: Call for Pricing • Suite Description: First floor Suite with retail drive-up, walk-in amenity. Eyebrow signage available. Large open floor plate with multiple windows providing ample natural light. Floor Plan: https://medwestrealty.com/wp-content/uploads/2023/05/Bldg.-A-–-Suite-A124.png
- Entièrement aménagé comme Bureau standard
- Principalement open space
- 4 bureaux privés
- Espace en excellent état
8950 Villa La Jolla Dr - 1er étage – Bureau A126
| Surface | 212 m² |
| Durée | Négociable |
| Loyer | Sur demande |
| Type de bien | Bureaux/Médical |
| Aménagement | Construction achevée |
| Disponible | 30 jours |
Bldg. A – Suite A126 • Space Available: 2,280 RSF • Lease Rate: Call for Pricing • Lease Type: Call for Pricing • Suite Description: First floor Suite with retail drive-up, walk-in amenity. Eyebrow signage available. Floor Plan: https://medwestrealty.com/wp-content/uploads/2023/05/Bldg.-A-–-Suite-A126.png
- Entièrement aménagé comme Bureau standard
- Principalement open space
- 4 bureaux privés
- 1 salle de conférence
- Espace en excellent état
- Aire de réception
8950 Villa La Jolla Dr - 2e étage – Bureau A203-A217
| Surface | 465 – 2 036 m² |
| Durée | Négociable |
| Loyer | Sur demande |
| Type de bien | Bureaux/Médical |
| Aménagement | Construction partielle |
| Disponible | Maintenant |
Bldg. A – Suite A203-A217 • Space Available: 5,000 RSF - 21,918 RSF • Lease Rate: Call for Pricing • Lease Type: Call for Pricing • Suite Description: Ability to get 21,918 RSF of contiguous space. Vaulted ceilings providing new open feel. Expansive window line for natural light. Will demise Suites to 5,000 RSF. Floor Plan: https://medwestrealty.com/wp-content/uploads/2023/05/Bldg.-A-–-Suite-A203-A217.png
- Partiellement aménagé comme Bureau standard
- Principalement open space
- 2 bureaux privés
- 4 postes de travail
- Espace en excellent état
8950 Villa La Jolla Dr - 1er étage – Bureau B122
| Surface | 596 m² |
| Durée | Négociable |
| Loyer | Sur demande |
| Type de bien | Bureaux/Médical |
| Aménagement | Construction achevée |
| Disponible | Maintenant |
Bldg. B – Suite B122 • Space Available: 6,415 RSF • Lease Rate: Call for Pricing • Lease Type: Call for Pricing • Suite Description: Lots of natural light and located in the heart of the property. Easy access to elevator and parking area. Floor Plan: https://medwestrealty.com/wp-content/uploads/2023/05/Bldg.-B-–-Suite-B122.png
- Entièrement aménagé comme Bureau standard
- 20 bureaux privés
- 4 postes de travail
- Espace en excellent état
8950 Villa La Jolla Dr - 2e étage – Bureau B209
| Surface | 52 m² |
| Durée | Négociable |
| Loyer | Sur demande |
| Type de bien | Bureaux/Médical |
| Aménagement | Construction achevée |
| Disponible | Maintenant |
Bldg. B – Suite B209 • Space Available: 565 RSF - 1,836 RSF • Lease Rate: Call for Pricing • Lease Type: Call for Pricing • Suite Description: Suite can be combined with B212 for a total of 1,836 RSF. Floor Plan: https://medwestrealty.com/wp-content/uploads/2023/05/Bldg.-B-–-Suite-B209.png
- Entièrement aménagé comme Bureau standard
- Disposition open space
- Espace en excellent état
- Peut être associé à un ou plusieurs espaces supplémentaires pour obtenir jusqu’à 171 m² d’espace adjacent.
8950 Villa La Jolla Dr - 2e étage – Bureau B212
| Surface | 118 m² |
| Durée | Négociable |
| Loyer | Sur demande |
| Type de bien | Bureau |
| Aménagement | Construction achevée |
| Disponible | Maintenant |
Bldg. B – Suite B212 • Space Available: 1,271 RSF - 1,836 RSF • Lease Rate: Call for Pricing • Lease Type: Call for Pricing • Suite Description: Suite can be combined with B209 for a total of 1,836 RSF. Floor Plan: https://medwestrealty.com/wp-content/uploads/2023/05/Bldg.-B-–-Suite-B212.png
- Entièrement aménagé comme Bureau standard
- Plan d’étage avec bureaux fermés
- Espace en excellent état
- Peut être associé à un ou plusieurs espaces supplémentaires pour obtenir jusqu’à 171 m² d’espace adjacent.
8950 Villa La Jolla Dr - 2e étage – Bureau B218
| Surface | 211 m² |
| Durée | Négociable |
| Loyer | Sur demande |
| Type de bien | Bureaux/Médical |
| Aménagement | Construction achevée |
| Disponible | Maintenant |
Bldg. B – Suite B218 • Space Available: 2,268 RSF - 4,325 RSF • Lease Rate: Call for Pricing • Lease Type: Call for Pricing • Suite Description: Suite can be combined with B220 for a total of 4,325 rsf. Office is in great location situated just off the heart of the property. 7 Offices. 1 Exam Room. 1 Break Room. 1 Conference Room. Floor Plan: https://medwestrealty.com/wp-content/uploads/2023/05/Bldg.-B-–-Suite-B218.png
- Entièrement aménagé comme Cabinet médical standard
- 7 bureaux privés
- 1 salle de conférence
- 1 poste de travail
- Espace en excellent état
- Peut être associé à un ou plusieurs espaces supplémentaires pour obtenir jusqu’à 402 m² d’espace adjacent.
8950 Villa La Jolla Dr - 2e étage – Bureau B220
| Surface | 191 m² |
| Durée | Négociable |
| Loyer | Sur demande |
| Type de bien | Bureaux/Médical |
| Aménagement | Construction achevée |
| Disponible | Maintenant |
Bldg. B – Suite B220 • Space Available: 2,057 RSF - 4,325 RSF • Lease Rate: Call for Pricing • Lease Type: Call for Pricing • Suite Description: Featuring hard to find second generation dental suite. 5 Treatment Rooms. 1 Sterilization Area. Lab. EnSuite Restroom. Break Room. Consult Room. Doctor’s Office. Reception and Waiting Room. Suite can be combined with B218 for a total of 4,325 rsf. Floor Plan: https://medwestrealty.com/wp-content/uploads/2023/05/Bldg.-B-–-Suite-B220.png Virtual Tour: https://my.matterport.com/show/?m=sKjWCg7oqXS
- Le loyer comprend les services publics, les services de l’immeuble et les frais immobiliers.
- Entièrement aménagé comme Cabinet médical standard
- 1 bureau privé
- 5 postes de travail
- Espace en excellent état
- Peut être associé à un ou plusieurs espaces supplémentaires pour obtenir jusqu’à 402 m² d’espace adjacent.
- Aire de réception
- Climatisation centrale
8950 Villa La Jolla Dr - 1er étage – Bureau C117
| Surface | 132 m² |
| Durée | Négociable |
| Loyer | Sur demande |
| Type de bien | Bureaux/Médical |
| Aménagement | Construction achevée |
| Disponible | Maintenant |
Bldg. C – Suite C117 • Space Available: 1,426 RSF • Lease Rate: Call for Pricing • Lease Type: Call for Pricing • Suite Description: Great second generation medical office space located on the First floor. Efficient layout with 5 treatment room, and one procedure room. En Suite restroom available for your patients exclusive use. Floor Plan: https://medwestrealty.com/wp-content/uploads/2023/05/Bldg.-C-–-Suite-C117.png
- Entièrement aménagé comme Cabinet médical standard
- Plan d’étage avec bureaux fermés
- Espace en excellent état
8950 Villa La Jolla Dr - 1er étage – Bureau C126
| Surface | 297 m² |
| Durée | Négociable |
| Loyer | Sur demande |
| Type de bien | Bureaux/Médical |
| Aménagement | Construction achevée |
| Disponible | Maintenant |
Bldg. C – Suite C126 • Space Available: 3,201 RSF • Lease Rate: Call for Pricing • Lease Type: Call for Pricing • Suite Description: Call for details. Floor Plan: https://medwestrealty.com/wp-content/uploads/2023/05/Bldg.-C-–-Suite-C126.png Virtual Tour: https://my.matterport.com/show/?m=3efdjKq3Cce
- Entièrement aménagé comme Cabinet médical standard
- 4 bureaux privés
- 4 postes de travail
- Espace en excellent état
- Aire de réception
8950 Villa La Jolla Dr - 2e étage – Bureau C203
| Surface | 721 m² |
| Durée | Négociable |
| Loyer | Sur demande |
| Type de bien | Bureaux/Médical |
| Aménagement | Construction achevée |
| Disponible | Maintenant |
Bldg. C – Suite C203 • Space Available: 7,760 RSF • Lease Rate: Call for Pricing • Lease Type: Call for Pricing • Suite Description: Large office suite with great window line, close to elevator. Easily converted to medical. Floor Plan: https://medwestrealty.com/wp-content/uploads/2023/05/Bldg.-C-–-Suite-C203.png
- Entièrement aménagé comme Bureau standard
- 22 bureaux privés
- 2 salles de conférence
- Espace en excellent état
- Aire de réception
8950 Villa La Jolla Dr - 2e étage – Bureau C213
| Surface | 136 m² |
| Durée | Négociable |
| Loyer | Sur demande |
| Type de bien | Bureaux/Médical |
| Aménagement | Construction partielle |
| Disponible | Maintenant |
Bldg. C – Suite C213 • Space Available: 1,465 RSF - 5,766 RSF • Lease Rate: Call for Pricing • Lease Type: Call for Pricing • Suite Description: Suite can be combined with C215 and C217 for a total of 5,766 rsf. Quiet location with many windows for ample natural light. Corner Suite with abundant window line with 4 offices. 2 small breakout rooms and reception area. Suite can be modified to fit your practice’s needs. Floor Plan: https://medwestrealty.com/wp-content/uploads/2023/05/Bldg.-C-–-Suite-C213.png
- Le loyer comprend les services publics, les services de l’immeuble et les frais immobiliers.
- Partiellement aménagé comme Bureau standard
- 5 bureaux privés
- Peut être associé à un ou plusieurs espaces supplémentaires pour obtenir jusqu’à 536 m² d’espace adjacent.
- Aire de réception
8950 Villa La Jolla Dr - 2e étage – Bureau C215
| Surface | 94 m² |
| Durée | Négociable |
| Loyer | Sur demande |
| Type de bien | Bureaux/Médical |
| Aménagement | Meublé et équipé |
| Disponible | Maintenant |
Bldg. C – Suite C215 (SPEC SUITE) • Space Available: 1,013 RSF - 5,766 RSF • Lease Rate: Call for Pricing • Lease Type: Call for Pricing • Suite Description: Suite can be combined with C213 and C217 for a total of 5,766 rsf. New Spec Suite perfect for single doctor or behavioral health practice. Quiet location - with beautiful serene setting outside the windows. Floor Plan: https://medwestrealty.com/wp-content/uploads/2023/05/Bldg.-C-–-Suite-C215.png Virtual Tour: https://my.matterport.com/show/?m=2WsEVeGVHb4
- 3 bureaux privés
- Espace en excellent état
- Peut être associé à un ou plusieurs espaces supplémentaires pour obtenir jusqu’à 536 m² d’espace adjacent.
- Suite de spécifications médicales
8950 Villa La Jolla Dr - 2e étage – Bureau C217
| Surface | 305 m² |
| Durée | Négociable |
| Loyer | Sur demande |
| Type de bien | Bureaux/Médical |
| Aménagement | Construction achevée |
| Disponible | Maintenant |
Bldg. C – Suite C217 • Space Available: 3,288 RSF - 5,766 RSF • Lease Rate: Call for Pricing • Lease Type: Call for Pricing • Suite Description: Suite can be combined with C213 and C215 for a total of 5,766 rsf. Existing behavioral health suite with 7 consult rooms, 1 break room, storage, large waiting and reception area. • Available within 90 days Floor Plan: https://medwestrealty.com/wp-content/uploads/2023/05/Bldg.-C-–-Suite-C217.png Virtual Tour: https://my.matterport.com/show/?m=B1d7wLojHuo
- Entièrement aménagé comme Cabinet médical standard
- 7 bureaux privés
- Espace en excellent état
- Peut être associé à un ou plusieurs espaces supplémentaires pour obtenir jusqu’à 536 m² d’espace adjacent.
8950 Villa La Jolla Dr - 2e étage – Bureau C226
| Surface | 117 m² |
| Durée | Négociable |
| Loyer | Sur demande |
| Type de bien | Bureaux/Médical |
| Aménagement | Construction achevée |
| Disponible | Maintenant |
Bldg. C – Suite C226 • Space Available: 1,263 RSF • Lease Rate: Call for Pricing • Lease Type: Call for Pricing • Suite Description: Great suite for single practitioner. Small office with three additional testing rooms. Ability to add reception area in front of suite. Floor Plan: https://medwestrealty.com/wp-content/uploads/2023/05/Bldg.-C-–-Suite-C226.png
- Entièrement aménagé comme Cabinet médical standard
- Principalement open space
- 3 bureaux privés
- Espace en excellent état
Vue d’ensemble du parc
Accès immédiat à l'Interstate 5. Équipe de direction très réactive et conviviale pour les locataires. Adresse résolument recherchée à La Jolla. À distance de marche de plus de 20 restaurants. Intersection de La Jolla Village Drive et Villa La Jolla Drive. Spécifications du bâtiment : Superficie du site : 6,78 acres Superficie totale du campus : 199 518 Espace d'agrément : 23 000 Type de construction : cadre en bois Connectivité : ponts extérieurs reliant les bâtiments A, B et C Stationnement : 3,64/1 000 pieds carrés
Présenté par
La Jolla Wellness Center | La Jolla, CA 92037
Hum, une erreur s’est produite lors de l’envoi de votre message. Veuillez réessayer.
Merci ! Votre message a été envoyé.
