Votre e-mail a été envoyé.
Certaines informations ont été traduites automatiquement.
INFORMATIONS PRINCIPALES SUR LE PARC
- High-income demographics with a median household income of $115,250 and 26,000+ daytime workers within a 3-mile radius.
- Centrally located near I-480 and Route 82 with direct access to retail, restaurants, and hotels.
FAITS SUR LE PARC
| Espace total disponible | 6 506 m² | Max. Contigu | 3 716 m² |
| Min. Divisible | 191 m² | Type de parc | Parc de bureaux |
| Espace total disponible | 6 506 m² |
| Min. Divisible | 191 m² |
| Max. Contigu | 3 716 m² |
| Type de parc | Parc de bureaux |
TOUS LES ESPACES DISPONIBLES(5)
Afficher les loyers en
- ESPACE
- SURFACE
- DURÉE
- LOYER
- TYPE DE BIEN
- ÉTAT
- DISPONIBLE
Positioned in the heart of Twinsburg’s commercial corridor, the Canyon Falls Office Complex offers a rare blend of flexibility, visibility, and convenience. This three-building Class A/B office campus spans over 94,000 square feet and is ideally suited for businesses seeking a professional environment with modern infrastructure and immediate access to key amenities. Each building is thoughtfully designed with tenant comfort and operational continuity in mind. Features include backup generators, outdoor patio areas, kitchenettes, and abundant natural light. The complex is surrounded by a vibrant mix of retail, dining, medical, and hospitality services, and is just minutes from I-480 and Route 82, offering seamless connectivity to both Cleveland Hopkins and Akron-Canton airports. Tenants benefit from generous surface parking (250+ spaces), Akron Metro Bus #32 access, and a park-like setting that enhances workplace well-being. With suites ranging from 2,060 to 40,000 square feet, Canyon Falls accommodates a wide range of business sizes and industries, including medical, educational, and professional services.
- Le loyer ne comprend pas les services publics, les frais immobiliers ou les services de l’immeuble.
- Principalement open space
- Espace en excellent état
- Common areas near elevator
- Back-up generator
- Entièrement aménagé comme Bureau standard
- Convient pour 50 à 160 personnes
- Peut être associé à un ou plusieurs espaces supplémentaires pour obtenir jusqu’à 3 716 m² d’espace adjacent.
- Built in 2000
- Plenty of parking
Positioned in the heart of Twinsburg’s commercial corridor, the Canyon Falls Office Complex offers a rare blend of flexibility, visibility, and convenience. This three-building Class A/B office campus spans over 94,000 square feet and is ideally suited for businesses seeking a professional environment with modern infrastructure and immediate access to key amenities. Each building is thoughtfully designed with tenant comfort and operational continuity in mind. Features include backup generators, outdoor patio areas, kitchenettes, and abundant natural light. The complex is surrounded by a vibrant mix of retail, dining, medical, and hospitality services, and is just minutes from I-480 and Route 82, offering seamless connectivity to both Cleveland Hopkins and Akron-Canton airports. Tenants benefit from generous surface parking (250+ spaces), Akron Metro Bus #32 access, and a park-like setting that enhances workplace well-being. With suites ranging from 2,060 to 40,000 square feet, Canyon Falls accommodates a wide range of business sizes and industries, including medical, educational, and professional services.
- Le loyer ne comprend pas les services publics, les frais immobiliers ou les services de l’immeuble.
- Principalement open space
- Espace en excellent état
- Common areas near elevator
- Back-up generator
- Entièrement aménagé comme Bureau standard
- Convient pour 50 à 160 personnes
- Peut être associé à un ou plusieurs espaces supplémentaires pour obtenir jusqu’à 3 716 m² d’espace adjacent.
- Built in 2000
- Plenty of parking
| Espace | Surface | Durée | Loyer | Type de bien | État | Disponible |
| 1er étage, bureau A100 | 1 858 m² | 1-10 Ans | 153,22 € /m²/an 12,77 € /m²/mois 284 688 € /an 23 724 € /mois | Bureau | Construction achevée | Maintenant |
| 2e étage, bureau A200 | 1 858 m² | 1-10 Ans | 153,22 € /m²/an 12,77 € /m²/mois 284 688 € /an 23 724 € /mois | Bureau | Construction achevée | Maintenant |
8957 Canyon Falls Blvd - 1er étage – Bureau A100
8957 Canyon Falls Blvd - 2e étage – Bureau A200
- ESPACE
- SURFACE
- DURÉE
- LOYER
- TYPE DE BIEN
- ÉTAT
- DISPONIBLE
Positioned in the heart of Twinsburg’s commercial corridor, the Canyon Falls Office Complex offers a rare blend of flexibility, visibility, and convenience. This three-building Class A/B office campus spans over 94,000 square feet and is ideally suited for businesses seeking a professional environment with modern infrastructure and immediate access to key amenities. Each building is thoughtfully designed with tenant comfort and operational continuity in mind. Features include backup generators, outdoor patio areas, kitchenettes, and abundant natural light. The complex is surrounded by a vibrant mix of retail, dining, medical, and hospitality services, and is just minutes from I-480 and Route 82, offering seamless connectivity to both Cleveland Hopkins and Akron-Canton airports. Tenants benefit from generous surface parking (250+ spaces), Akron Metro Bus #32 access, and a park-like setting that enhances workplace well-being. With suites ranging from 2,060 to 40,000 square feet, Canyon Falls accommodates a wide range of business sizes and industries, including medical, educational, and professional services.
- Le loyer ne comprend pas les services publics, les frais immobiliers ou les services de l’immeuble.
- Convient pour 6 à 17 personnes
- Espace en excellent état
- Back-up generator
- Entièrement aménagé comme Bureau standard
- 7 bureaux privés
- Built in 2021
Positioned in the heart of Twinsburg’s commercial corridor, the Canyon Falls Office Complex offers a rare blend of flexibility, visibility, and convenience. This three-building Class A/B office campus spans over 94,000 square feet and is ideally suited for businesses seeking a professional environment with modern infrastructure and immediate access to key amenities. Each building is thoughtfully designed with tenant comfort and operational continuity in mind. Features include backup generators, outdoor patio areas, kitchenettes, and abundant natural light. The complex is surrounded by a vibrant mix of retail, dining, medical, and hospitality services, and is just minutes from I-480 and Route 82, offering seamless connectivity to both Cleveland Hopkins and Akron-Canton airports. Tenants benefit from generous surface parking (250+ spaces), Akron Metro Bus #32 access, and a park-like setting that enhances workplace well-being. With suites ranging from 2,060 to 40,000 square feet, Canyon Falls accommodates a wide range of business sizes and industries, including medical, educational, and professional services.
- Le loyer ne comprend pas les services publics, les frais immobiliers ou les services de l’immeuble.
- Principalement open space
- Espace en excellent état
- Back-up generator
- Entièrement aménagé comme Bureau standard
- Convient pour 13 à 90 personnes
- Built in 2021
- Divisible to 2 suites 6,000 SF & 5,158 SF
| Espace | Surface | Durée | Loyer | Type de bien | État | Disponible |
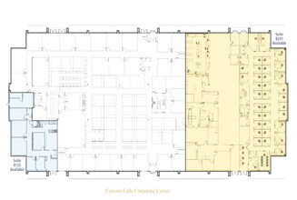
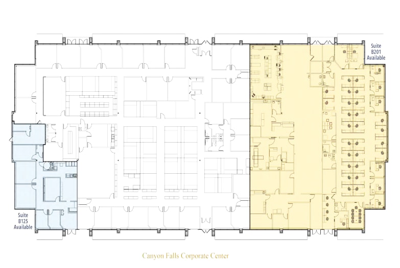
| 1er étage, bureau B125 | 191 m² | 1-10 Ans | 153,22 € /m²/an 12,77 € /m²/mois 29 323 € /an 2 444 € /mois | Bureau | Construction achevée | Maintenant |
| 1er étage, bureau B201 | 479 – 1 040 m² | 1-10 Ans | 153,22 € /m²/an 12,77 € /m²/mois 159 397 € /an 13 283 € /mois | Bureau | Construction achevée | Maintenant |
8920 Canyon Falls Blvd - 1er étage – Bureau B125
8920 Canyon Falls Blvd - 1er étage – Bureau B201
- ESPACE
- SURFACE
- DURÉE
- LOYER
- TYPE DE BIEN
- ÉTAT
- DISPONIBLE
Positioned in the heart of Twinsburg’s commercial corridor, the Canyon Falls Office Complex offers a rare blend of flexibility, visibility, and convenience. This three-building Class A/B office campus spans over 94,000 square feet and is ideally suited for businesses seeking a professional environment with modern infrastructure and immediate access to key amenities. Each building is thoughtfully designed with tenant comfort and operational continuity in mind. Features include backup generators, outdoor patio areas, kitchenettes, and abundant natural light. The complex is surrounded by a vibrant mix of retail, dining, medical, and hospitality services, and is just minutes from I-480 and Route 82, offering seamless connectivity to both Cleveland Hopkins and Akron-Canton airports. Tenants benefit from generous surface parking (250+ spaces), Akron Metro Bus #32 access, and a park-like setting that enhances workplace well-being. With suites ranging from 2,060 to 40,000 square feet, Canyon Falls accommodates a wide range of business sizes and industries, including medical, educational, and professional services.
- Le loyer ne comprend pas les services publics, les frais immobiliers ou les services de l’immeuble.
- Principalement open space
- Espace en excellent état
- Back-up generator
- Entièrement aménagé comme Bureau standard
- Convient pour 42 à 135 personnes
- Built in 2007
| Espace | Surface | Durée | Loyer | Type de bien | État | Disponible |
| 1er étage, bureau C100 | 1 559 m² | 1-10 Ans | 153,22 € /m²/an 12,77 € /m²/mois 238 796 € /an 19 900 € /mois | Bureau | Construction achevée | Maintenant |
8921 Canyon Falls Blvd - 1er étage – Bureau C100
8957 Canyon Falls Blvd - 1er étage – Bureau A100
| Surface | 1 858 m² |
| Durée | 1-10 Ans |
| Loyer | 153,22 € /m²/an |
| Type de bien | Bureau |
| État | Construction achevée |
| Disponible | Maintenant |
Positioned in the heart of Twinsburg’s commercial corridor, the Canyon Falls Office Complex offers a rare blend of flexibility, visibility, and convenience. This three-building Class A/B office campus spans over 94,000 square feet and is ideally suited for businesses seeking a professional environment with modern infrastructure and immediate access to key amenities. Each building is thoughtfully designed with tenant comfort and operational continuity in mind. Features include backup generators, outdoor patio areas, kitchenettes, and abundant natural light. The complex is surrounded by a vibrant mix of retail, dining, medical, and hospitality services, and is just minutes from I-480 and Route 82, offering seamless connectivity to both Cleveland Hopkins and Akron-Canton airports. Tenants benefit from generous surface parking (250+ spaces), Akron Metro Bus #32 access, and a park-like setting that enhances workplace well-being. With suites ranging from 2,060 to 40,000 square feet, Canyon Falls accommodates a wide range of business sizes and industries, including medical, educational, and professional services.
- Le loyer ne comprend pas les services publics, les frais immobiliers ou les services de l’immeuble.
- Entièrement aménagé comme Bureau standard
- Principalement open space
- Convient pour 50 à 160 personnes
- Espace en excellent état
- Peut être associé à un ou plusieurs espaces supplémentaires pour obtenir jusqu’à 3 716 m² d’espace adjacent.
- Common areas near elevator
- Built in 2000
- Back-up generator
- Plenty of parking
8957 Canyon Falls Blvd - 2e étage – Bureau A200
| Surface | 1 858 m² |
| Durée | 1-10 Ans |
| Loyer | 153,22 € /m²/an |
| Type de bien | Bureau |
| État | Construction achevée |
| Disponible | Maintenant |
Positioned in the heart of Twinsburg’s commercial corridor, the Canyon Falls Office Complex offers a rare blend of flexibility, visibility, and convenience. This three-building Class A/B office campus spans over 94,000 square feet and is ideally suited for businesses seeking a professional environment with modern infrastructure and immediate access to key amenities. Each building is thoughtfully designed with tenant comfort and operational continuity in mind. Features include backup generators, outdoor patio areas, kitchenettes, and abundant natural light. The complex is surrounded by a vibrant mix of retail, dining, medical, and hospitality services, and is just minutes from I-480 and Route 82, offering seamless connectivity to both Cleveland Hopkins and Akron-Canton airports. Tenants benefit from generous surface parking (250+ spaces), Akron Metro Bus #32 access, and a park-like setting that enhances workplace well-being. With suites ranging from 2,060 to 40,000 square feet, Canyon Falls accommodates a wide range of business sizes and industries, including medical, educational, and professional services.
- Le loyer ne comprend pas les services publics, les frais immobiliers ou les services de l’immeuble.
- Entièrement aménagé comme Bureau standard
- Principalement open space
- Convient pour 50 à 160 personnes
- Espace en excellent état
- Peut être associé à un ou plusieurs espaces supplémentaires pour obtenir jusqu’à 3 716 m² d’espace adjacent.
- Common areas near elevator
- Built in 2000
- Back-up generator
- Plenty of parking
8920 Canyon Falls Blvd - 1er étage – Bureau B125
| Surface | 191 m² |
| Durée | 1-10 Ans |
| Loyer | 153,22 € /m²/an |
| Type de bien | Bureau |
| État | Construction achevée |
| Disponible | Maintenant |
Positioned in the heart of Twinsburg’s commercial corridor, the Canyon Falls Office Complex offers a rare blend of flexibility, visibility, and convenience. This three-building Class A/B office campus spans over 94,000 square feet and is ideally suited for businesses seeking a professional environment with modern infrastructure and immediate access to key amenities. Each building is thoughtfully designed with tenant comfort and operational continuity in mind. Features include backup generators, outdoor patio areas, kitchenettes, and abundant natural light. The complex is surrounded by a vibrant mix of retail, dining, medical, and hospitality services, and is just minutes from I-480 and Route 82, offering seamless connectivity to both Cleveland Hopkins and Akron-Canton airports. Tenants benefit from generous surface parking (250+ spaces), Akron Metro Bus #32 access, and a park-like setting that enhances workplace well-being. With suites ranging from 2,060 to 40,000 square feet, Canyon Falls accommodates a wide range of business sizes and industries, including medical, educational, and professional services.
- Le loyer ne comprend pas les services publics, les frais immobiliers ou les services de l’immeuble.
- Entièrement aménagé comme Bureau standard
- Convient pour 6 à 17 personnes
- 7 bureaux privés
- Espace en excellent état
- Built in 2021
- Back-up generator
8920 Canyon Falls Blvd - 1er étage – Bureau B201
| Surface | 479 – 1 040 m² |
| Durée | 1-10 Ans |
| Loyer | 153,22 € /m²/an |
| Type de bien | Bureau |
| État | Construction achevée |
| Disponible | Maintenant |
Positioned in the heart of Twinsburg’s commercial corridor, the Canyon Falls Office Complex offers a rare blend of flexibility, visibility, and convenience. This three-building Class A/B office campus spans over 94,000 square feet and is ideally suited for businesses seeking a professional environment with modern infrastructure and immediate access to key amenities. Each building is thoughtfully designed with tenant comfort and operational continuity in mind. Features include backup generators, outdoor patio areas, kitchenettes, and abundant natural light. The complex is surrounded by a vibrant mix of retail, dining, medical, and hospitality services, and is just minutes from I-480 and Route 82, offering seamless connectivity to both Cleveland Hopkins and Akron-Canton airports. Tenants benefit from generous surface parking (250+ spaces), Akron Metro Bus #32 access, and a park-like setting that enhances workplace well-being. With suites ranging from 2,060 to 40,000 square feet, Canyon Falls accommodates a wide range of business sizes and industries, including medical, educational, and professional services.
- Le loyer ne comprend pas les services publics, les frais immobiliers ou les services de l’immeuble.
- Entièrement aménagé comme Bureau standard
- Principalement open space
- Convient pour 13 à 90 personnes
- Espace en excellent état
- Built in 2021
- Back-up generator
- Divisible to 2 suites 6,000 SF & 5,158 SF
8921 Canyon Falls Blvd - 1er étage – Bureau C100
| Surface | 1 559 m² |
| Durée | 1-10 Ans |
| Loyer | 153,22 € /m²/an |
| Type de bien | Bureau |
| État | Construction achevée |
| Disponible | Maintenant |
Positioned in the heart of Twinsburg’s commercial corridor, the Canyon Falls Office Complex offers a rare blend of flexibility, visibility, and convenience. This three-building Class A/B office campus spans over 94,000 square feet and is ideally suited for businesses seeking a professional environment with modern infrastructure and immediate access to key amenities. Each building is thoughtfully designed with tenant comfort and operational continuity in mind. Features include backup generators, outdoor patio areas, kitchenettes, and abundant natural light. The complex is surrounded by a vibrant mix of retail, dining, medical, and hospitality services, and is just minutes from I-480 and Route 82, offering seamless connectivity to both Cleveland Hopkins and Akron-Canton airports. Tenants benefit from generous surface parking (250+ spaces), Akron Metro Bus #32 access, and a park-like setting that enhances workplace well-being. With suites ranging from 2,060 to 40,000 square feet, Canyon Falls accommodates a wide range of business sizes and industries, including medical, educational, and professional services.
- Le loyer ne comprend pas les services publics, les frais immobiliers ou les services de l’immeuble.
- Entièrement aménagé comme Bureau standard
- Principalement open space
- Convient pour 42 à 135 personnes
- Espace en excellent état
- Built in 2007
- Back-up generator
SÉLECTIONNER DES OCCUPANTS À CE BIEN
- ÉTAGE
- NOM DE L’OCCUPANT
- SECTEUR D’ACTIVITÉ
- 1er
- Envision
- Santé et assistance sociale
- 1er
- Rx Options
- Enseigne
- 1er
- Shelly Company
- Manufacture
VUE D’ENSEMBLE DU PARC
Positioned in the heart of Twinsburg’s commercial corridor, the Canyon Falls Office Complex offers a rare blend of flexibility, visibility, and convenience. This three-building Class A/B office campus spans over 94,000 square feet and is ideally suited for businesses seeking a professional environment with modern infrastructure and immediate access to key amenities. Each building is thoughtfully designed with tenant comfort and operational continuity in mind. Features include backup generators, outdoor patio areas, kitchenettes, and abundant natural light. The complex is surrounded by a vibrant mix of retail, dining, medical, and hospitality services, and is just minutes from I-480 and Route 82, offering seamless connectivity to both Cleveland Hopkins and Akron-Canton airports. Tenants benefit from generous surface parking (250+ spaces), Akron Metro Bus #32 access, and a park-like setting that enhances workplace well-being. Canyon Falls accommodates a wide range of business sizes and industries, including medical, educational, and professional services.
Présenté par
Canyon Falls Corporate Center | Twinsburg, OH 44087
Hum, une erreur s’est produite lors de l’envoi de votre message. Veuillez réessayer.
Merci ! Votre message a été envoyé.










