Votre e-mail a été envoyé.
8840 Morro Rd Bureau | 136 m² | 468 584 € | À vendre | Atascadero, CA 93422



Certaines informations ont été traduites automatiquement.
INFORMATIONS PRINCIPALES SUR L'INVESTISSEMENT
- Freestanding Commercial Condo
- Long-term Gross Lease In Place
- Convenient Access off Highway 41
RÉSUMÉ ANALYTIQUE
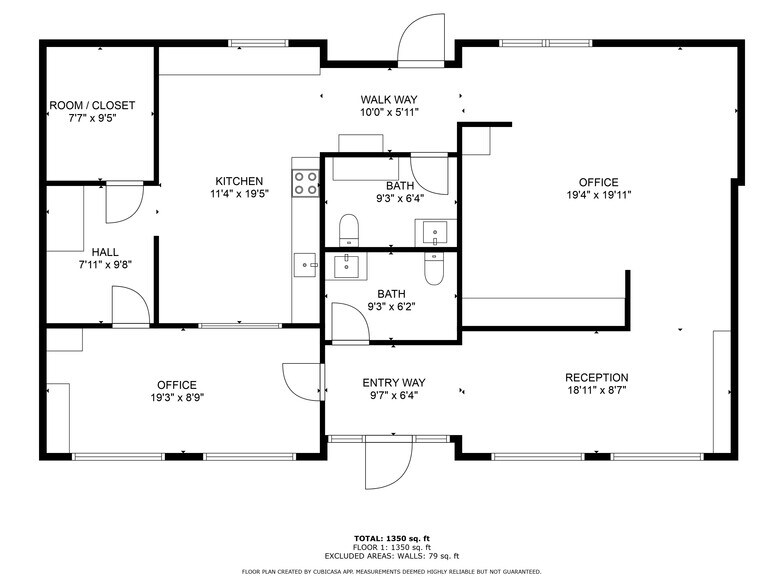
Freestanding commercial condo on Atascadero’s westside! Built in 2005, this detached unit offers over 1,400 sq. ft. with two ADA-compliant restrooms, a private office, reception area, storage, break room, and a large open space (see floor plan below). The property provides convenient access off Highway 41 West and is situated near other professional business offices, Atascadero Lake Park, and the Central Coast Zoo. Long-term gross lease just renewed for an additional three years with the following pay schedule: $2,275.56 per month 11/01/25 - 10/31/26 $2,389.34 per month 11/01/26 - 10/31/27 $2,508.80 per month 11/01/27 - 10/31/28 HOA Mark IV $300 monthly
INFORMATIONS SUR L’IMMEUBLE
| Surface totale de l’immeuble | 136 m² | Surface type par étage | 136 m² |
| Type de bien | Local commercial (Lot en copropriété) | Année de construction | 2005 |
| Sous-type de bien | Immeuble de commerce | Occupation | Mono |
| Classe d’immeuble | C | Surface du lot | 0,06 ha |
| Étages | 1 | ||
| Zonage | CR - Commercial | ||
| Surface totale de l’immeuble | 136 m² |
| Type de bien | Local commercial (Lot en copropriété) |
| Sous-type de bien | Immeuble de commerce |
| Classe d’immeuble | C |
| Étages | 1 |
| Surface type par étage | 136 m² |
| Année de construction | 2005 |
| Occupation | Mono |
| Surface du lot | 0,06 ha |
| Zonage | CR - Commercial |
1 LOT DISPONIBLE
Lot NA
| Surface du lot | 136 m² | Type de vente | Investissement |
| Prix | 468 584 € | Nb de places de stationnement | 4 |
| Prix par m² | 3 445,21 € | Référence cadastrale/ID de parcelle | 031-291-037 |
| Usage du lot en coprop. | Bureau |
| Surface du lot | 136 m² |
| Prix | 468 584 € |
| Prix par m² | 3 445,21 € |
| Usage du lot en coprop. | Bureau |
| Type de vente | Investissement |
| Nb de places de stationnement | 4 |
| Référence cadastrale/ID de parcelle | 031-291-037 |
DESCRIPTION
Freestanding commercial condo on Atascadero’s westside! Built in 2005, this detached unit offers over 1,400 sq. ft. with two ADA-compliant restrooms, a private office, reception area, storage, break room, and a large open space (see attached floor plan). The property provides convenient access off Highway 41 West and is situated near other professional business offices, Atascadero Lake Park, and the Central Coast Zoo.
NOTES SUR LA VENTE
Long-term gross lease just renewed for an additional three years with the following pay schedule:
$2,275.56 per month 11/01/25 - 10/31/26
$2,389.34 per month 11/01/26 - 10/31/27
$2,508.80 per month 11/01/27 - 10/31/28
PRINCIPAUX COMMERCES À PROXIMITÉ
Présenté par
8840 Morro Rd
Hum, une erreur s’est produite lors de l’envoi de votre message. Veuillez réessayer.
Merci ! Votre message a été envoyé.
