Connectez-vous/S’inscrire
Votre e-mail a été envoyé.
Certaines informations ont été traduites automatiquement.
Résumé analytique
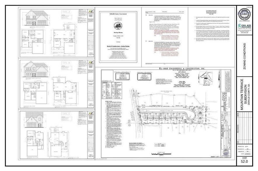
Imagine a secluded, wooded retreat where modern living meets the historic charm of Stone Mountain. This rare 2.71 acre development site in the transitioning Stone Mountain Terrace neighborhood offers a near-shovel-ready opportunity to create a premier gated community. With rezoning already secured from R75 to R60, the heavy lifting has been completed, paving the way for a refined nine home enclave that balances total privacy with neighborhood connectivity. The site is perfectly positioned for success, with high demand new construction in the immediate two mile radius consistently commanding prices between $450,000 and $500,000. Future residents will enjoy a lifestyle defined by both nature and accessibility, located just minutes from the boutique shops of Stone Mountain Village and the vast recreational trails of Stone Mountain Park. Everyday essentials are equally close, with a major retail hub featuring Publix, Walmart, and The Home Depot less than four miles away. Education is within easy reach as well, with the local elementary and middle schools situated just about a mile from the property. This offering is a meticulously prepared canvas, arriving with a comprehensive development package that includes a full survey, recorded sewer easements, and three distinct architectural home plans designed for contemporary tastes. All documentation is organized and ready for Land Disturbance Permit submission, ensuring a streamlined transition from vision to groundbreaking. In an area where buildable land is becoming a scarcity, this combined tract at 883 and 875 Mountain View Drive stands out as a strategic investment in a high growth pocket. Secure this site and lead the next wave of residential excellence in a community that perfectly blends tranquility with urban convenience.
Informations sur l’immeuble
| Prix | 319 262 € | Sous-type de bien | Résidentiel |
| Type de vente | Investissement ou propriétaire occupant | Usage proposé | Développement de lot unifamilial |
| Nb de lots | 1 | Surface totale du lot | 1,1 ha |
| Type de bien | Terrain | ||
| Zonage | R60 - Single-family detached residences | ||
| Prix | 319 262 € |
| Type de vente | Investissement ou propriétaire occupant |
| Nb de lots | 1 |
| Type de bien | Terrain |
| Sous-type de bien | Résidentiel |
| Usage proposé | Développement de lot unifamilial |
| Surface totale du lot | 1,1 ha |
| Zonage | R60 - Single-family detached residences |
1 Lot disponible
Lot
| Prix | 319 262 € | Surface du lot | 1,1 ha |
| Prix par ha | 291 111,92 € |
| Prix | 319 262 € |
| Prix par ha | 291 111,92 € |
| Surface du lot | 1,1 ha |
Imagine a secluded, wooded retreat where modern living meets the historic charm of Stone Mountain. This rare 2.71 acre development site in the transitioning Stone Mountain Terrace neighborhood offers a near-shovel-ready opportunity .
1 1
Fairly walkable
40/100
Exceptionally drivable
100/100
Limited public transit
30/100
Somewhat bikeable
30/100
Taxes foncières
| Numéro de parcelle | 18-091-03-006 | Évaluation des aménagements | 20 364 € |
| Évaluation du terrain | 68 512 € | Évaluation totale | 88 876 € |
Taxes foncières
Numéro de parcelle
18-091-03-006
Évaluation du terrain
68 512 €
Évaluation des aménagements
20 364 €
Évaluation totale
88 876 €
1 sur 12
Vidéos
Visite extérieure 3D Matterport
Visite 3D
Photos
Street view
Rue
Carte
1 sur 1
Présenté par
883 Mountain View Dr
Vous êtes déjà membre ? Connectez-vous
Hum, une erreur s’est produite lors de l’envoi de votre message. Veuillez réessayer.
Merci ! Votre message a été envoyé.



