Votre e-mail a été envoyé.
Certaines informations ont été traduites automatiquement.
Informations principales
- Rare large-format distribution space in the Lake City Industrial Area
- Freestanding building with over 90,000 SF of warehouse area
- Located in Burnaby’s Lake City Business Park with direct highway access
- Heavy industrial zoning providing flexibility for a variety of business needs
- Exceptional access to port network and major thoroughfares across Metro Vancouver
- Walking distance to SkyTrain and minutes from major ports and airport
Caractéristiques
Tous les espace disponibles(1)
Afficher les loyers en
- Espace
- Surface
- Durée
- Loyer
- Type de bien
- État
- Disponible
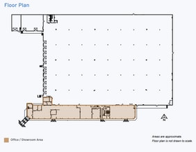
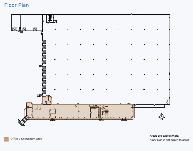
This property offers a rare opportunity to lease a multitenant industrial facility situated on approximately 4.50 acres within Burnaby’s sought-after Lake City Business Park. The fully fenced and secured site provides enhanced safety and functionality, complemented by a multi-dock loading configuration ideal for efficient operations. Strategically located with excellent regional connectivity, the property is zoned for versatile industrial uses and supports a wide range of activities, including outdoor storage, the sale and storage of machinery and heavy equipment, manufacturing, processing, parking, and loading.
- Le loyer ne comprend pas les services publics, les frais immobiliers ou les services de l’immeuble.
- 13 quais de chargement
- 1 accès plain-pied
| Espace | Surface | Durée | Loyer | Type de bien | État | Disponible |
| 1er étage | 9 338 m² | Négociable | 170,45 € /m²/an 14,20 € /m²/mois 1 591 649 € /an 132 637 € /mois | Local d’activités | Espace brut | 01/06/2026 |
1er étage
| Surface |
| 9 338 m² |
| Durée |
| Négociable |
| Loyer |
| 170,45 € /m²/an 14,20 € /m²/mois 1 591 649 € /an 132 637 € /mois |
| Type de bien |
| Local d’activités |
| État |
| Espace brut |
| Disponible |
| 01/06/2026 |
1er étage
| Surface | 9 338 m² |
| Durée | Négociable |
| Loyer | 170,45 € /m²/an |
| Type de bien | Local d’activités |
| État | Espace brut |
| Disponible | 01/06/2026 |
This property offers a rare opportunity to lease a multitenant industrial facility situated on approximately 4.50 acres within Burnaby’s sought-after Lake City Business Park. The fully fenced and secured site provides enhanced safety and functionality, complemented by a multi-dock loading configuration ideal for efficient operations. Strategically located with excellent regional connectivity, the property is zoned for versatile industrial uses and supports a wide range of activities, including outdoor storage, the sale and storage of machinery and heavy equipment, manufacturing, processing, parking, and loading.
- Le loyer ne comprend pas les services publics, les frais immobiliers ou les services de l’immeuble.
- 1 accès plain-pied
- 13 quais de chargement
Aperçu du bien
Located at the corner of Eastlake Drive and Gaglardi Way, the property sits within Burnaby’s Lake City Business Park - one of Metro Vancouver’s most established industrial hubs for import and export distribution. This prime location provides excellent regional connectivity with direct access to Lougheed Highway (Highway 7), the Trans-Canada Highway (Highway 1), and Highway 7A, ensuring efficient transportation throughout Metro Vancouver. The area also offers convenient access to public amenities and transit, with the Production Way– University SkyTrain Station just a 10-minute walk away
Faits sur l’installation entrepôt
Occupants
- Étage
- Nom de l’occupant
- Secteur d’activité
- 2e
- CAMS Software
- Services professionnels, scientifiques et techniques
Présenté par
8651 Eastlake Dr
Hum, une erreur s’est produite lors de l’envoi de votre message. Veuillez réessayer.
Merci ! Votre message a été envoyé.





