Votre e-mail a été envoyé.
86 N Bend St Industriel/Logistique | 682 m² | À louer | Coquitlam, BC V3K 6H1



Certaines informations ont été traduites automatiquement.
Informations principales sur la sous-location
- Convenient access to Trans-Canada Highway (Highway 1) for regional connectivity.
- Combination of warehouse and office space, including mezzanine offices.
- Located in a prominent industrial hub near United Boulevard and Lougheed Highway.
- Durable concrete tilt-up construction with 22-foot clear ceiling height.
- Equipped with both dock and grade loading for versatile operations.
Caractéristiques
Tous les espace disponibles(1)
Afficher les loyers en
- Espace
- Surface
- Durée
- Loyer
- Type de bien
- Aménagement
- Disponible
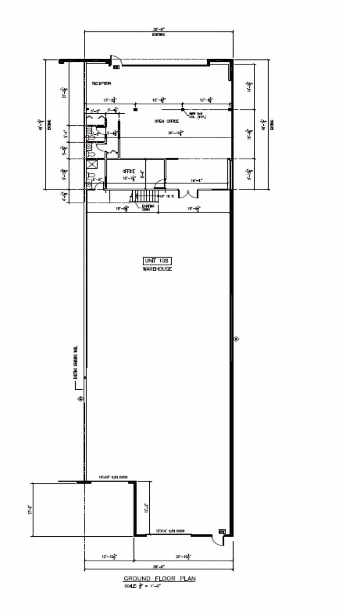
GROSS LEASABLE AREA: 7,340 SF (Warehouse area: 4,300 SF) (Office area: 1,520 SF) (Mezzanine area: 1,520 SF) This light industrial sublease opportunity is located in Coquitlam’s Mayfair/Pacific Reach area, offering exceptional connectivity and operational efficiency. Positioned just north of Shuswap Avenue and west of United Boulevard, the property provides seamless access to the Trans-Canada Highway (Highway 1), ensuring efficient regional distribution and convenient commuting for employees. Constructed with durable concrete tilt-up, the building features 22-foot clear ceilings, dock and grade loading, and a functional layout that supports a wide range of industrial and office uses. The ground floor combines warehouse and office space, while the mezzanine level offers additional office capacity, creating a balanced environment for administrative and operational needs.
- Espace en sous-location disponible auprès de l’occupant actuel
- Comprend 141 m² d’espace de bureau dédié
- Durable concrete tilt-up construction
- Combination of warehouse and office space
- Dock and grade loading for versatile operations
- Le loyer ne comprend pas les services publics, les frais immobiliers ou les services de l’immeuble.
- Entreposage sécurisé
- 22-foot clear ceiling height
- Includes mezzanine offices
| Espace | Surface | Durée | Loyer | Type de bien | Aménagement | Disponible |
| 1er étage – 108 | 682 m² | Juil. 2027 | 145,68 € /m²/an 12,14 € /m²/mois 99 342 € /an 8 279 € /mois | Industriel/Logistique | Espace brut | Maintenant |
1er étage – 108
| Surface |
| 682 m² |
| Durée |
| Juil. 2027 |
| Loyer |
| 145,68 € /m²/an 12,14 € /m²/mois 99 342 € /an 8 279 € /mois |
| Type de bien |
| Industriel/Logistique |
| Aménagement |
| Espace brut |
| Disponible |
| Maintenant |
1er étage – 108
| Surface | 682 m² |
| Durée | Juil. 2027 |
| Loyer | 145,68 € /m²/an |
| Type de bien | Industriel/Logistique |
| Aménagement | Espace brut |
| Disponible | Maintenant |
GROSS LEASABLE AREA: 7,340 SF (Warehouse area: 4,300 SF) (Office area: 1,520 SF) (Mezzanine area: 1,520 SF) This light industrial sublease opportunity is located in Coquitlam’s Mayfair/Pacific Reach area, offering exceptional connectivity and operational efficiency. Positioned just north of Shuswap Avenue and west of United Boulevard, the property provides seamless access to the Trans-Canada Highway (Highway 1), ensuring efficient regional distribution and convenient commuting for employees. Constructed with durable concrete tilt-up, the building features 22-foot clear ceilings, dock and grade loading, and a functional layout that supports a wide range of industrial and office uses. The ground floor combines warehouse and office space, while the mezzanine level offers additional office capacity, creating a balanced environment for administrative and operational needs.
- Espace en sous-location disponible auprès de l’occupant actuel
- Le loyer ne comprend pas les services publics, les frais immobiliers ou les services de l’immeuble.
- Comprend 141 m² d’espace de bureau dédié
- Entreposage sécurisé
- Durable concrete tilt-up construction
- 22-foot clear ceiling height
- Combination of warehouse and office space
- Includes mezzanine offices
- Dock and grade loading for versatile operations
Aperçu du bien
The property is a light industrial unit located in Coquitlam’s Mayfair/Pacific Reach area, north of Shuswap Avenue and west of United Boulevard. It offers access to the Trans-Canada Highway and is constructed with concrete tilt-up walls. The building includes dock and grade loading and has a clear ceiling height of approximately 22 feet. The total area is about 7,340 square feet, with a mix of ground floor warehouse/office space and mezzanine office space. The property was built in 1986 and is zoned M-1 for industrial use.
Faits sur l’installation entrepôt
Occupants
- Étage
- Nom de l’occupant
- Secteur d’activité
- 1er
- AquaGuard
- -
- 1er
- Black Gold Industries Ltd
- -
- 1er
- Budget T-Shirt
- Grossiste
- 1er
- Equity Exploration Consultants Ltd
- Services professionnels, scientifiques et techniques
- 1er
- James D Custom Floors Ltd
- Construction
Présenté par
86 N Bend St
Hum, une erreur s’est produite lors de l’envoi de votre message. Veuillez réessayer.
Merci ! Votre message a été envoyé.



