Votre e-mail a été envoyé.
Certaines informations ont été traduites automatiquement.
INFORMATIONS PRINCIPALES
- Large open floor plan
- Prominent Tyvola Road frontage
- Suits a variety of business uses
TOUS LES ESPACE DISPONIBLES(1)
Afficher les loyers en
- ESPACE
- SURFACE
- DURÉE
- LOYER
- TYPE DE BIEN
- ÉTAT
- DISPONIBLE
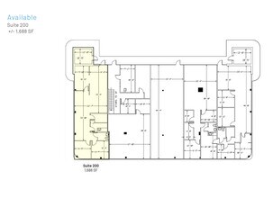
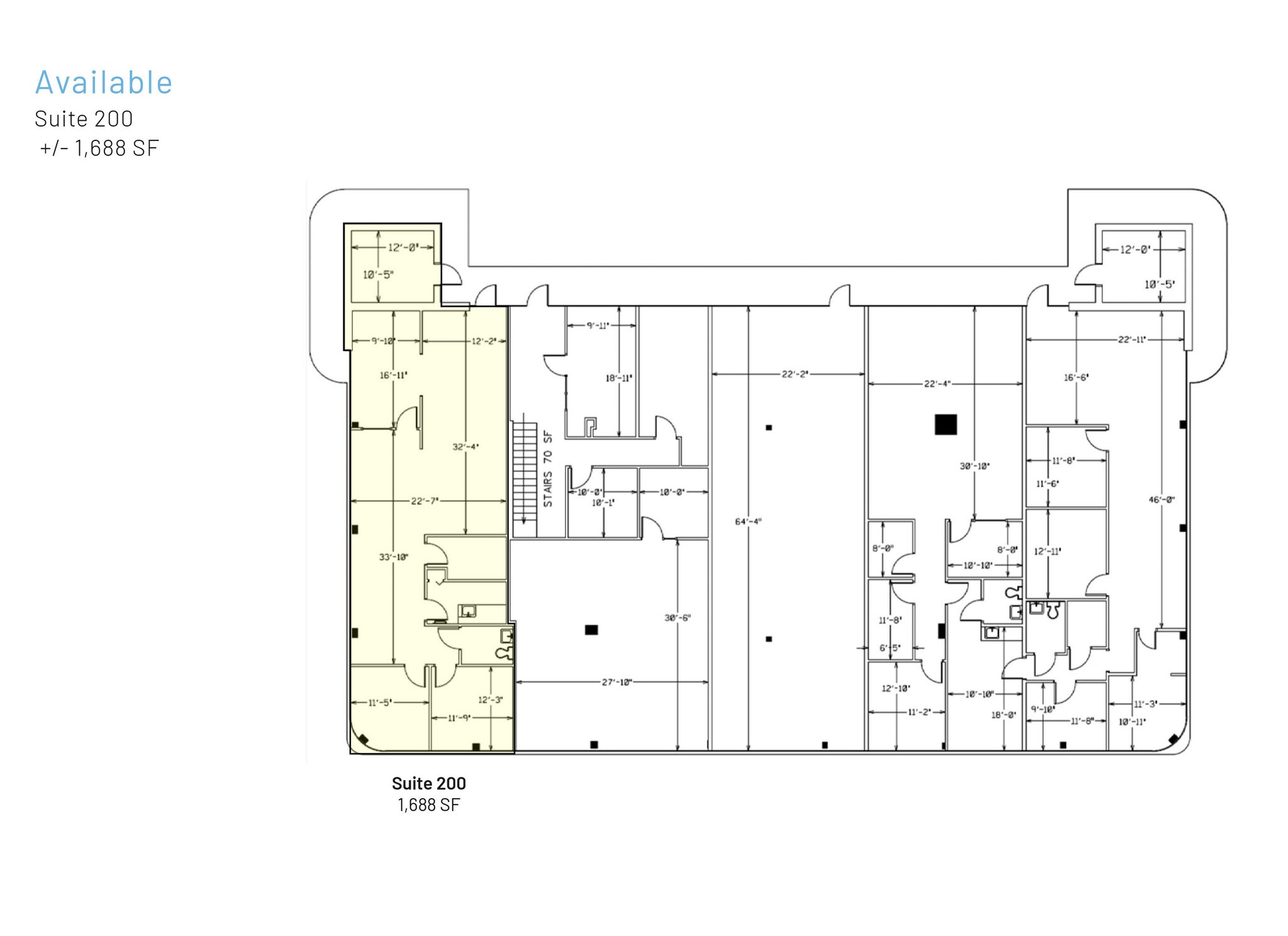
Suite 200 offers +/- 1,688 SF on the second floor, featuring a large open floor plan, two private offices, floor-to-ceiling windows, a kitchenette, and a private restroom.
- Entièrement aménagé comme Bureau standard
- 2 bureaux privés
- Cuisine
- Lumière naturelle
- Ample Parking Available
- Principalement open space
- Climatisation centrale
- Toilettes privées
- Strategic Location
| Espace | Surface | Durée | Loyer | Type de bien | État | Disponible |
| 2e étage, bureau 200 | 157 m² | Négociable | Sur demande Sur demande Sur demande Sur demande | Bureau | Construction achevée | Maintenant |
2e étage, bureau 200
| Surface |
| 157 m² |
| Durée |
| Négociable |
| Loyer |
| Sur demande Sur demande Sur demande Sur demande |
| Type de bien |
| Bureau |
| État |
| Construction achevée |
| Disponible |
| Maintenant |
2e étage, bureau 200
| Surface | 157 m² |
| Durée | Négociable |
| Loyer | Sur demande |
| Type de bien | Bureau |
| État | Construction achevée |
| Disponible | Maintenant |
Suite 200 offers +/- 1,688 SF on the second floor, featuring a large open floor plan, two private offices, floor-to-ceiling windows, a kitchenette, and a private restroom.
- Entièrement aménagé comme Bureau standard
- Principalement open space
- 2 bureaux privés
- Climatisation centrale
- Cuisine
- Toilettes privées
- Lumière naturelle
- Strategic Location
- Ample Parking Available
APERÇU DU BIEN
Suite 200 offers +/- 1,688 SF on the second floor, featuring a large open floor plan, two private offices, floor-to-ceiling windows, a kitchenette, and a private restroom. The bright, open layout suits a variety of business uses. The property provides prominent Tyvola Road frontage, easy access to I-77, South Boulevard, and Charlotte Douglas International Airport, as well as convenient parking and nearby light rail and bus routes. With excellent visibility and strong connectivity to major business corridors, this location is ideal for companies seeking a well-connected and high-exposure setting in a growing submarket.
- Banque
- Ligne d’autobus
- Supérette
- Garderie
- Pressing
- Centre de fitness
- Restaurant
- Signalisation
INFORMATIONS SUR L’IMMEUBLE
OCCUPANTS
- ÉTAGE
- NOM DE L’OCCUPANT
- SECTEUR D’ACTIVITÉ
- 2e
- Body Heal Therapy
- Services
- 1er
- Colmer CPA, PLLC
- -
- 1er
- Elwood Staffing
- Services administratifs et de soutien
- 2e
- North Carolina School Of Advanced Body Work
- Services éducatifs
- 1er
- Southeast Investments
- -
- 1er
- State Farm
- Finance et assurances
Présenté par
820 Tyvola Rd
Hum, une erreur s’est produite lors de l’envoi de votre message. Veuillez réessayer.
Merci ! Votre message a été envoyé.







