Connectez-vous/S’inscrire
Votre e-mail a été envoyé.
The Flats on Main - At the Rose District 816 N Main St Immeuble residentiel 6 lots 1 439 829 € (239 972 €/Lot) Taux de capitalisation 7,22 % Broken Arrow, OK 74012



Certaines informations ont été traduites automatiquement.
INFORMATIONS PRINCIPALES SUR L'INVESTISSEMENT
- Walkable to the Rose District
- Ease of Access to the Turnpike
- Dedicated parking in rear
RÉSUMÉ ANALYTIQUE
The Flats on Main – Investment Offering
Rose District – Downtown Broken Arrow, OK
Welcome to The Flats on Main, a newly constructed 6-unit multifamily asset located directly on Main Street in the heart of Broken Arrow’s Rose District. This project delivers the rare combination of Class-A construction, walkable downtown living, and strong investment fundamentals in one of Oklahoma’s most desirable submarkets.
Positioned in the center of the Rose District’s dining, retail, and entertainment corridor, The Flats on Main sits at the front line of ongoing development momentum. Residents are steps away from award-winning restaurants, boutique shops, festivals, and cultural events that draw regional traffic year-round. This walkability and demand translates directly into premium rent positioning, low vacancy, and long-term stability.
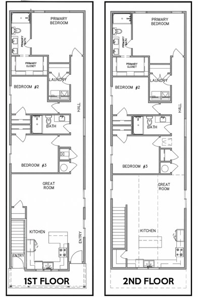
Built in 2025, the property consists of three stacked duplex buildings, each offering two 1,334 sq ft modern residences with high-quality finishes, efficient layouts, and contemporary curb appeal. These are high-demand units in a neighborhood where new inventory is limited, and absorption is rapid.
This project is a true turnkey investment: no deferred maintenance, no cap-ex, no guesswork. Investors gain immediate exposure to an A-location, A-product asset in a market with strong NOI pro forma.
Please reach out to the broker for a showing, more information, or any questions:
Levi Green
Broker / Piper Management
Email: Levi@piperok.com
Phone: 918-519-3949
Rose District – Downtown Broken Arrow, OK
Welcome to The Flats on Main, a newly constructed 6-unit multifamily asset located directly on Main Street in the heart of Broken Arrow’s Rose District. This project delivers the rare combination of Class-A construction, walkable downtown living, and strong investment fundamentals in one of Oklahoma’s most desirable submarkets.
Positioned in the center of the Rose District’s dining, retail, and entertainment corridor, The Flats on Main sits at the front line of ongoing development momentum. Residents are steps away from award-winning restaurants, boutique shops, festivals, and cultural events that draw regional traffic year-round. This walkability and demand translates directly into premium rent positioning, low vacancy, and long-term stability.
Built in 2025, the property consists of three stacked duplex buildings, each offering two 1,334 sq ft modern residences with high-quality finishes, efficient layouts, and contemporary curb appeal. These are high-demand units in a neighborhood where new inventory is limited, and absorption is rapid.
This project is a true turnkey investment: no deferred maintenance, no cap-ex, no guesswork. Investors gain immediate exposure to an A-location, A-product asset in a market with strong NOI pro forma.
Please reach out to the broker for a showing, more information, or any questions:
Levi Green
Broker / Piper Management
Email: Levi@piperok.com
Phone: 918-519-3949
BILAN FINANCIER (PRO FORMA - 2025) Cliquez ici pour accéder à |
ANNUEL | ANNUEL PAR m² |
|---|---|---|
| Revenu de location brut |
$99,999
|
$9.99
|
| Autres revenus |
-
|
-
|
| Perte due à la vacance |
-
|
-
|
| Revenu brut effectif |
$99,999
|
$9.99
|
| Taxes |
$99,999
|
$9.99
|
| Frais d’exploitation |
$99,999
|
$9.99
|
| Total des frais |
$99,999
|
$9.99
|
| Résultat net d’exploitation |
$99,999
|
$9.99
|
BILAN FINANCIER (PRO FORMA - 2025) Cliquez ici pour accéder à
| Revenu de location brut | |
|---|---|
| Annuel | $99,999 |
| Annuel par m² | $9.99 |
| Autres revenus | |
|---|---|
| Annuel | - |
| Annuel par m² | - |
| Perte due à la vacance | |
|---|---|
| Annuel | - |
| Annuel par m² | - |
| Revenu brut effectif | |
|---|---|
| Annuel | $99,999 |
| Annuel par m² | $9.99 |
| Taxes | |
|---|---|
| Annuel | $99,999 |
| Annuel par m² | $9.99 |
| Frais d’exploitation | |
|---|---|
| Annuel | $99,999 |
| Annuel par m² | $9.99 |
| Total des frais | |
|---|---|
| Annuel | $99,999 |
| Annuel par m² | $9.99 |
| Résultat net d’exploitation | |
|---|---|
| Annuel | $99,999 |
| Annuel par m² | $9.99 |
INFORMATIONS SUR L’IMMEUBLE
| Prix | 1 439 829 € | Classe d’immeuble | B |
| Prix par lot | 239 972 € | Surface du lot | 0,16 ha |
| Type de vente | Investissement | Surface de l’immeuble | 744 m² |
| Taux de capitalisation | 7,22 % | Occupation moyenne | 0% |
| Nb de lots | 6 | Nb d’étages | 2 |
| Type de bien | Immeuble residentiel | Année de construction | 2025 |
| Sous-type de bien | Appartement | Ratio de stationnement | 0,16/1 000 m² |
| Style d’appartement | De faible hauteur | Zone de développement économique [USA] |
Oui
|
| Zonage | R2 - In Tulsa County, R-2 (Residential-2) zoning generally allows for low-to-medium density housing, primarily permitting single-family homes and duplexes. | ||
| Prix | 1 439 829 € |
| Prix par lot | 239 972 € |
| Type de vente | Investissement |
| Taux de capitalisation | 7,22 % |
| Nb de lots | 6 |
| Type de bien | Immeuble residentiel |
| Sous-type de bien | Appartement |
| Style d’appartement | De faible hauteur |
| Classe d’immeuble | B |
| Surface du lot | 0,16 ha |
| Surface de l’immeuble | 744 m² |
| Occupation moyenne | 0% |
| Nb d’étages | 2 |
| Année de construction | 2025 |
| Ratio de stationnement | 0,16/1 000 m² |
| Zone de développement économique [USA] |
Oui |
| Zonage | R2 - In Tulsa County, R-2 (Residential-2) zoning generally allows for low-to-medium density housing, primarily permitting single-family homes and duplexes. |
CARACTÉRISTIQUES
- Détecteur de fumée
CARACTÉRISTIQUES DU LOT
- Climatisation
- Prêt pour le câble
- Micro-ondes
- Espace d’entreposage
- Machine à laver/sèche-linge
- Raccord machine à laver/sèche-linge
- Chauffage
- Ventilateurs de plafond
- Sols carrelés
- Cuisine
- Planchers en bois
- Plafond voûté
- Réfrigérateur
- TV satellite
- Four
- Cuisinière
- Dressing
- Moquette
- Wi-Fi
- Salle de séjour
- Armoire à linge
- Porche
- Sans tabac
CARACTÉRISTIQUES DU SITE
- Terrain clôturé
- Salle de bain privée
LOT INFORMATIONS SUR LA COMBINAISON
| DESCRIPTION | NB DE LOTS | MOY. LOYER/MOIS | m² |
|---|---|---|---|
| 3+2 | 6 | 1 704 € | 124 |
1 1
TAXES FONCIÈRES
| Numéro de parcelle | 78590-84-11-07690 | Évaluation totale | 14 058 € |
| Évaluation du terrain | 14 058 € | Impôts annuels | -1 € (0,00 €/m²) |
| Évaluation des aménagements | 0 € | Année d’imposition | 2025 Payable 2025 |
TAXES FONCIÈRES
Numéro de parcelle
78590-84-11-07690
Évaluation du terrain
14 058 €
Évaluation des aménagements
0 €
Évaluation totale
14 058 €
Impôts annuels
-1 € (0,00 €/m²)
Année d’imposition
2025 Payable 2025
1 sur 37
VIDÉOS
VISITE EXTÉRIEURE 3D MATTERPORT
VISITE 3D
PHOTOS
STREET VIEW
RUE
CARTE
1 sur 1
Présenté par
The Flats on Main - At the Rose District | 816 N Main St
Vous êtes déjà membre ? Connectez-vous
Hum, une erreur s’est produite lors de l’envoi de votre message. Veuillez réessayer.
Merci ! Votre message a été envoyé.
