Votre e-mail a été envoyé.
Certaines informations ont été traduites automatiquement.
Informations principales sur la sous-location
- Baies typiques de 40 pi x 40 pi
- Durée flexible : 1 à 7 ans
- Hauteur libre de +/- 24 pi
Caractéristiques
Tous les espace disponibles(1)
Afficher les loyers en
- Espace
- Surface
- Durée
- Loyer
- Type de bien
- Aménagement
- Disponible
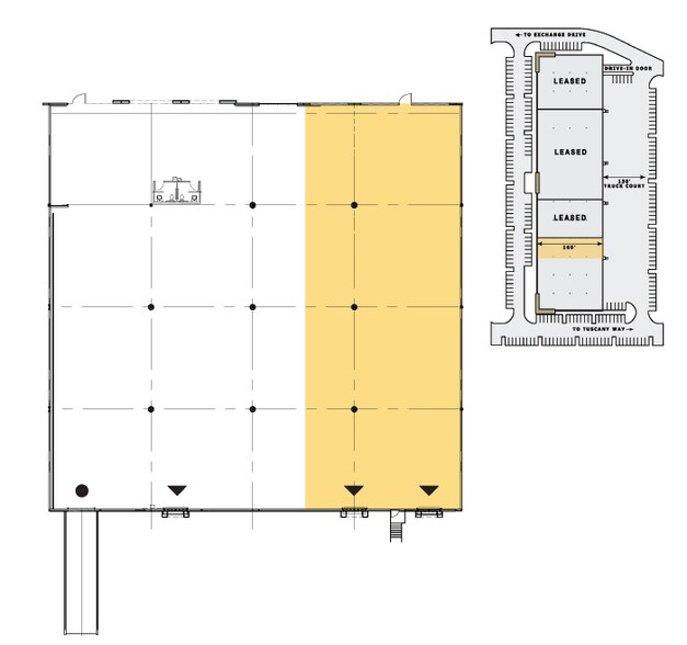
Spacious 40’ x 40’ bays with 24’ clear height, dock-high loading, and ESFR compatibility. Flexible lease terms from 1-7 years with 2:1,000 parking ratio. Strategically located adjacent to Walnut Creek Business Park, near Applied Materials, Samsung, and Dell, with easy access to US 290, 183, Texas 130, and I-35. Conveniently close to Post Office and UPS hubs. Ideal for logistics, distribution, or light industrial use.
- Espace en sous-location disponible auprès de l’occupant actuel
- 2 quais de chargement
- Espace en excellent état
- Entrepôt 100 % CVC
| Espace | Surface | Durée | Loyer | Type de bien | Aménagement | Disponible |
| 1er étage – 100 | 892 m² | Négociable | Sur demande Sur demande Sur demande Sur demande | Industriel/Logistique | Construction achevée | Maintenant |
1er étage – 100
| Surface |
| 892 m² |
| Durée |
| Négociable |
| Loyer |
| Sur demande Sur demande Sur demande Sur demande |
| Type de bien |
| Industriel/Logistique |
| Aménagement |
| Construction achevée |
| Disponible |
| Maintenant |
1er étage – 100
| Surface | 892 m² |
| Durée | Négociable |
| Loyer | Sur demande |
| Type de bien | Industriel/Logistique |
| Aménagement | Construction achevée |
| Disponible | Maintenant |
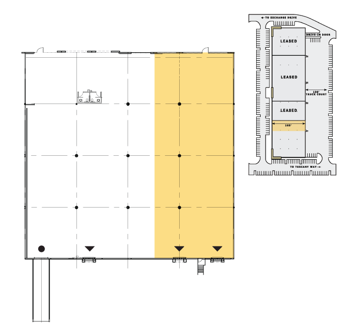
Spacious 40’ x 40’ bays with 24’ clear height, dock-high loading, and ESFR compatibility. Flexible lease terms from 1-7 years with 2:1,000 parking ratio. Strategically located adjacent to Walnut Creek Business Park, near Applied Materials, Samsung, and Dell, with easy access to US 290, 183, Texas 130, and I-35. Conveniently close to Post Office and UPS hubs. Ideal for logistics, distribution, or light industrial use.
- Espace en sous-location disponible auprès de l’occupant actuel
- Espace en excellent état
- 2 quais de chargement
- Entrepôt 100 % CVC
Aperçu du bien
Des baies spacieuses de 40 pieds x 40 pieds avec une hauteur libre de 24 pieds, un chargement à hauteur de quai et une compatibilité ESFR. Durée de location flexible de 1 à 7 ans avec un ratio de stationnement de 2:1 000. Stratégiquement situé à côté du parc d'affaires de Walnut Creek, à proximité d'Applied Materials, de Samsung et de Dell, avec un accès facile aux autoroutes 290, 183, Texas 130 et I-35. Idéalement situé à proximité du bureau de poste et des hubs UPS. Idéal pour la logistique, la distribution ou l'industrie légère.
Faits sur l’installation entrepôt
Occupants
- Étage
- Nom de l’occupant
- Secteur d’activité
- 1er
- aramark
- Hébergement et restauration
- 1er
- Legendairy Milk
- Manufacture
- 1er
- Travis Tile Sales, Inc.
- Enseigne
Présenté par
Tuscany 8 | 8024 Exchange Dr
Hum, une erreur s’est produite lors de l’envoi de votre message. Veuillez réessayer.
Merci ! Votre message a été envoyé.





