Votre e-mail a été envoyé.
Certaines informations ont été traduites automatiquement.
Informations principales
- 30 Parking Spaces
- Public water, sewer, and gas
Caractéristiques
Tous les espaces disponibles(2)
Afficher les loyers en
- Espace
- Surface
- Durée
- Loyer
- Type de bien
- Aménagement
- Disponible
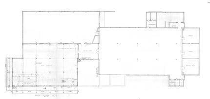
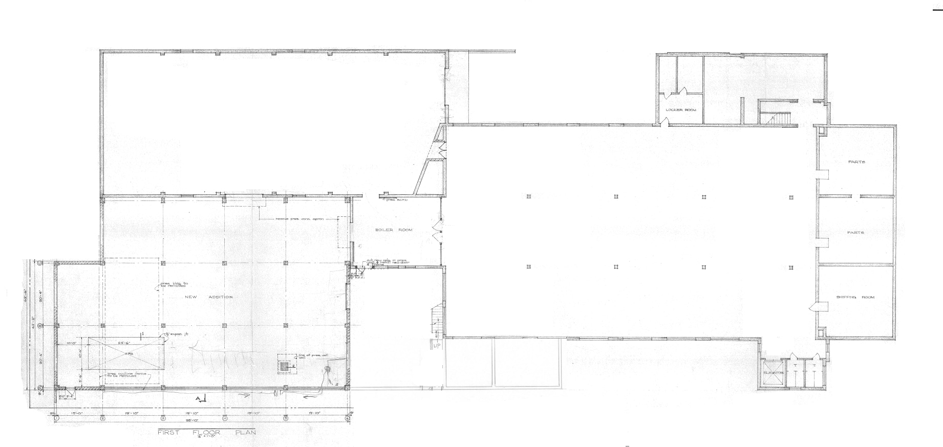
Position your operations in the heart of Allentown’s thriving industrial corridor with this versatile two-story facility at 801 W Greenleaf Street. Offering 36,260 SF of functional space, this property is designed to accommodate a wide range of production, storage, and distribution needs. The ground floor features multiple production rooms, maintenance shops, storage areas, and a dedicated office and break room, complemented by one dock door and one drive-in door for efficient loading and unloading. Ceiling heights range from 11’ to 15.5’, ensuring flexibility for equipment and racking systems. The second floor provides additional warehouse space with a 10’ clear ceiling height and a conditioned office area accessible from the street, ideal for administrative functions. A 3,500 lb. freight elevator enhances vertical movement, while robust infrastructure—including 920-amp, 3-phase electric service and a wet sprinkler system—supports heavy-duty operations. Public water, sewer, and gas utilities are in place, and the property includes a lighted parking lot for staff and visitors. Strategically located just one mile from Route 22 and minutes from I-78, I-476, and Route 309, this site offers exceptional connectivity to major highways and the Lehigh Valley International Airport. Businesses benefit from proximity to Philadelphia (60 minutes) and New York City (90 minutes), placing you within a one-day drive of one-third of the U.S. population. This prime location in the Lehigh Valley—a dynamic hub for manufacturing and logistics—positions your company for growth and efficiency.
- Le loyer ne comprend pas les services publics, les frais immobiliers ou les services de l’immeuble.
- Peut être associé à un ou plusieurs espaces supplémentaires pour obtenir jusqu’à 3 369 m² d’espace adjacent.
- freight elevator
- available now
- Comprend 113 m² d’espace de bureau dédié
- Warehouse, offices
- dock & drive-in doors
Position your operations in the heart of Allentown’s thriving industrial corridor with this versatile two-story facility at 801 W Greenleaf Street. Offering 36,260 SF of functional space, this property is designed to accommodate a wide range of production, storage, and distribution needs. The ground floor features multiple production rooms, maintenance shops, storage areas, and a dedicated office and break room, complemented by one dock door and one drive-in door for efficient loading and unloading. Ceiling heights range from 11’ to 15.5’, ensuring flexibility for equipment and racking systems. The second floor provides additional warehouse space with a 10’ clear ceiling height and a conditioned office area accessible from the street, ideal for administrative functions. A 3,500 lb. freight elevator enhances vertical movement, while robust infrastructure—including 920-amp, 3-phase electric service and a wet sprinkler system—supports heavy-duty operations. Public water, sewer, and gas utilities are in place, and the property includes a lighted parking lot for staff and visitors. Strategically located just one mile from Route 22 and minutes from I-78, I-476, and Route 309, this site offers exceptional connectivity to major highways and the Lehigh Valley International Airport. Businesses benefit from proximity to Philadelphia (60 minutes) and New York City (90 minutes), placing you within a one-day drive of one-third of the U.S. population. This prime location in the Lehigh Valley—a dynamic hub for manufacturing and logistics—positions your company for growth and efficiency.
- Le loyer ne comprend pas les services publics, les frais immobiliers ou les services de l’immeuble.
- Peut être associé à un ou plusieurs espaces supplémentaires pour obtenir jusqu’à 3 369 m² d’espace adjacent.
- freight elevator
- available now
- Comprend 113 m² d’espace de bureau dédié
- Warehouse, offices
- dock & drive-in doors
| Espace | Surface | Durée | Loyer | Type de bien | Aménagement | Disponible |
| 1er étage | 2 349 m² | Négociable | 55,08 € /m²/an 4,59 € /m²/mois 129 368 € /an 10 781 € /mois | Industriel/Logistique | Construction achevée | Maintenant |
| 2e étage | 1 020 m² | Négociable | 55,08 € /m²/an 4,59 € /m²/mois 56 189 € /an 4 682 € /mois | Industriel/Logistique | Construction achevée | Maintenant |
1er étage
| Surface |
| 2 349 m² |
| Durée |
| Négociable |
| Loyer |
| 55,08 € /m²/an 4,59 € /m²/mois 129 368 € /an 10 781 € /mois |
| Type de bien |
| Industriel/Logistique |
| Aménagement |
| Construction achevée |
| Disponible |
| Maintenant |
2e étage
| Surface |
| 1 020 m² |
| Durée |
| Négociable |
| Loyer |
| 55,08 € /m²/an 4,59 € /m²/mois 56 189 € /an 4 682 € /mois |
| Type de bien |
| Industriel/Logistique |
| Aménagement |
| Construction achevée |
| Disponible |
| Maintenant |
1er étage
| Surface | 2 349 m² |
| Durée | Négociable |
| Loyer | 55,08 € /m²/an |
| Type de bien | Industriel/Logistique |
| Aménagement | Construction achevée |
| Disponible | Maintenant |
Position your operations in the heart of Allentown’s thriving industrial corridor with this versatile two-story facility at 801 W Greenleaf Street. Offering 36,260 SF of functional space, this property is designed to accommodate a wide range of production, storage, and distribution needs. The ground floor features multiple production rooms, maintenance shops, storage areas, and a dedicated office and break room, complemented by one dock door and one drive-in door for efficient loading and unloading. Ceiling heights range from 11’ to 15.5’, ensuring flexibility for equipment and racking systems. The second floor provides additional warehouse space with a 10’ clear ceiling height and a conditioned office area accessible from the street, ideal for administrative functions. A 3,500 lb. freight elevator enhances vertical movement, while robust infrastructure—including 920-amp, 3-phase electric service and a wet sprinkler system—supports heavy-duty operations. Public water, sewer, and gas utilities are in place, and the property includes a lighted parking lot for staff and visitors. Strategically located just one mile from Route 22 and minutes from I-78, I-476, and Route 309, this site offers exceptional connectivity to major highways and the Lehigh Valley International Airport. Businesses benefit from proximity to Philadelphia (60 minutes) and New York City (90 minutes), placing you within a one-day drive of one-third of the U.S. population. This prime location in the Lehigh Valley—a dynamic hub for manufacturing and logistics—positions your company for growth and efficiency.
- Le loyer ne comprend pas les services publics, les frais immobiliers ou les services de l’immeuble.
- Comprend 113 m² d’espace de bureau dédié
- Peut être associé à un ou plusieurs espaces supplémentaires pour obtenir jusqu’à 3 369 m² d’espace adjacent.
- Warehouse, offices
- freight elevator
- dock & drive-in doors
- available now
2e étage
| Surface | 1 020 m² |
| Durée | Négociable |
| Loyer | 55,08 € /m²/an |
| Type de bien | Industriel/Logistique |
| Aménagement | Construction achevée |
| Disponible | Maintenant |
Position your operations in the heart of Allentown’s thriving industrial corridor with this versatile two-story facility at 801 W Greenleaf Street. Offering 36,260 SF of functional space, this property is designed to accommodate a wide range of production, storage, and distribution needs. The ground floor features multiple production rooms, maintenance shops, storage areas, and a dedicated office and break room, complemented by one dock door and one drive-in door for efficient loading and unloading. Ceiling heights range from 11’ to 15.5’, ensuring flexibility for equipment and racking systems. The second floor provides additional warehouse space with a 10’ clear ceiling height and a conditioned office area accessible from the street, ideal for administrative functions. A 3,500 lb. freight elevator enhances vertical movement, while robust infrastructure—including 920-amp, 3-phase electric service and a wet sprinkler system—supports heavy-duty operations. Public water, sewer, and gas utilities are in place, and the property includes a lighted parking lot for staff and visitors. Strategically located just one mile from Route 22 and minutes from I-78, I-476, and Route 309, this site offers exceptional connectivity to major highways and the Lehigh Valley International Airport. Businesses benefit from proximity to Philadelphia (60 minutes) and New York City (90 minutes), placing you within a one-day drive of one-third of the U.S. population. This prime location in the Lehigh Valley—a dynamic hub for manufacturing and logistics—positions your company for growth and efficiency.
- Le loyer ne comprend pas les services publics, les frais immobiliers ou les services de l’immeuble.
- Comprend 113 m² d’espace de bureau dédié
- Peut être associé à un ou plusieurs espaces supplémentaires pour obtenir jusqu’à 3 369 m² d’espace adjacent.
- Warehouse, offices
- freight elevator
- dock & drive-in doors
- available now
Aperçu du bien
• Two-story standalone 36,260 SF industrial for lease • Ground floor warehouse area features various production rooms, maintenance shops, storage, office area, and break room. One dock door, one drive-in door, and ceiling heights range from 11’-15.5’. • Second floor features warehouse space with 10’ clear ceiling height, plus conditioned office area of 1,219 SF, which is accessible from the street • Lighted Parking Lot included with lease • Freight Elevator rated at 3,500 lbs. • 920 amp, 3-phase electric, 240 volts • Wet sprinkler system • Public water, sewer, and gas
Faits sur l’installation entrepôt
Occupants
- Étage
- Nom de l’occupant
- Secteur d’activité
- 1er
- Allentown Economic Development Corp
- -
- Multi
- Spartan Brands
- Manufacture
Présenté par
801 W Greenleaf St
Hum, une erreur s’est produite lors de l’envoi de votre message. Veuillez réessayer.
Merci ! Votre message a été envoyé.




