Votre e-mail a été envoyé.
800 N 1st St Bureau | 282 m² | À louer | San Jose, CA 95112



Certaines informations ont été traduites automatiquement.
Informations principales
- À l'angle de N 1st Street et Mission Street.
- Situé en face de la N 1st Street VTA.
- 4 toilettes (2 à chaque étage).
Tous les espace disponibles(1)
Afficher les loyers en
- Espace
- Surface
- Durée
- Loyer
- Type de bien
- Aménagement
- Disponible
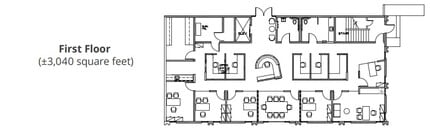
Opportunity for an office space in a prime location. It includes a reception area, two break rooms, a production room and lobby.
- Le loyer ne comprend pas les services publics, les frais immobiliers ou les services de l’immeuble.
- 2 bureaux privés
- Lumière naturelle
- Entièrement aménagé comme Bureau standard
- 6 salles de conférence
- Le nouveau locataire a la possibilité de louer les deux étages.
| Espace | Surface | Durée | Loyer | Type de bien | Aménagement | Disponible |
| 1er étage | 282 m² | Négociable | 264,40 € /m²/an 22,03 € /m²/mois 74 673 € /an 6 223 € /mois | Bureau | Construction achevée | Maintenant |
1er étage
| Surface |
| 282 m² |
| Durée |
| Négociable |
| Loyer |
| 264,40 € /m²/an 22,03 € /m²/mois 74 673 € /an 6 223 € /mois |
| Type de bien |
| Bureau |
| Aménagement |
| Construction achevée |
| Disponible |
| Maintenant |
1er étage
| Surface | 282 m² |
| Durée | Négociable |
| Loyer | 264,40 € /m²/an |
| Type de bien | Bureau |
| Aménagement | Construction achevée |
| Disponible | Maintenant |
Opportunity for an office space in a prime location. It includes a reception area, two break rooms, a production room and lobby.
- Le loyer ne comprend pas les services publics, les frais immobiliers ou les services de l’immeuble.
- Entièrement aménagé comme Bureau standard
- 2 bureaux privés
- 6 salles de conférence
- Lumière naturelle
- Le nouveau locataire a la possibilité de louer les deux étages.
Aperçu du bien
Intérieur rénové en 2006, y compris la plomberie, l'électricité, le CVC, le câble à fibre optique, les nouvelles armoires, les nouveaux plafonds et l'éclairage. Les caractéristiques comprennent un poste de réception intégré au premier étage ainsi que des postes de travail intégrés aux deux étages, câblés pour l'alimentation, la voix et les données. Le bâtiment est situé en face du tramway et à proximité des autoroutes 880, 101, 87 et 280, de l'aéroport international de San Jose et du centre-ville de San Jose.
- Trains de banlieue
- Signalisation
Informations sur l’immeuble
Présenté par
800 N 1st St
Hum, une erreur s’est produite lors de l’envoi de votre message. Veuillez réessayer.
Merci ! Votre message a été envoyé.


