Votre e-mail a été envoyé.
Certaines informations ont été traduites automatiquement.
Informations principales
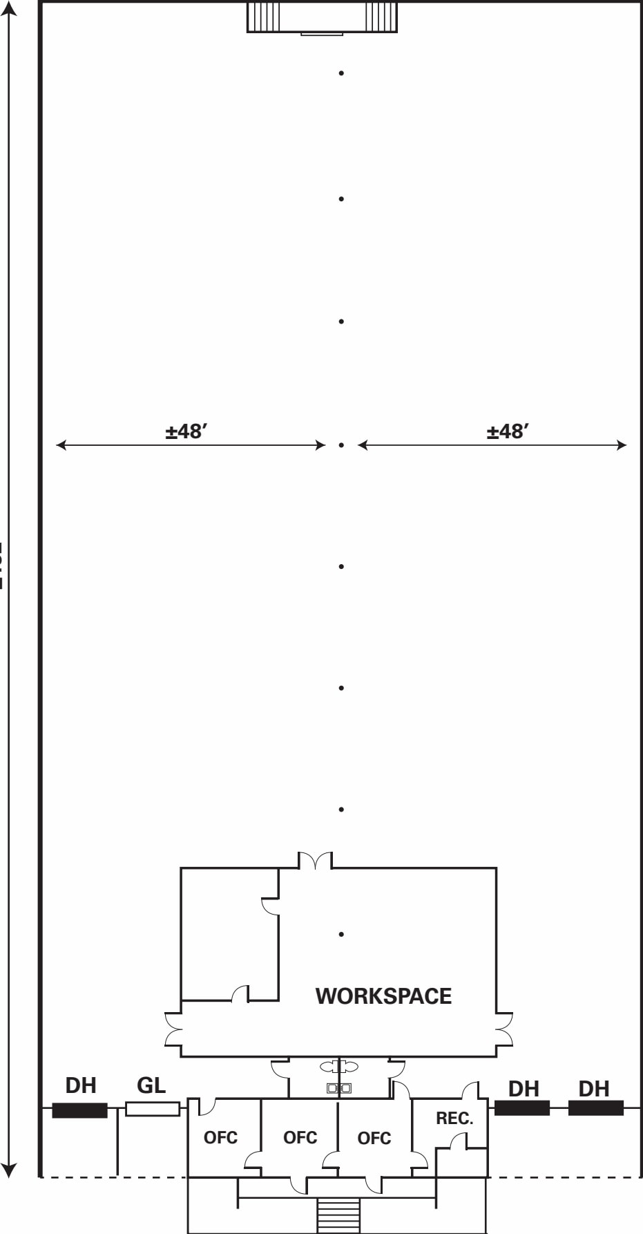
- ±18,432 SF industrial space with existing office build-out, including three private offices and a reception area
- ±24-foot clear height and fully sprinklered for safety and compliance
- RMX-SP zoning with excellent access to Interstate 5, Highway 160, and Business 80, minutes from Downtown Sacramento
- Three dock-high loading doors and one ramped grade-level door for efficient loading and distribution
- 480-volt power available to support heavy equipment and operational needs
- Secure, fenced site with convenient truck maneuvering and parking areas
Caractéristiques
Tous les espaces disponibles(2)
Afficher les loyers en
- Espace
- Surface
- Durée
- Loyer
- Type de bien
- Aménagement
- Disponible
This ±18,432 SF industrial space at 800 N. 10th Street offers a functional layout designed for efficient operations. The suite includes an existing office build-out with three private offices and a reception area, providing approximately 1,500 SF of conditioned workspace. The warehouse features ±24-foot clear height, three dock-high loading doors, and one ramped grade-level door, ensuring smooth loading and distribution capabilities. The property is fully sprinklered and equipped with 480-volt power, supporting a wide range of industrial and manufacturing uses. RMX-SP zoning allows for flexible operational requirements. Located just minutes from Downtown Sacramento, the site offers excellent connectivity to Interstate 5, Highway 160, and Business 80, providing convenient regional access for logistics and distribution. This location combines accessibility, functionality, and infrastructure to meet the needs of modern industrial users seeking proximity to the urban core and major transportation routes.
- Le loyer ne comprend pas les services publics, les frais immobiliers ou les services de l’immeuble.
- Peut être associé à un ou plusieurs espaces supplémentaires pour obtenir jusqu’à 3 425 m² d’espace adjacent.
- Le loyer ne comprend pas les services publics, les frais immobiliers ou les services de l’immeuble.
- Peut être associé à un ou plusieurs espaces supplémentaires pour obtenir jusqu’à 3 425 m² d’espace adjacent.
| Espace | Surface | Durée | Loyer | Type de bien | Aménagement | Disponible |
| 1er étage – F | 1 712 m² | Négociable | 85,93 € /m²/an 7,16 € /m²/mois 147 145 € /an 12 262 € /mois | Industriel/Logistique | - | Maintenant |
| 1er étage – H | 1 712 m² | Négociable | 85,93 € /m²/an 7,16 € /m²/mois 147 145 € /an 12 262 € /mois | Industriel/Logistique | - | Maintenant |
1er étage – F
| Surface |
| 1 712 m² |
| Durée |
| Négociable |
| Loyer |
| 85,93 € /m²/an 7,16 € /m²/mois 147 145 € /an 12 262 € /mois |
| Type de bien |
| Industriel/Logistique |
| Aménagement |
| - |
| Disponible |
| Maintenant |
1er étage – H
| Surface |
| 1 712 m² |
| Durée |
| Négociable |
| Loyer |
| 85,93 € /m²/an 7,16 € /m²/mois 147 145 € /an 12 262 € /mois |
| Type de bien |
| Industriel/Logistique |
| Aménagement |
| - |
| Disponible |
| Maintenant |
1er étage – F
| Surface | 1 712 m² |
| Durée | Négociable |
| Loyer | 85,93 € /m²/an |
| Type de bien | Industriel/Logistique |
| Aménagement | - |
| Disponible | Maintenant |
This ±18,432 SF industrial space at 800 N. 10th Street offers a functional layout designed for efficient operations. The suite includes an existing office build-out with three private offices and a reception area, providing approximately 1,500 SF of conditioned workspace. The warehouse features ±24-foot clear height, three dock-high loading doors, and one ramped grade-level door, ensuring smooth loading and distribution capabilities. The property is fully sprinklered and equipped with 480-volt power, supporting a wide range of industrial and manufacturing uses. RMX-SP zoning allows for flexible operational requirements. Located just minutes from Downtown Sacramento, the site offers excellent connectivity to Interstate 5, Highway 160, and Business 80, providing convenient regional access for logistics and distribution. This location combines accessibility, functionality, and infrastructure to meet the needs of modern industrial users seeking proximity to the urban core and major transportation routes.
- Le loyer ne comprend pas les services publics, les frais immobiliers ou les services de l’immeuble.
- Peut être associé à un ou plusieurs espaces supplémentaires pour obtenir jusqu’à 3 425 m² d’espace adjacent.
1er étage – H
| Surface | 1 712 m² |
| Durée | Négociable |
| Loyer | 85,93 € /m²/an |
| Type de bien | Industriel/Logistique |
| Aménagement | - |
| Disponible | Maintenant |
- Le loyer ne comprend pas les services publics, les frais immobiliers ou les services de l’immeuble.
- Peut être associé à un ou plusieurs espaces supplémentaires pour obtenir jusqu’à 3 425 m² d’espace adjacent.
Faits sur l’installation entrepôt
Occupants
- Étage
- Nom de l’occupant
- Secteur d’activité
- 1er
- National Oak Distributor
- Grossiste
- 1er
- NPW
- Enseigne
Présenté par
800 N 10th St
Hum, une erreur s’est produite lors de l’envoi de votre message. Veuillez réessayer.
Merci ! Votre message a été envoyé.








