Votre e-mail a été envoyé.
Certaines informations ont été traduites automatiquement.
Informations principales
- Central Location.
- Private Off-Street Parking Available.
- Good Accessibility To / From Motorways and City Cent.
Tous les espaces disponibles(2)
Afficher les loyers en
- Espace
- Surface
- Durée
- Loyer
- Type de bien
- Aménagement
- Disponible
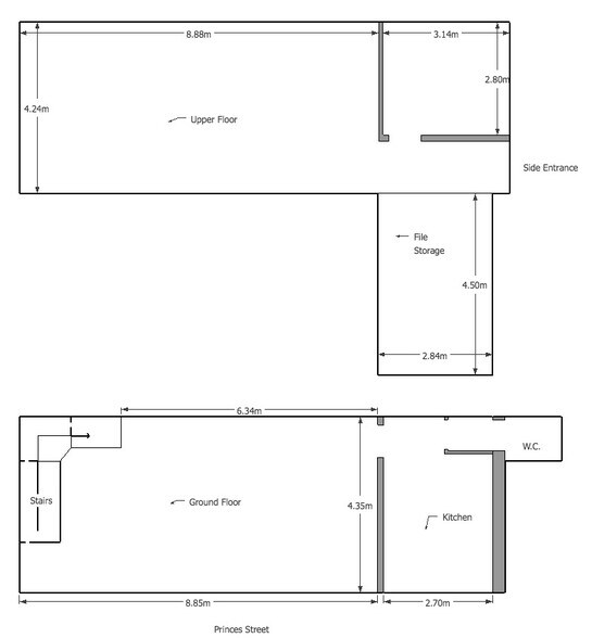
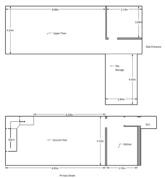
The property is believed to be 1,130sqft and comprises of a large open area + kitchen situated at ground level to the front, with a further area + meeting room / office at mezzanine level to the rear (not demised)
- Classe d’utilisation : Classe 4
- Principalement open space
- Peut être associé à un ou plusieurs espaces supplémentaires pour obtenir jusqu’à 105 m² d’espace adjacent.
- Éclairage d’appoint
- Mezzanine level (not demised)
- Off street parking
- Partiellement aménagé comme Bureau standard
- Convient pour 2 à 5 personnes
- Hauts plafonds
- Planchers en bois
- Bright, versatile space
The property is believed to be 1,130sqft and comprises of a large open area + kitchen situated at ground level to the front, with a further area + meeting room / office at mezzanine level to the rear (not demised)
- Classe d’utilisation : Classe 4
- Principalement open space
- Peut être associé à un ou plusieurs espaces supplémentaires pour obtenir jusqu’à 105 m² d’espace adjacent.
- Éclairage d’appoint
- Mezzanine (non disparue)
- Stationnement hors voirie
- Partiellement aménagé comme Bureau standard
- Convient pour 2 à 5 personnes
- Hauts plafonds
- Planchers en bois
- Espace lumineux et polyvalent
| Espace | Surface | Durée | Loyer | Type de bien | Aménagement | Disponible |
| RDC | 52 m² | Négociable | 164,64 € /m²/an 13,72 € /m²/mois 8 642 € /an 720,17 € /mois | Bureau | Construction partielle | Maintenant |
| 1er étage | 52 m² | Négociable | 164,64 € /m²/an 13,72 € /m²/mois 8 642 € /an 720,17 € /mois | Bureau | Construction partielle | Maintenant |
RDC
| Surface |
| 52 m² |
| Durée |
| Négociable |
| Loyer |
| 164,64 € /m²/an 13,72 € /m²/mois 8 642 € /an 720,17 € /mois |
| Type de bien |
| Bureau |
| Aménagement |
| Construction partielle |
| Disponible |
| Maintenant |
1er étage
| Surface |
| 52 m² |
| Durée |
| Négociable |
| Loyer |
| 164,64 € /m²/an 13,72 € /m²/mois 8 642 € /an 720,17 € /mois |
| Type de bien |
| Bureau |
| Aménagement |
| Construction partielle |
| Disponible |
| Maintenant |
RDC
| Surface | 52 m² |
| Durée | Négociable |
| Loyer | 164,64 € /m²/an |
| Type de bien | Bureau |
| Aménagement | Construction partielle |
| Disponible | Maintenant |
The property is believed to be 1,130sqft and comprises of a large open area + kitchen situated at ground level to the front, with a further area + meeting room / office at mezzanine level to the rear (not demised)
- Classe d’utilisation : Classe 4
- Partiellement aménagé comme Bureau standard
- Principalement open space
- Convient pour 2 à 5 personnes
- Peut être associé à un ou plusieurs espaces supplémentaires pour obtenir jusqu’à 105 m² d’espace adjacent.
- Hauts plafonds
- Éclairage d’appoint
- Planchers en bois
- Mezzanine level (not demised)
- Bright, versatile space
- Off street parking
1er étage
| Surface | 52 m² |
| Durée | Négociable |
| Loyer | 164,64 € /m²/an |
| Type de bien | Bureau |
| Aménagement | Construction partielle |
| Disponible | Maintenant |
The property is believed to be 1,130sqft and comprises of a large open area + kitchen situated at ground level to the front, with a further area + meeting room / office at mezzanine level to the rear (not demised)
- Classe d’utilisation : Classe 4
- Partiellement aménagé comme Bureau standard
- Principalement open space
- Convient pour 2 à 5 personnes
- Peut être associé à un ou plusieurs espaces supplémentaires pour obtenir jusqu’à 105 m² d’espace adjacent.
- Hauts plafonds
- Éclairage d’appoint
- Planchers en bois
- Mezzanine (non disparue)
- Espace lumineux et polyvalent
- Stationnement hors voirie
Aperçu du bien
Composés du rez-de-chaussée d'un bâtiment indépendant de deux étages, les locaux bénéficient également d'un parking privé hors voirie
Informations sur l’immeuble
Occupants
- Étage
- Nom de l’occupant
- Multi
- Gordon Coventry
Présenté par
80 Princes St
Hum, une erreur s’est produite lors de l’envoi de votre message. Veuillez réessayer.
Merci ! Votre message a été envoyé.






