Votre e-mail a été envoyé.
Goodyear Business Park Irvine, CA 92618 Espace disponible | 318–636 m² | Local d’activités



Certaines informations ont été traduites automatiquement.
Informations principales sur le parc
- Unités clé en main prêtes à être occupées immédiatement
- Près des autoroutes 5, 405 et 133 ; à 5,6 km de la route à péage 241
Faits sur le parc
| Espace total disponible | 636 m² | Type de parc | Parc industriel |
| Espace total disponible | 636 m² |
| Type de parc | Parc industriel |
Tous les espaces disponibles(2)
Afficher les loyers en
- Espace
- Surface
- Durée
- Loyer
- Type de bien
- Aménagement
- Disponible
2 private offices, open office space. 22’ clear warehouse. 1 GL Agents—Please contact Travis Haining with any questions or touring instructions.
- Le loyer ne comprend pas les services publics, les frais immobiliers ou les services de l’immeuble.
- 1 accès plain-pied
- Appelez le courtier pour le montrer
- Peut être associé à un ou plusieurs espaces supplémentaires pour obtenir jusqu’à 636 m² d’espace adjacent.
- Entrepôt dégagé de 22 pieds.
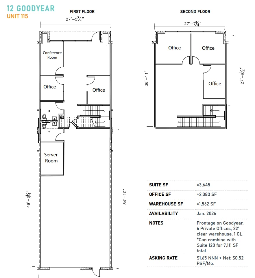
4 private offices, 1 large conference room open office space. 22’ clear warehouse. 1 GL Agents—Please contact Travis Haining with any questions or touring instructions.
- Le loyer ne comprend pas les services publics, les frais immobiliers ou les services de l’immeuble.
- 1 accès plain-pied
- Appelez le courtier pour le montrer
- Peut être associé à un ou plusieurs espaces supplémentaires pour obtenir jusqu’à 636 m² d’espace adjacent.
- Entrepôt dégagé de 22 pieds.
| Espace | Surface | Durée | Loyer | Type de bien | Aménagement | Disponible |
| 1er étage – 130 | 318 m² | Négociable | 181,77 € /m²/an 15,15 € /m²/mois 57 789 € /an 4 816 € /mois | Local d’activités | Construction partielle | Maintenant |
| 1er étage – 135 | 318 m² | Négociable | 181,77 € /m²/an 15,15 € /m²/mois 57 789 € /an 4 816 € /mois | Local d’activités | Construction partielle | Maintenant |
16 Goodyear - 1er étage – 130
16 Goodyear - 1er étage – 135
16 Goodyear - 1er étage – 130
| Surface | 318 m² |
| Durée | Négociable |
| Loyer | 181,77 € /m²/an |
| Type de bien | Local d’activités |
| Aménagement | Construction partielle |
| Disponible | Maintenant |
2 private offices, open office space. 22’ clear warehouse. 1 GL Agents—Please contact Travis Haining with any questions or touring instructions.
- Le loyer ne comprend pas les services publics, les frais immobiliers ou les services de l’immeuble.
- Peut être associé à un ou plusieurs espaces supplémentaires pour obtenir jusqu’à 636 m² d’espace adjacent.
- 1 accès plain-pied
- Entrepôt dégagé de 22 pieds.
- Appelez le courtier pour le montrer
16 Goodyear - 1er étage – 135
| Surface | 318 m² |
| Durée | Négociable |
| Loyer | 181,77 € /m²/an |
| Type de bien | Local d’activités |
| Aménagement | Construction partielle |
| Disponible | Maintenant |
4 private offices, 1 large conference room open office space. 22’ clear warehouse. 1 GL Agents—Please contact Travis Haining with any questions or touring instructions.
- Le loyer ne comprend pas les services publics, les frais immobiliers ou les services de l’immeuble.
- Peut être associé à un ou plusieurs espaces supplémentaires pour obtenir jusqu’à 636 m² d’espace adjacent.
- 1 accès plain-pied
- Entrepôt dégagé de 22 pieds.
- Appelez le courtier pour le montrer
Plan du site
Vue d’ensemble du parc
Identité/visibilité sur Bake Parkway avec chargement au niveau du sol (12 pi L x 14 pi H), ratio de stationnement d'environ 2, 8:1, espace libre d'entrepôt d'environ 22 pieds, 200 A, alimentation haute tension 277/480 Entièrement arrosée,
Présenté par
Goodyear Business Park | Irvine, CA 92618
Hum, une erreur s’est produite lors de l’envoi de votre message. Veuillez réessayer.
Merci ! Votre message a été envoyé.





