Votre e-mail a été envoyé.
7980 B 7980 B 206A st Médical | 130 m² | 4 étoiles | À louer | Langley, BC V2Y 1X6



Certaines informations ont été traduites automatiquement.
Informations principales
- Premium Brand New Medical Clinic Opportunity – Willoughby Town Centre, Langley
- High-end finishes /high ceiling with a clean, modern, professional layout
- Surrounded by new townhomes, condos, and young families
- A vibrant, luxury, high-growth community with exceptional patient demand.
- Fast-growing, high-income residential neighbourhood
- Utilities, WIFI, weekly professional cleaning included in lease
Tous les espace disponibles(1)
Afficher les loyers en
- Espace
- Surface
- Durée
- Loyer
- Type de bien
- Aménagement
- Disponible
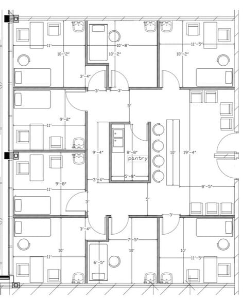
Premium brand-new, turnkey medical clinic opportunity at Willoughby Town Centre in Langley, offering 1,400 SF of connected space (Units B320–7980 206A Street) with 8 exam rooms, reception area (3–4 staff), 8 seats+ waiting area, staff room, and premium finishes—no buildout, no renovation costs, and ready in 1–2 months. This high-visibility retail-front clinic features a fixed monthly rent with no split or overhead percentage, utilities and services included, and the flexibility of shared rooms to reduce costs, making it ideal for independent physicians and specialists seeking a modern, professional space in one of Langley’s fastest-growing, high-demand communities.
- Entièrement aménagé comme Cabinet médical standard
- Espace en excellent état
- Ventilation et chauffage centraux
- CVC disponible en-dehors des heures ouvrables
- Premium Brand New Medical Clinic-Shared Space
- Utilities, Wi-Fi, cleaning & common areas included
- 8 exam rooms 110–120 sq ft each
- Plan d’étage avec bureaux fermés
- Aire de réception
- Système de sécurité
- Accessible fauteuils roulants
- Fully turnkey medical office (no buildout needed)
- Ideal for family physicians
- U-shaped hallway connecting both units
| Espace | Surface | Durée | Loyer | Type de bien | Aménagement | Disponible |
| 3e étage, bureau B320 | 130 m² | Négociable | Sur demande Sur demande Sur demande Sur demande | Médical | Construction achevée | Maintenant |
3e étage, bureau B320
| Surface |
| 130 m² |
| Durée |
| Négociable |
| Loyer |
| Sur demande Sur demande Sur demande Sur demande |
| Type de bien |
| Médical |
| Aménagement |
| Construction achevée |
| Disponible |
| Maintenant |
3e étage, bureau B320
| Surface | 130 m² |
| Durée | Négociable |
| Loyer | Sur demande |
| Type de bien | Médical |
| Aménagement | Construction achevée |
| Disponible | Maintenant |
Premium brand-new, turnkey medical clinic opportunity at Willoughby Town Centre in Langley, offering 1,400 SF of connected space (Units B320–7980 206A Street) with 8 exam rooms, reception area (3–4 staff), 8 seats+ waiting area, staff room, and premium finishes—no buildout, no renovation costs, and ready in 1–2 months. This high-visibility retail-front clinic features a fixed monthly rent with no split or overhead percentage, utilities and services included, and the flexibility of shared rooms to reduce costs, making it ideal for independent physicians and specialists seeking a modern, professional space in one of Langley’s fastest-growing, high-demand communities.
- Entièrement aménagé comme Cabinet médical standard
- Plan d’étage avec bureaux fermés
- Espace en excellent état
- Aire de réception
- Ventilation et chauffage centraux
- Système de sécurité
- CVC disponible en-dehors des heures ouvrables
- Accessible fauteuils roulants
- Premium Brand New Medical Clinic-Shared Space
- Fully turnkey medical office (no buildout needed)
- Utilities, Wi-Fi, cleaning & common areas included
- Ideal for family physicians
- 8 exam rooms 110–120 sq ft each
- U-shaped hallway connecting both units
Aperçu du bien
Premium Brand New Medical Clinic Opportunity – Willoughby Town Centre, Langley Brand New , Turnkey ,No Split , No Renovation Costs , Ready in 1–2 Months/Shared Medical office spaces Available A brand-new, modern, turnkey medical clinic in one of Langley’s fastest-growing neighborhoods. Exceptional visibility • Retail frontage •Premium finishes •Fixed monthly rent • No overhead percentage. ?? About the Space Brand new Medical office space in 3rd floor with elevator access Fully turnkey medical office (no buildout needed) Ready for operation in 1–2 months High-end finishes, high ceiling with a clean, modern, professional layout Retail storefront with strong visibility and signage potential No split, no overhead percentage, no hidden fees Save $300,000+ for renovation Ideal for family physicians and specialists or any health care professionals who want independence practice Located in Units B320-7980 206A Street, Langley (connected 1,400 sq ft)(Willoughby Town Centre) Included Features: 8 exam rooms (110–120 sq ft each)/Shared Rooms available to reduce your costs Reception area (3–4 staff) Waiting area (seats 10+) Staff room U-shaped hallway connecting both units Hydro Utilities, WIFI, Weekly professional cleaning & common areas included in lease ?? Why Willoughby Town Centre? A vibrant, luxury, high-growth community with exceptional patient demand. Fast-growing, high-income residential neighborhood Surrounded by new townhomes, condos, and young families Strong foot traffic & active retail environment Near schools, shops, cafés, restaurants, and servic 5 minutes to Highway 1 15 minutes to Surrey One of Langley’s most desirable areas for healthcare providers Prestigious commercial medical/Health care location Premium clinic space in high demand Designed for long-term practice growth Stop paying 25–30% overhead With our no-split model, you keep 100% of your revenue and significantly reduce overhead. Turnkey, no split, no renovation costs Limited rooms available. ?? Contact Information Phone: 778-862-5153 Email: b320medicallangley@gmail.com
- Accès contrôlé
- Système de sécurité
- Signalisation
- Climatisation
- Détecteur de fumée
Informations sur l’immeuble
Occupants
- Étage
- Nom de l’occupant
- Secteur d’activité
- 3e
- physicians
- Santé et assistance sociale
Présenté par
Green Valley Holding Ltd
7980 B | 7980 B 206A st
Hum, une erreur s’est produite lors de l’envoi de votre message. Veuillez réessayer.
Merci ! Votre message a été envoyé.



