Connectez-vous/S’inscrire
Votre e-mail a été envoyé.
Certaines informations ont été traduites automatiquement.
INFORMATIONS PRINCIPALES SUR L'INVESTISSEMENT
- Quiet dead end street to build a building!
RÉSUMÉ ANALYTIQUE
Land is 2 tax lots totaling .30 acre
BILAN FINANCIER (RÉEL - 2025) Cliquez ici pour accéder à |
ANNUEL | ANNUEL PAR ha |
|---|---|---|
| Taxes |
$99,999
|
$9.99
|
| Frais d’exploitation |
-
|
-
|
| Total des frais |
$99,999
|
$9.99
|
BILAN FINANCIER (RÉEL - 2025) Cliquez ici pour accéder à
| Taxes | |
|---|---|
| Annuel | $99,999 |
| Annuel par ha | $9.99 |
| Frais d’exploitation | |
|---|---|
| Annuel | - |
| Annuel par ha | - |
| Total des frais | |
|---|---|
| Annuel | $99,999 |
| Annuel par ha | $9.99 |
INFORMATIONS SUR L’IMMEUBLE
| Prix | 653 010 € | Type de bien | Terrain |
| Type de vente | Investissement | Sous-type de bien | Terrain commercial |
| Condition de vente | Projet de requalification | Surface totale du lot | 0,09 ha |
| Nb de lots | 1 | ||
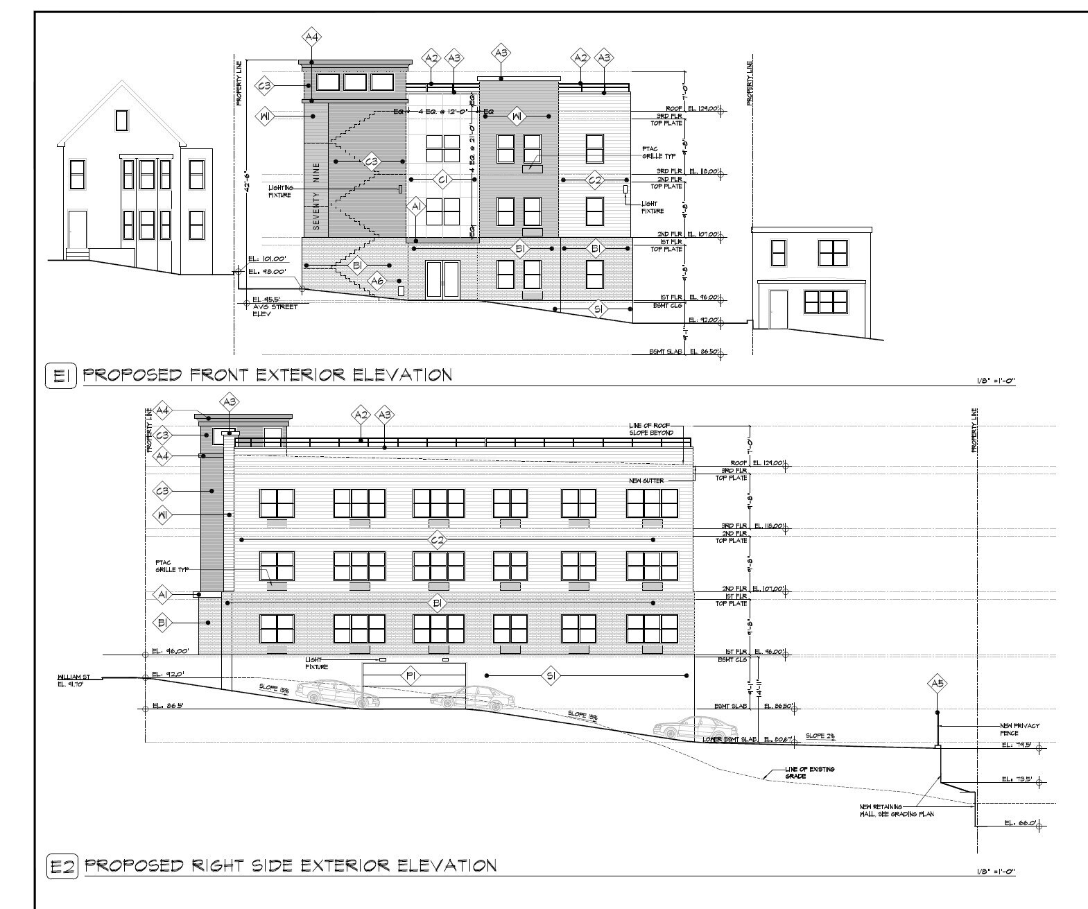
| Zonage | M - Approvals for 15 one bed apts with 20 onsite parking spots. .30 acre | ||
| Prix | 653 010 € |
| Type de vente | Investissement |
| Condition de vente | Projet de requalification |
| Nb de lots | 1 |
| Type de bien | Terrain |
| Sous-type de bien | Terrain commercial |
| Surface totale du lot | 0,09 ha |
| Zonage | M - Approvals for 15 one bed apts with 20 onsite parking spots. .30 acre |
1 LOT DISPONIBLE
Lot
| Prix | 653 010 € | Surface du lot | 0,09 ha |
| Prix par ha | 7 334 649,12 € |
| Prix | 653 010 € |
| Prix par ha | 7 334 649,12 € |
| Surface du lot | 0,09 ha |
Flat lot with gentle slop to the rear. Site plan approved by Planning board. 15 one bed apts,. 20 parking spaces-14 interior. 3 Story elevator building. Quiet dead end Street in Nodine Hill. Nice project in Yonkers!
DESCRIPTION
Garage on lot. .30 acre
1 1
Walk Score®
Très praticable à pied (78)
1 sur 13
VIDÉOS
VISITE EXTÉRIEURE 3D MATTERPORT
VISITE 3D
PHOTOS
STREET VIEW
RUE
CARTE
1 sur 1
Présenté par
79 William St
Vous êtes déjà membre ? Connectez-vous
Hum, une erreur s’est produite lors de l’envoi de votre message. Veuillez réessayer.
Merci ! Votre message a été envoyé.



