Votre e-mail a été envoyé.
Certaines informations ont été traduites automatiquement.
Informations principales
- Heavy Traffic Area!
- Directly Across From Woodhull Hospital and other medical facilities !
- Over 65 Feet of frontage!
- High Ceilings!
- Many Nationals on the block!
Disponibilité de l’espace (3)
Afficher le tarif en
- Espace
- Surface
- Plafond
- Durée
- Loyer
- Type de loyer
| Espace | Surface | Plafond | Durée | Loyer | Type de loyer | |
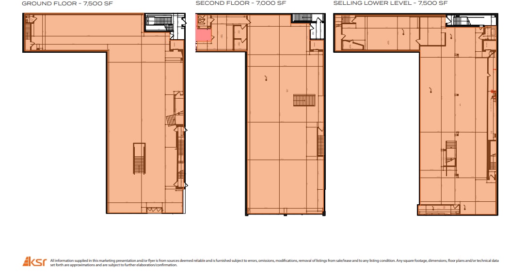
| Niveau inférieur | 697 m² | 3,81 mètres | Négociable | Sur demande Sur demande Sur demande Sur demande | Négociable | |
| 1er étage | 697 m² | 3,81 mètres | Négociable | Sur demande Sur demande Sur demande Sur demande | Négociable | |
| 2e étage | 650 m² | 3,81 mètres | Négociable | Sur demande Sur demande Sur demande Sur demande | Négociable |
Niveau inférieur
Home Threads location
- Entièrement aménagé comme Local commercial standard
- Peut être associé à un ou plusieurs espaces supplémentaires pour obtenir jusqu’à 2 044 m² d’espace adjacent.
- Plafonds finis: 3,81 mètres
1er étage
Home Threads location
- Entièrement aménagé comme Local commercial standard
- Peut être associé à un ou plusieurs espaces supplémentaires pour obtenir jusqu’à 2 044 m² d’espace adjacent.
- Plafonds finis: 3,81 mètres
- 65 pieds de façade disponible.
2e étage
Home Threads location
- Entièrement aménagé comme Local commercial standard
- Peut être associé à un ou plusieurs espaces supplémentaires pour obtenir jusqu’à 2 044 m² d’espace adjacent.
- Plafonds finis: 3,81 mètres
- 65' of Frontage available.
Types de loyers
Le montant et le type de loyer que l’occupant (locataire) est tenu de payer au propriétaire (bailleur) sur la durée du bail sont négociés avant la signature du bail par les deux parties. Le type de loyer varie selon les services fournis. Par exemple, le prix d’un loyer triple net est habituellement inférieur à celui d’un bail à service complet puisque l’occupant est tenu d’assumer des dépenses supplémentaires par rapport au loyer de base. Contacter le broker chargé de l’annonce pour bien comprendre les coûts associés ou les dépenses supplémentaires pour chaque type de loyer.
1. Service complet: Un loyer qui comprend des services d’immeuble standards normaux fournis par le propriétaire dans le cadre d’une location annuelle de base.
2. Double net (NN): L’occupant paie seulement deux des frais de l’immeuble. Le propriétaire et l’occupant déterminent ces frais spécifiques avant la signature du bail.
3. Triple net (NNN): Un bail selon lequel l’occupant est responsable de tous les frais liés à sa part proportionnelle d’occupation de l’immeuble.
4. Brut modifié: Le brut modifié est un type général de bail dans lequel l’occupant est en général responsable de sa part proportionnelle d’une ou de plusieurs dépenses. C’est le propriétaire qui paie les frais restants. Consultez la liste ci-dessous pour connaître les structures de loyers bruts modifiés les plus courantes : 4. Plus services publics: Un type de bail brut modifié, où l’occupant est responsable à hauteur de sa part proportionnelle des services publics en plus du loyer. 4. Plus nettoyage: Un type de bail brut modifié, où l’occupant est responsable à hauteur de sa part proportionnelle du nettoyage en plus du loyer. 4. Plus électricité: Un type de bail brut modifié, où l’occupant est responsable à hauteur de sa part proportionnelle du coût de la consommation électrique en plus du loyer. 4. Plus électricité et nettoyage: Un type de bail brut modifié, où l’occupant est responsable à hauteur de sa part proportionnelle du coût de la consommation électrique et du nettoyage en plus du loyer. 4. Plus services publics et charges: Un type de bail brut modifié où l’occupant est responsable à hauteur de sa part proportionnelle des services publics et du coût de nettoyage en plus du loyer. 4. Bail industriel brut: Un type de bail brut modifié dans lequel l’occupant paie un ou plusieurs des frais en plus du loyer. Le propriétaire et l’occupant déterminent ces frais spécifiques avant la signature du bail.
5. Électricité à la charge de l’occupant: Le propriétaire paie pour tous les services et l’occupant est responsable de sa propre utilisation de l’éclairage et des prises électriques dans l’espace qu’il occupe.
6. Négociable ou sur demande: Cette option est utilisée lorsque le contact de location n’indique pas le type de loyer ou de service.
7. À déterminer: À déterminer : utilisé pour les immeubles dont le type de services ou de loyer n’est pas connu, souvent quand l’immeuble n’est pas encore construit.
Informations sur l’immeuble
| Espace total disponible | 2 044 m² | Surface commerciale utile | 2 044 m² |
| Type de bien | Local commercial | Année de construction | 1989 |
| Sous-type de bien | Boutique |
| Espace total disponible | 2 044 m² |
| Type de bien | Local commercial |
| Sous-type de bien | Boutique |
| Surface commerciale utile | 2 044 m² |
| Année de construction | 1989 |
À propos du bien
Excellent Opportunity ! Prime Corner!! , Great Exposure ! 50 Feet frontage on Broadway + 15 Feet on Fayette (can be extended for additional exposure) High Traffic Street Close proximity to many medical facilities such as WoodHull Hospital, Gotham Health , IDCC, St. Nicks Alliance and more. Many Nationals on the block. J M Trains In front , Z,G,L 8-10 min walk
- Accès 24 h/24
- Banque
- Terrain d’angle
- Métro
- Système de sécurité
- Signalisation
- CVC contrôlé par l’occupant
- Centre commercial fermé
- Climatisation
Principaux commerces à proximité
Présenté par
789 Broadway
Hum, une erreur s’est produite lors de l’envoi de votre message. Veuillez réessayer.
Merci ! Votre message a été envoyé.










