Votre e-mail a été envoyé.
Certaines informations ont été traduites automatiquement.
INFORMATIONS PRINCIPALES
- 1,000 Amps (Expandable); 277/480 Volts of Power (Verify)
- BMP Zoning (Business Manufacturing Park)
- LED Warehouse Lighting
- Fenced & Paved Gated Yard
CARACTÉRISTIQUES
TOUS LES ESPACE DISPONIBLES(1)
Afficher les loyers en
- ESPACE
- SURFACE
- DURÉE
- LOYER
- TYPE DE BIEN
- ÉTAT
- DISPONIBLE
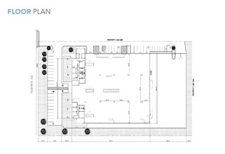
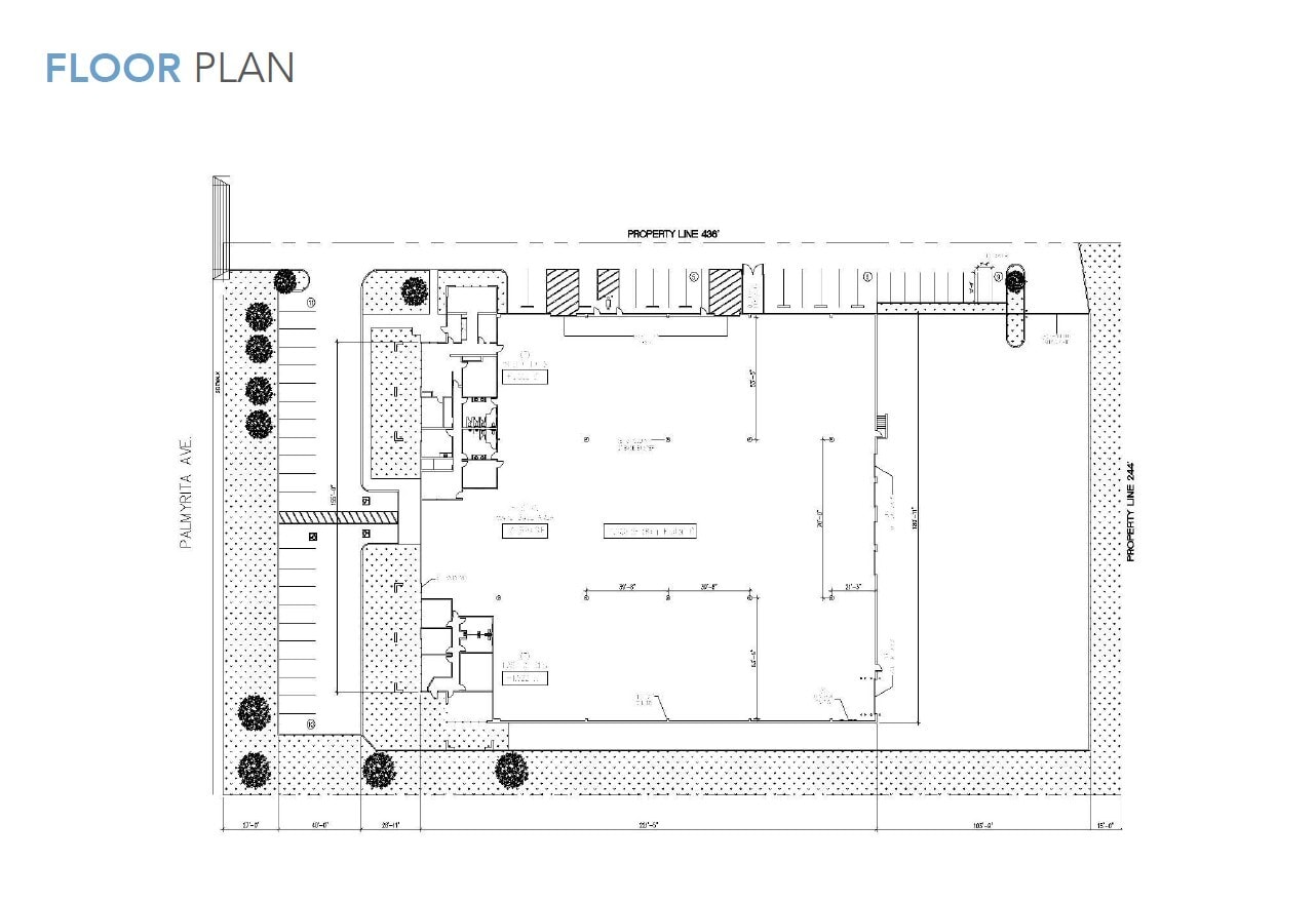
This free-standing industrial building is located in the well-established Hunter Park area of Riverside, California. Spanning approximately ±40,200 square feet, the property includes ±4,522 square feet of office space and sits on a sizable ±2.38-acre lot. It is available with 30 days' notice and offers an operating expense (OPEX) rate of $0.08 per square foot. The facility features a range of key amenities ideal for industrial use, including four dock-high doors and three grade-level doors measuring 12’ x 14’. It offers a minimum clear height of 22 feet and includes a fenced, paved, and gated yard. There are 45 automobile parking stalls, LED lighting throughout the warehouse, and power service of 1,000 amps (expandable) at 277/480V (to be verified). Fire safety is supported by a .45/3000 sprinkler system, and the property is zoned BMP (Business Manufacturing Park), making it suitable for various light industrial and manufacturing uses. Strategically located at the intersection of Palmyrita Avenue and Northgate Street, the building provides excellent connectivity with quick access to major freeways including I-215, CA-91, and CA-60. Positioned within a prominent business/manufacturing park area, this location offers both logistical advantages and a professional industrial setting.
- Le loyer ne comprend pas les services publics, les frais immobiliers ou les services de l’immeuble.
- 3 accès plain-pied
- Comprend 420 m² d’espace de bureau dédié
- 4 quais de chargement
| Espace | Surface | Durée | Loyer | Type de bien | État | Disponible |
| 1er étage | 3 735 m² | 1-5 Ans | 87,97 € /m²/an 7,33 € /m²/mois 328 534 € /an 27 378 € /mois | Industriel/Logistique | Construction partielle | 30 jours |
1er étage
| Surface |
| 3 735 m² |
| Durée |
| 1-5 Ans |
| Loyer |
| 87,97 € /m²/an 7,33 € /m²/mois 328 534 € /an 27 378 € /mois |
| Type de bien |
| Industriel/Logistique |
| État |
| Construction partielle |
| Disponible |
| 30 jours |
1er étage
| Surface | 3 735 m² |
| Durée | 1-5 Ans |
| Loyer | 87,97 € /m²/an |
| Type de bien | Industriel/Logistique |
| État | Construction partielle |
| Disponible | 30 jours |
This free-standing industrial building is located in the well-established Hunter Park area of Riverside, California. Spanning approximately ±40,200 square feet, the property includes ±4,522 square feet of office space and sits on a sizable ±2.38-acre lot. It is available with 30 days' notice and offers an operating expense (OPEX) rate of $0.08 per square foot. The facility features a range of key amenities ideal for industrial use, including four dock-high doors and three grade-level doors measuring 12’ x 14’. It offers a minimum clear height of 22 feet and includes a fenced, paved, and gated yard. There are 45 automobile parking stalls, LED lighting throughout the warehouse, and power service of 1,000 amps (expandable) at 277/480V (to be verified). Fire safety is supported by a .45/3000 sprinkler system, and the property is zoned BMP (Business Manufacturing Park), making it suitable for various light industrial and manufacturing uses. Strategically located at the intersection of Palmyrita Avenue and Northgate Street, the building provides excellent connectivity with quick access to major freeways including I-215, CA-91, and CA-60. Positioned within a prominent business/manufacturing park area, this location offers both logistical advantages and a professional industrial setting.
- Le loyer ne comprend pas les services publics, les frais immobiliers ou les services de l’immeuble.
- Comprend 420 m² d’espace de bureau dédié
- 3 accès plain-pied
- 4 quais de chargement
FAITS SUR L’INSTALLATION ENTREPÔT
OCCUPANTS
- ÉTAGE
- NOM DE L’OCCUPANT
- 1er
- TMT Industries
Présenté par
779 Palmyrita Ave
Hum, une erreur s’est produite lors de l’envoi de votre message. Veuillez réessayer.
Merci ! Votre message a été envoyé.







