Votre e-mail a été envoyé.
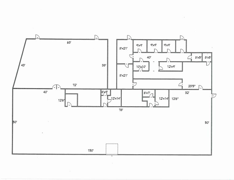
12,723 SF Industrial Warehouse 7777 Greenwell Springs Rd Industriel/Logistique 1 182 m² À vendre Baton Rouge, LA 70814 651 245 € (550,97 €/m²)


Certaines informations ont été traduites automatiquement.
INFORMATIONS PRINCIPALES SUR L'INVESTISSEMENT
- Excellent Visibility
- Industrial or Retail Use
- Back up Generator
- Hard Corner Greenwell Springs Rd & Lanier Dr.
- 3-Phase Power
RÉSUMÉ ANALYTIQUE
• 12,723 SF Block Side Walls with Metal Roof
• 7,500 SF, 11' Clear and Sprinklered
• 1.16 Acre Site
• Three Phase Power
• Back Up Generator
• Zoned C-1
• Located corner of Greenwell Springs Rd. and Lanier Dr.
INFORMATIONS SUR L’IMMEUBLE
DISPONIBILITÉ DE L’ESPACE
- ESPACE
- SURFACE
- TYPE DE BIEN
- ÉTAT
- DISPONIBLE
12,723 SF Industrial Warehouse • 12,723 SF Block Side Walls with Metal Roof • 7,500 SF, 11' Clear and Sprinklered • 1.16 Acre Site • Three Phase Power • Back Up Generator • Zoned C-1 • Located corner of Greenwell Springs Rd. and Lanier Dr.
| Espace | Surface | Type de bien | État | Disponible |
| 1er étage | 1 182 m² | Industriel/Logistique | - | Maintenant |
1er étage
| Surface |
| 1 182 m² |
| Type de bien |
| Industriel/Logistique |
| État |
| - |
| Disponible |
| Maintenant |
1er étage
| Surface | 1 182 m² |
| Type de bien | Industriel/Logistique |
| État | - |
| Disponible | Maintenant |
12,723 SF Industrial Warehouse • 12,723 SF Block Side Walls with Metal Roof • 7,500 SF, 11' Clear and Sprinklered • 1.16 Acre Site • Three Phase Power • Back Up Generator • Zoned C-1 • Located corner of Greenwell Springs Rd. and Lanier Dr.
TAXES FONCIÈRES
| Numéro de parcelle | 00305553 | Évaluation des aménagements | 48 807 € |
| Évaluation du terrain | 2 894 € | Évaluation totale | 51 700 € |
TAXES FONCIÈRES
Présenté par
12,723 SF Industrial Warehouse | 7777 Greenwell Springs Rd
Hum, une erreur s’est produite lors de l’envoi de votre message. Veuillez réessayer.
Merci ! Votre message a été envoyé.



