Votre e-mail a été envoyé.
7755 Ellis Rd Industriel/Logistique | 1 252 m² | À louer | Melbourne, FL 32904



Certaines informations ont été traduites automatiquement.
Informations principales sur la sous-location
- Highly desired and convenient location, approx 1 mile to Melbourne- Orlando International Airport; I-95, St Johns Heritage Parkway and Wickham Rd.
Caractéristiques
Tous les espace disponibles(1)
Afficher les loyers en
- Espace
- Surface
- Durée
- Loyer
- Type de bien
- Aménagement
- Disponible
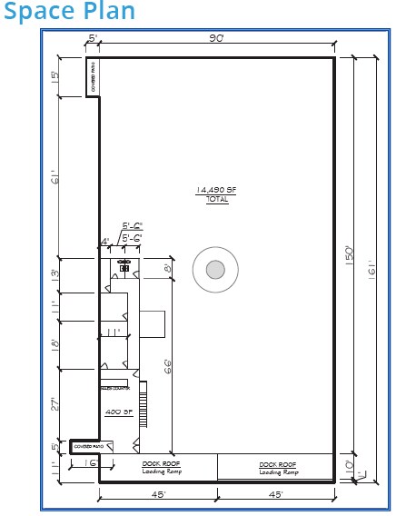
Free standing warehouse boasting 13,475 sq ft, on .94 acres on corner of Ellis Rd and Technology Dr. Highly desired and convenient location, approx 1 mile to Melbourne- Orlando International Airport; I-95, St Johns Heritage Parkway and Wickham Rd. Sublet from Tenant with 12 months remaining on Lease and/or expand into future long-term lease. Immediate availability, subject to Landlord’s approval. Zoned M-1, Light Industrial 3 dock doors: (2) 8’ x 10’ and (1) 12’ x 10’ Clear height: 16-18 ft Power: Single-Phase, 120/240 Volt, 400 Amp Service HVAC: Goodman 4-Ton HVAC in Office and Showroom Construction: Block and Metal Ample Parking Utilities: Electric: Florida Power & Light | Water: City of West Melbourne ADA Compliant; Ramp to front
- Espace en sous-location disponible auprès de l’occupant actuel
- Le loyer ne comprend pas les services publics, les frais immobiliers ou les services de l’immeuble.
| Espace | Surface | Durée | Loyer | Type de bien | Aménagement | Disponible |
| 1er étage | 1 252 m² | Oct. 2026 | 90,89 € /m²/an 7,57 € /m²/mois 113 779 € /an 9 482 € /mois | Industriel/Logistique | Construction achevée | Maintenant |
1er étage
| Surface |
| 1 252 m² |
| Durée |
| Oct. 2026 |
| Loyer |
| 90,89 € /m²/an 7,57 € /m²/mois 113 779 € /an 9 482 € /mois |
| Type de bien |
| Industriel/Logistique |
| Aménagement |
| Construction achevée |
| Disponible |
| Maintenant |
1er étage
| Surface | 1 252 m² |
| Durée | Oct. 2026 |
| Loyer | 90,89 € /m²/an |
| Type de bien | Industriel/Logistique |
| Aménagement | Construction achevée |
| Disponible | Maintenant |
Free standing warehouse boasting 13,475 sq ft, on .94 acres on corner of Ellis Rd and Technology Dr. Highly desired and convenient location, approx 1 mile to Melbourne- Orlando International Airport; I-95, St Johns Heritage Parkway and Wickham Rd. Sublet from Tenant with 12 months remaining on Lease and/or expand into future long-term lease. Immediate availability, subject to Landlord’s approval. Zoned M-1, Light Industrial 3 dock doors: (2) 8’ x 10’ and (1) 12’ x 10’ Clear height: 16-18 ft Power: Single-Phase, 120/240 Volt, 400 Amp Service HVAC: Goodman 4-Ton HVAC in Office and Showroom Construction: Block and Metal Ample Parking Utilities: Electric: Florida Power & Light | Water: City of West Melbourne ADA Compliant; Ramp to front
- Espace en sous-location disponible auprès de l’occupant actuel
- Le loyer ne comprend pas les services publics, les frais immobiliers ou les services de l’immeuble.
Aperçu du bien
Free standing warehouse boasting 13,475 sq ft, on .94 acres on corner of Ellis Rd and Technology Dr. Highly desired and convenient location, approx 1 mile to Melbourne- Orlando International Airport; I-95, St Johns Heritage Parkway and Wickham Rd. Sublet from Tenant with 12 months remaining on Lease and/or expand into future long-term lease. Immediate availability, subject to Landlord’s approval. Zoned M-1, Light Industrial 3 dock doors: (2) 8’ x 10’ and (1) 12’ x 10’ Clear height: 16-18 ft Power: Single-Phase, 120/240 Volt, 400 Amp Service HVAC: Goodman 4-Ton HVAC in Office and Showroom Construction: Block and Metal Ample Parking Utilities: Electric: Florida Power & Light | Water: City of West Melbourne ADA Compliant; Ramp to front
Faits sur l’installation entrepôt
Occupants
- Étage
- Nom de l’occupant
- 1er
- Marine Whole Codings
Présenté par
7755 Ellis Rd
Hum, une erreur s’est produite lors de l’envoi de votre message. Veuillez réessayer.
Merci ! Votre message a été envoyé.
