Votre e-mail a été envoyé.
761 Queen St W Local commercial | 261–1 312 m² | À louer | Toronto, ON M6J 1G1



Certaines informations ont été traduites automatiquement.
Informations principales
- Beaucoup de lumière
- Strong co-tenancy with nationally recognized retailers and curated independents.
- Immediate access to the 501 Queen streetcar supporting connectivity across the downtown west corridor.
- Positioned in Toronto’s creative district surrounded by fashion, lifestyle, and specialty brands.
- Steps from Trinity Bellwoods Park, one of the city's highest-traffic urban parks.
- High-visibility storefront presence in a walkable, destination-driven retail corridor.
Disponibilité de l’espace (3)
Afficher le tarif en
- Espace
- Surface
- Durée
- Loyer
- Type de loyer
| Espace | Surface | Durée | Loyer | Type de loyer | ||
| 1er étage | 261 m² | Négociable | Sur demande Sur demande Sur demande Sur demande | Triple net (NNN) | ||
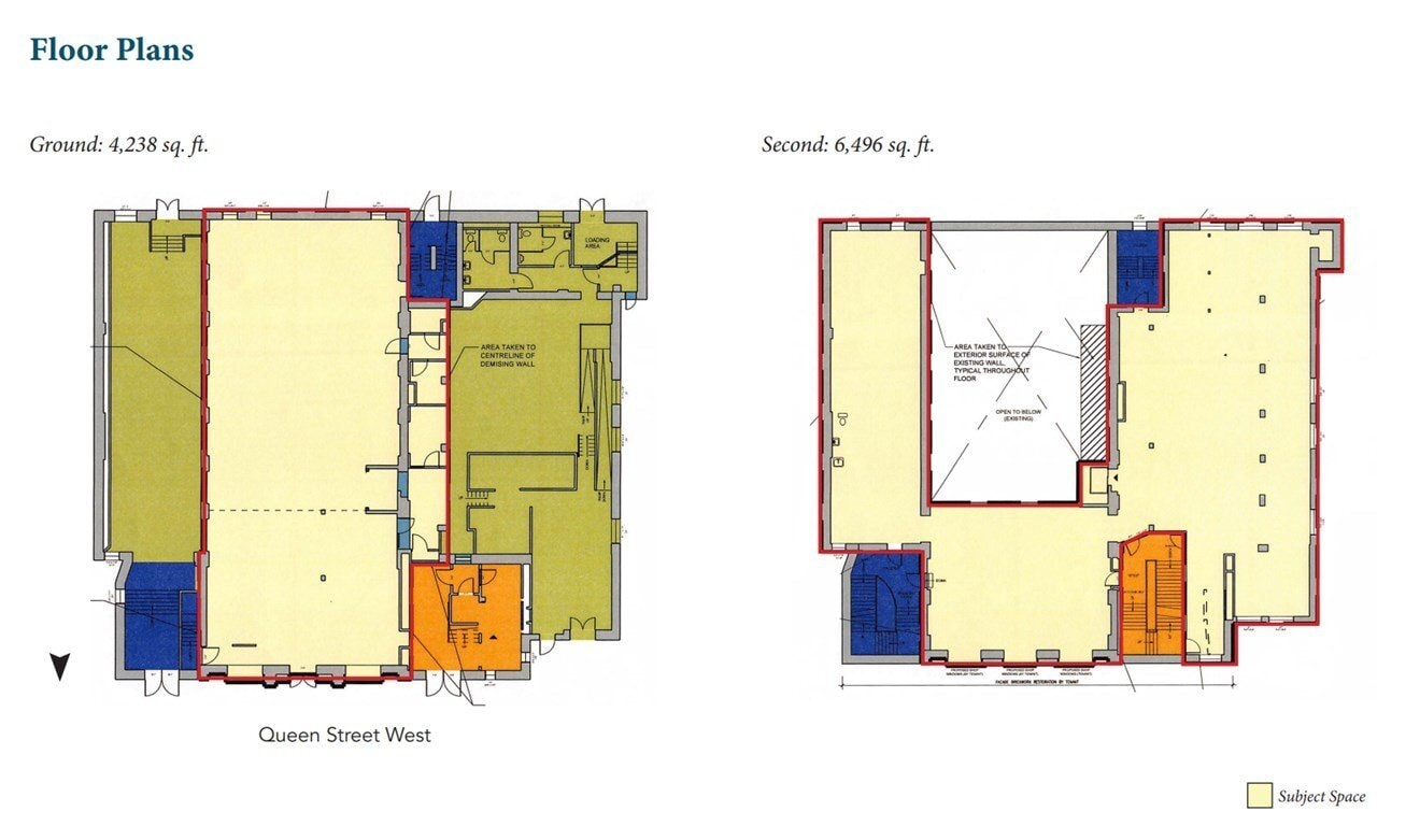
| 1er étage, bureau GRND | 448 m² | 1-10 Ans | Sur demande Sur demande Sur demande Sur demande | Triple net (NNN) | ||
| 2e étage, bureau Second | 603 m² | 1-10 Ans | Sur demande Sur demande Sur demande Sur demande | Triple net (NNN) |
1er étage
Situated in the heart of Toronto’s celebrated West Queen West district, 761 Queen Street West delivers a rare opportunity to lease a character-rich retail space embedded within a beautifully restored 1904 church structure. The property blends architectural heritage with modern usability, offering a distinctive environment that appeals to design-forward brands, boutique retailers, experiential concepts, and lifestyle-oriented operators seeking a standout location in one of the city’s most vibrant neighbourhoods. The surrounding streetscape is highly walkable and defined by creative energy, independent merchants, and a steady flow of local residents and destination visitors. Positioned just west of Bathurst Street, the property benefits from exceptional connectivity and daily foot traffic generated by nearby boutique hotels, cafés, galleries, and widely recognized retail names. Warby Parker, John Fluevog, Aesop, Le Labo, Terroni, Filson, and The Latest Scoop are all part of the immediate retail ecosystem, establishing a strong co-tenancy foundation for brands seeking alignment with established trendsetters. The neighbourhood’s reputation as Toronto’s creative heart attracts a design-savvy audience that values authenticity, craftsmanship, and unique retail environments. Trinity Bellwoods Park, one of downtown Toronto’s largest and most beloved green spaces, sits steps from the property and acts as a major draw throughout the year. Its steady activity complements the commercial corridor, supporting consistent pedestrian movement and creating a dynamic customer base from morning through evening. Transit access is seamless via the 501 Queen streetcar, North America’s longest streetcar route, connecting the site to dense residential pockets, downtown employment centers, and adjacent neighbourhoods. With immediate availability and an unmistakable architectural identity, 761 Queen Street West presents a standout leasing opportunity for operators seeking presence in a highly coveted retail corridor where heritage character, steady demand, and strong brand adjacency converge.
- Le loyer ne comprend pas les services publics, les frais immobiliers ou les services de l’immeuble.
- Entièrement aménagé comme Local commercial standard
- Contigu et aligné avec d’autres locaux commerciaux
1er étage, bureau GRND
Stunning retail space located within a beautifully retrofitted church which dates back to 1904.
- Le loyer ne comprend pas les services publics, les frais immobiliers ou les services de l’immeuble.
- Partiellement aménagé comme Local commercial standard
- Contigu et aligné avec d’autres locaux commerciaux
- Peut être associé à un ou plusieurs espaces supplémentaires pour obtenir jusqu’à 1 052 m² d’espace adjacent.
- Ventilation et chauffage centraux
- Principalement open space
- Sous-sol
- Hauteurs de plafond incroyables
- Beaucoup de lumière naturelle
2e étage, bureau Second
Stunning retail space located within a beautifully retrofitted church which dates back to 1904.
- Le loyer ne comprend pas les services publics, les frais immobiliers ou les services de l’immeuble.
- Partiellement aménagé comme Local commercial standard
- Contigu et aligné avec d’autres locaux commerciaux
- Peut être associé à un ou plusieurs espaces supplémentaires pour obtenir jusqu’à 1 052 m² d’espace adjacent.
- Ventilation et chauffage centraux
- Principalement open space
- Sous-sol
- Hauteurs de plafond incroyables
- Beaucoup de lumière naturelle
Types de loyers
Le montant et le type de loyer que l’occupant (locataire) est tenu de payer au propriétaire (bailleur) sur la durée du bail sont négociés avant la signature du bail par les deux parties. Le type de loyer varie selon les services fournis. Par exemple, le prix d’un loyer triple net est habituellement inférieur à celui d’un bail à service complet puisque l’occupant est tenu d’assumer des dépenses supplémentaires par rapport au loyer de base. Contacter le broker chargé de l’annonce pour bien comprendre les coûts associés ou les dépenses supplémentaires pour chaque type de loyer.
1. Service complet: Un loyer qui comprend des services d’immeuble standards normaux fournis par le propriétaire dans le cadre d’une location annuelle de base.
2. Double net (NN): L’occupant paie seulement deux des frais de l’immeuble. Le propriétaire et l’occupant déterminent ces frais spécifiques avant la signature du bail.
3. Triple net (NNN): Un bail selon lequel l’occupant est responsable de tous les frais liés à sa part proportionnelle d’occupation de l’immeuble.
4. Brut modifié: Le brut modifié est un type général de bail dans lequel l’occupant est en général responsable de sa part proportionnelle d’une ou de plusieurs dépenses. C’est le propriétaire qui paie les frais restants. Consultez la liste ci-dessous pour connaître les structures de loyers bruts modifiés les plus courantes : 4. Plus services publics: Un type de bail brut modifié, où l’occupant est responsable à hauteur de sa part proportionnelle des services publics en plus du loyer. 4. Plus nettoyage: Un type de bail brut modifié, où l’occupant est responsable à hauteur de sa part proportionnelle du nettoyage en plus du loyer. 4. Plus électricité: Un type de bail brut modifié, où l’occupant est responsable à hauteur de sa part proportionnelle du coût de la consommation électrique en plus du loyer. 4. Plus électricité et nettoyage: Un type de bail brut modifié, où l’occupant est responsable à hauteur de sa part proportionnelle du coût de la consommation électrique et du nettoyage en plus du loyer. 4. Plus services publics et charges: Un type de bail brut modifié où l’occupant est responsable à hauteur de sa part proportionnelle des services publics et du coût de nettoyage en plus du loyer. 4. Bail industriel brut: Un type de bail brut modifié dans lequel l’occupant paie un ou plusieurs des frais en plus du loyer. Le propriétaire et l’occupant déterminent ces frais spécifiques avant la signature du bail.
5. Électricité à la charge de l’occupant: Le propriétaire paie pour tous les services et l’occupant est responsable de sa propre utilisation de l’éclairage et des prises électriques dans l’espace qu’il occupe.
6. Négociable ou sur demande: Cette option est utilisée lorsque le contact de location n’indique pas le type de loyer ou de service.
7. À déterminer: À déterminer : utilisé pour les immeubles dont le type de services ou de loyer n’est pas connu, souvent quand l’immeuble n’est pas encore construit.
Informations sur l’immeuble
| Espace total disponible | 1 312 m² | Surface commerciale utile | 2 281 m² |
| Max. Contigu | 1 052 m² | Année de construction/rénovation | 1950/2013 |
| Type de bien | Local commercial |
| Espace total disponible | 1 312 m² |
| Max. Contigu | 1 052 m² |
| Type de bien | Local commercial |
| Surface commerciale utile | 2 281 m² |
| Année de construction/rénovation | 1950/2013 |
À propos du bien
Situé juste à l'ouest de la rue Bathurst, au cœur de West Queen West, à quelques pas du parc Trinity Bellwood. Les détaillants voisins incluent : Warby Parker, Jaybird, John Fluevog, Dutil Denim, Aesop, Le Labo, Heel Boy, Bailey Nelson, Filson, The Latest Scoop, Maguire Shoes, Terroni, Cumbrae's et bien d'autres encore.
Principaux commerces à proximité
Présenté par
761 Queen St W
Hum, une erreur s’est produite lors de l’envoi de votre message. Veuillez réessayer.
Merci ! Votre message a été envoyé.






