Votre e-mail a été envoyé.
Certaines informations ont été traduites automatiquement.
Informations principales sur le parc
- Libérez votre temps grâce aux nombreux équipements disponibles sur place, notamment des food trucks pour un repas rapide, des équipements automobiles et des bornes de recharge pour véhicules électriques.
- Simplifiez les déplacements quotidiens grâce à un accès pratique aux autoroutes 5, 405 et 133 et à la route à péage 241, ainsi qu'à de nombreux parkings en surface.
- Profitez d'une vie de villégiature à The Village, Los Olivos ou The Park Apartment Homes
- Espace de rassemblement en plein air doté d'une connexion Wi-Fi. Nos stations de barbecue extérieures sont parfaites pour votre prochain événement d'entreprise.
- À quelques minutes de l'Irvine Spectrum Center®, l'une des meilleures destinations de shopping et de restauration du sud de la Californie avec plus de 130 magasins, restaurants et lieux de divertissement
Faits sur le parc
| Espace total disponible | 15 282 m² | Type de parc | Parc de bureaux |
| Max. Contigu | 4 127 m² | Caractéristiques | Signalisation |
| Espace total disponible | 15 282 m² |
| Max. Contigu | 4 127 m² |
| Type de parc | Parc de bureaux |
| Caractéristiques | Signalisation |
Tous les espaces disponibles(13)
Afficher les loyers en
- Espace
- Surface
- Durée
- Loyer
- Type de bien
- Aménagement
- Disponible
Suite Description : $2/SF Broker Bonus for 5+ year lease deals & $1/SF Broker Bonus for 3+ year lease deals for NEW customers. Exclusions apply. Expires 12/31/2025
- Le loyer ne comprend pas les services publics, les frais immobiliers ou les services de l’immeuble.
- Disposition open space
- Entièrement aménagé comme Bureau standard
Suite Description : $2/SF Broker Bonus for 5+ year lease deals & $1/SF Broker Bonus for 3+ year lease deals for NEW customers. Exclusions apply. Expires 12/31/2025 / # of ground level doors : 1.0
- Le loyer ne comprend pas les services publics, les frais immobiliers ou les services de l’immeuble.
- Disposition open space
- Entièrement aménagé comme Bureau standard
| Espace | Surface | Durée | Loyer | Type de bien | Aménagement | Disponible |
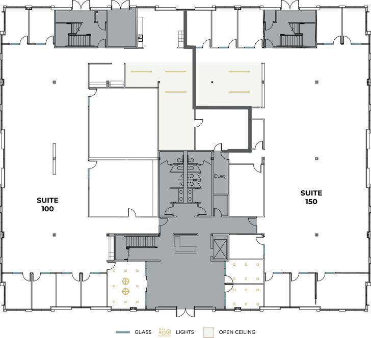
| 1er étage, bureau 100 | 1 369 m² | Négociable | 220,33 € /m²/an 18,36 € /m²/mois 301 620 € /an 25 135 € /mois | Bureau | Construction achevée | Maintenant |
| 1er étage, bureau 150 | 1 296 m² | Négociable | 214,82 € /m²/an 17,90 € /m²/mois 278 492 € /an 23 208 € /mois | Bureau | Construction achevée | Maintenant |
7545 Irvine Center Dr - 1er étage – Bureau 100
7545 Irvine Center Dr - 1er étage – Bureau 150
- Espace
- Surface
- Durée
- Loyer
- Type de bien
- Aménagement
- Disponible
Suite Description : $2/SF Broker Bonus for 5+ year lease deals & $1/SF Broker Bonus for 3+ year lease deals for NEW customers. Exclusions apply. Expires 12/31/2025 / This is a Flex Workspace+tm suite : Yes
- Le loyer ne comprend pas les services publics, les frais immobiliers ou les services de l’immeuble.
- Espace en excellent état
- Principalement open space
| Espace | Surface | Durée | Loyer | Type de bien | Aménagement | Disponible |
| 1er étage, bureau 100 | 650 m² | Négociable | 247,87 € /m²/an 20,66 € /m²/mois 161 198 € /an 13 433 € /mois | Bureau | Meublé et équipé | Maintenant |
7515 Irvine Center Dr - 1er étage – Bureau 100
- Espace
- Surface
- Durée
- Loyer
- Type de bien
- Aménagement
- Disponible
Suite Description : Ground-level roll-up door with warehouse. $2/SF Broker Bonus for 5+ year lease deals & $1/SF Broker Bonus for 3+ year lease deals for NEW customers. Exclusions apply. Expires 12/31/2025 / # of ground level doors : 1.0
- Le loyer ne comprend pas les services publics, les frais immobiliers ou les services de l’immeuble.
- Principalement open space
- Entièrement aménagé comme Bureau standard
- Peut être associé à un ou plusieurs espaces supplémentaires pour obtenir jusqu’à 4 127 m² d’espace adjacent.
Suite Description : $2/SF Broker Bonus for 5+ year lease deals & $1/SF Broker Bonus for 3+ year lease deals for NEW customers. Exclusions apply. Expires 12/31/2025
- Le loyer ne comprend pas les services publics, les frais immobiliers ou les services de l’immeuble.
- Disposition open space
- Peut être associé à un ou plusieurs espaces supplémentaires pour obtenir jusqu’à 4 127 m² d’espace adjacent.
- Entièrement aménagé comme Bureau standard
- Espace en excellent état
| Espace | Surface | Durée | Loyer | Type de bien | Aménagement | Disponible |
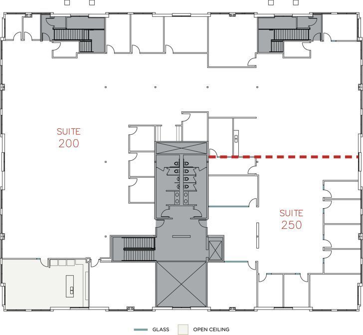
| 1er étage, bureau 100 | 1 181 m² | Négociable | 214,82 € /m²/an 17,90 € /m²/mois 253 704 € /an 21 142 € /mois | Bureau | Construction achevée | Maintenant |
| 2e étage, bureau 200 | 2 946 m² | Négociable | 214,82 € /m²/an 17,90 € /m²/mois 632 784 € /an 52 732 € /mois | Bureau | Construction achevée | Maintenant |
7565 Irvine Center Dr - 1er étage – Bureau 100
7565 Irvine Center Dr - 2e étage – Bureau 200
- Espace
- Surface
- Durée
- Loyer
- Type de bien
- Aménagement
- Disponible
Suite Description : $2/SF Broker Bonus for 5+ year lease deals & $1/SF Broker Bonus for 3+ year lease deals for NEW customers. Exclusions apply. Expires 12/31/2025
- Le loyer ne comprend pas les services publics, les frais immobiliers ou les services de l’immeuble.
- Principalement open space
- Entièrement aménagé comme Bureau standard
| Espace | Surface | Durée | Loyer | Type de bien | Aménagement | Disponible |
| 1er étage, bureau 110 | 434 m² | Négociable | 220,33 € /m²/an 18,36 € /m²/mois 95 552 € /an 7 963 € /mois | Bureau | Construction achevée | Maintenant |
7595 Irvine Center Dr - 1er étage – Bureau 110
- Espace
- Surface
- Durée
- Loyer
- Type de bien
- Aménagement
- Disponible
Suite Description : $2/SF Broker Bonus for 5+ year lease deals & $1/SF Broker Bonus for 3+ year lease deals for NEW customers. Exclusions apply. Expires 12/31/2025
- Le loyer ne comprend pas les services publics, les frais immobiliers ou les services de l’immeuble.
- Principalement open space
- Entièrement aménagé comme Bureau standard
| Espace | Surface | Durée | Loyer | Type de bien | Aménagement | Disponible |
| 1er étage, bureau 150 | 754 m² | Négociable | 220,33 € /m²/an 18,36 € /m²/mois 166 029 € /an 13 836 € /mois | Bureau | Construction achevée | Maintenant |
7555 Irvine Center Dr - 1er étage – Bureau 150
- Espace
- Surface
- Durée
- Loyer
- Type de bien
- Aménagement
- Disponible
Suite Description : $2/SF Broker Bonus for 5+ year lease deals & $1/SF Broker Bonus for 3+ year lease deals for NEW customers. Exclusions apply. Expires 12/31/2025
- Le loyer ne comprend pas les services publics, les frais immobiliers ou les services de l’immeuble.
- Disposition open space
- Entièrement aménagé comme Bureau standard
- Espace en excellent état
Suite Description : $2/SF Broker Bonus for 5+ year lease deals & $1/SF Broker Bonus for 3+ year lease deals for NEW customers. Exclusions apply. Expires 12/31/2025
- Le loyer ne comprend pas les services publics, les frais immobiliers ou les services de l’immeuble.
- Principalement open space
- Entièrement aménagé comme Bureau standard
| Espace | Surface | Durée | Loyer | Type de bien | Aménagement | Disponible |
| 2e étage, bureau 200 | 1 135 m² | Négociable | 214,82 € /m²/an 17,90 € /m²/mois 243 785 € /an 20 315 € /mois | Bureau | Construction achevée | Maintenant |
| 2e étage, bureau 250 | 918 m² | Négociable | 214,82 € /m²/an 17,90 € /m²/mois 197 224 € /an 16 435 € /mois | Bureau | Construction achevée | Maintenant |
7575 Irvine Center Dr - 2e étage – Bureau 200
7575 Irvine Center Dr - 2e étage – Bureau 250
- Espace
- Surface
- Durée
- Loyer
- Type de bien
- Aménagement
- Disponible
Suite Description : $2/SF Broker Bonus for 5+ year lease deals & $1/SF Broker Bonus for 3+ year lease deals for NEW customers. Exclusions apply. Expires 12/31/2025 / This is a Flex Workspace+tm suite : Yes
- Le loyer ne comprend pas les services publics, les frais immobiliers ou les services de l’immeuble.
- Principalement open space
- Entièrement aménagé comme Bureau standard
- Espace en excellent état
| Espace | Surface | Durée | Loyer | Type de bien | Aménagement | Disponible |
| 2e étage, bureau 200 | 1 166 m² | Négociable | 214,82 € /m²/an 17,90 € /m²/mois 250 491 € /an 20 874 € /mois | Bureau | Construction achevée | Maintenant |
7505 Irvine Center Dr - 2e étage – Bureau 200
- Espace
- Surface
- Durée
- Loyer
- Type de bien
- Aménagement
- Disponible
Suite Description : $2/SF Broker Bonus for 5+ year lease deals & $1/SF Broker Bonus for 3+ year lease deals for NEW customers. Exclusions apply. Expires 12/31/2025 / This is a Flex Workspace+tm suite : Yes
- Le loyer ne comprend pas les services publics, les frais immobiliers ou les services de l’immeuble.
- Disposition open space
- Entièrement aménagé comme Bureau standard
- Espace en excellent état
| Espace | Surface | Durée | Loyer | Type de bien | Aménagement | Disponible |
| 2e étage, bureau 250 | 1 440 m² | Négociable | 214,82 € /m²/an 17,90 € /m²/mois 309 287 € /an 25 774 € /mois | Bureau | Construction achevée | Maintenant |
7525 Irvine Center Dr - 2e étage – Bureau 250
- Espace
- Surface
- Durée
- Loyer
- Type de bien
- Aménagement
- Disponible
Suite Description : $2/SF Broker Bonus for 5+ year lease deals & $1/SF Broker Bonus for 3+ year lease deals for NEW customers. Exclusions apply. Expires 12/31/2025
- Le loyer ne comprend pas les services publics, les frais immobiliers ou les services de l’immeuble.
- Principalement open space
- Entièrement aménagé comme Bureau standard
| Espace | Surface | Durée | Loyer | Type de bien | Aménagement | Disponible |
| 2e étage, bureau 250 | 360 m² | Négociable | 214,82 € /m²/an 17,90 € /m²/mois 77 257 € /an 6 438 € /mois | Bureau | Construction achevée | Maintenant |
7585 Irvine Center Dr - 2e étage – Bureau 250
- Espace
- Surface
- Durée
- Loyer
- Type de bien
- Aménagement
- Disponible
- Le loyer ne comprend pas les services publics, les frais immobiliers ou les services de l’immeuble.
| Espace | Surface | Durée | Loyer | Type de bien | Aménagement | Disponible |
| 2e étage, bureau 250 | 1 634 m² | Négociable | 220,33 € /m²/an 18,36 € /m²/mois 360 040 € /an 30 003 € /mois | Bureau | - | 01/05/2026 |
7535 Irvine Center Dr - 2e étage – Bureau 250
7545 Irvine Center Dr - 1er étage – Bureau 100
| Surface | 1 369 m² |
| Durée | Négociable |
| Loyer | 220,33 € /m²/an |
| Type de bien | Bureau |
| Aménagement | Construction achevée |
| Disponible | Maintenant |
Suite Description : $2/SF Broker Bonus for 5+ year lease deals & $1/SF Broker Bonus for 3+ year lease deals for NEW customers. Exclusions apply. Expires 12/31/2025
- Le loyer ne comprend pas les services publics, les frais immobiliers ou les services de l’immeuble.
- Entièrement aménagé comme Bureau standard
- Disposition open space
7545 Irvine Center Dr - 1er étage – Bureau 150
| Surface | 1 296 m² |
| Durée | Négociable |
| Loyer | 214,82 € /m²/an |
| Type de bien | Bureau |
| Aménagement | Construction achevée |
| Disponible | Maintenant |
Suite Description : $2/SF Broker Bonus for 5+ year lease deals & $1/SF Broker Bonus for 3+ year lease deals for NEW customers. Exclusions apply. Expires 12/31/2025 / # of ground level doors : 1.0
- Le loyer ne comprend pas les services publics, les frais immobiliers ou les services de l’immeuble.
- Entièrement aménagé comme Bureau standard
- Disposition open space
7515 Irvine Center Dr - 1er étage – Bureau 100
| Surface | 650 m² |
| Durée | Négociable |
| Loyer | 247,87 € /m²/an |
| Type de bien | Bureau |
| Aménagement | Meublé et équipé |
| Disponible | Maintenant |
Suite Description : $2/SF Broker Bonus for 5+ year lease deals & $1/SF Broker Bonus for 3+ year lease deals for NEW customers. Exclusions apply. Expires 12/31/2025 / This is a Flex Workspace+tm suite : Yes
- Le loyer ne comprend pas les services publics, les frais immobiliers ou les services de l’immeuble.
- Principalement open space
- Espace en excellent état
7565 Irvine Center Dr - 1er étage – Bureau 100
| Surface | 1 181 m² |
| Durée | Négociable |
| Loyer | 214,82 € /m²/an |
| Type de bien | Bureau |
| Aménagement | Construction achevée |
| Disponible | Maintenant |
Suite Description : Ground-level roll-up door with warehouse. $2/SF Broker Bonus for 5+ year lease deals & $1/SF Broker Bonus for 3+ year lease deals for NEW customers. Exclusions apply. Expires 12/31/2025 / # of ground level doors : 1.0
- Le loyer ne comprend pas les services publics, les frais immobiliers ou les services de l’immeuble.
- Entièrement aménagé comme Bureau standard
- Principalement open space
- Peut être associé à un ou plusieurs espaces supplémentaires pour obtenir jusqu’à 4 127 m² d’espace adjacent.
7565 Irvine Center Dr - 2e étage – Bureau 200
| Surface | 2 946 m² |
| Durée | Négociable |
| Loyer | 214,82 € /m²/an |
| Type de bien | Bureau |
| Aménagement | Construction achevée |
| Disponible | Maintenant |
Suite Description : $2/SF Broker Bonus for 5+ year lease deals & $1/SF Broker Bonus for 3+ year lease deals for NEW customers. Exclusions apply. Expires 12/31/2025
- Le loyer ne comprend pas les services publics, les frais immobiliers ou les services de l’immeuble.
- Entièrement aménagé comme Bureau standard
- Disposition open space
- Espace en excellent état
- Peut être associé à un ou plusieurs espaces supplémentaires pour obtenir jusqu’à 4 127 m² d’espace adjacent.
7595 Irvine Center Dr - 1er étage – Bureau 110
| Surface | 434 m² |
| Durée | Négociable |
| Loyer | 220,33 € /m²/an |
| Type de bien | Bureau |
| Aménagement | Construction achevée |
| Disponible | Maintenant |
Suite Description : $2/SF Broker Bonus for 5+ year lease deals & $1/SF Broker Bonus for 3+ year lease deals for NEW customers. Exclusions apply. Expires 12/31/2025
- Le loyer ne comprend pas les services publics, les frais immobiliers ou les services de l’immeuble.
- Entièrement aménagé comme Bureau standard
- Principalement open space
7555 Irvine Center Dr - 1er étage – Bureau 150
| Surface | 754 m² |
| Durée | Négociable |
| Loyer | 220,33 € /m²/an |
| Type de bien | Bureau |
| Aménagement | Construction achevée |
| Disponible | Maintenant |
Suite Description : $2/SF Broker Bonus for 5+ year lease deals & $1/SF Broker Bonus for 3+ year lease deals for NEW customers. Exclusions apply. Expires 12/31/2025
- Le loyer ne comprend pas les services publics, les frais immobiliers ou les services de l’immeuble.
- Entièrement aménagé comme Bureau standard
- Principalement open space
7575 Irvine Center Dr - 2e étage – Bureau 200
| Surface | 1 135 m² |
| Durée | Négociable |
| Loyer | 214,82 € /m²/an |
| Type de bien | Bureau |
| Aménagement | Construction achevée |
| Disponible | Maintenant |
Suite Description : $2/SF Broker Bonus for 5+ year lease deals & $1/SF Broker Bonus for 3+ year lease deals for NEW customers. Exclusions apply. Expires 12/31/2025
- Le loyer ne comprend pas les services publics, les frais immobiliers ou les services de l’immeuble.
- Entièrement aménagé comme Bureau standard
- Disposition open space
- Espace en excellent état
7575 Irvine Center Dr - 2e étage – Bureau 250
| Surface | 918 m² |
| Durée | Négociable |
| Loyer | 214,82 € /m²/an |
| Type de bien | Bureau |
| Aménagement | Construction achevée |
| Disponible | Maintenant |
Suite Description : $2/SF Broker Bonus for 5+ year lease deals & $1/SF Broker Bonus for 3+ year lease deals for NEW customers. Exclusions apply. Expires 12/31/2025
- Le loyer ne comprend pas les services publics, les frais immobiliers ou les services de l’immeuble.
- Entièrement aménagé comme Bureau standard
- Principalement open space
7505 Irvine Center Dr - 2e étage – Bureau 200
| Surface | 1 166 m² |
| Durée | Négociable |
| Loyer | 214,82 € /m²/an |
| Type de bien | Bureau |
| Aménagement | Construction achevée |
| Disponible | Maintenant |
Suite Description : $2/SF Broker Bonus for 5+ year lease deals & $1/SF Broker Bonus for 3+ year lease deals for NEW customers. Exclusions apply. Expires 12/31/2025 / This is a Flex Workspace+tm suite : Yes
- Le loyer ne comprend pas les services publics, les frais immobiliers ou les services de l’immeuble.
- Entièrement aménagé comme Bureau standard
- Principalement open space
- Espace en excellent état
7525 Irvine Center Dr - 2e étage – Bureau 250
| Surface | 1 440 m² |
| Durée | Négociable |
| Loyer | 214,82 € /m²/an |
| Type de bien | Bureau |
| Aménagement | Construction achevée |
| Disponible | Maintenant |
Suite Description : $2/SF Broker Bonus for 5+ year lease deals & $1/SF Broker Bonus for 3+ year lease deals for NEW customers. Exclusions apply. Expires 12/31/2025 / This is a Flex Workspace+tm suite : Yes
- Le loyer ne comprend pas les services publics, les frais immobiliers ou les services de l’immeuble.
- Entièrement aménagé comme Bureau standard
- Disposition open space
- Espace en excellent état
7585 Irvine Center Dr - 2e étage – Bureau 250
| Surface | 360 m² |
| Durée | Négociable |
| Loyer | 214,82 € /m²/an |
| Type de bien | Bureau |
| Aménagement | Construction achevée |
| Disponible | Maintenant |
Suite Description : $2/SF Broker Bonus for 5+ year lease deals & $1/SF Broker Bonus for 3+ year lease deals for NEW customers. Exclusions apply. Expires 12/31/2025
- Le loyer ne comprend pas les services publics, les frais immobiliers ou les services de l’immeuble.
- Entièrement aménagé comme Bureau standard
- Principalement open space
7535 Irvine Center Dr - 2e étage – Bureau 250
| Surface | 1 634 m² |
| Durée | Négociable |
| Loyer | 220,33 € /m²/an |
| Type de bien | Bureau |
| Aménagement | - |
| Disponible | 01/05/2026 |
- Le loyer ne comprend pas les services publics, les frais immobiliers ou les services de l’immeuble.
Vue d’ensemble du parc
Redéfinissez l'efficacité au centre d'affaires d'Irvine. Proche de tout, mais loin d'être standard, cet ensemble de 10 immeubles de bureaux de deux étages situés dans un environnement dynamique de type campus se trouve à quelques minutes de l'Irvine Spectrum Center®. Vos invités apprécieront le confort du Courtyard Marriott situé à proximité, tandis que l'accès aux routes à péage 5, 405, 133 et 241 facilite les déplacements domicile-travail afin d'attirer les meilleurs talents. À The Commons, l'espace de travail extérieur dynamique du centre d'affaires d'Irvine, vos équipes découvriront la productivité au-delà du bureau quotidien. Doté de plans d'étage flexibles qui donnent vie à votre espace de travail idéal, le centre d'affaires Irvine possède tout ce dont votre entreprise a besoin pour redéfinir l'efficacité.
- Signalisation
Présenté par
Irvine Business Center | Irvine, CA 92618
Hum, une erreur s’est produite lors de l’envoi de votre message. Veuillez réessayer.
Merci ! Votre message a été envoyé.


































