Votre e-mail a été envoyé.
Certaines informations ont été traduites automatiquement.
Informations principales
- Medical office spaces for lease, available at a promotional rate of $1.65 per square foot per month for the first year.
- Hospital Drive Medical Building is a coveted multi-tenant office destination with abundant parking and various turnkey spaces.
- Build synergy with neighboring healthcare professionals at Methodist Hospital, Sierra Vista Hospital, and Kaiser Permanente.
- Experience easy access to Highway 99 and nearby amenities such as Costco Wholesale, Target, Starbucks, and Dutch Bros Coffee.
Tous les espaces disponibles(8)
Afficher les loyers en
- Espace
- Surface
- Durée
- Loyer
- Type de bien
- Aménagement
- Disponible
Medical office spaces for lease in a busy multi-tenant medical office building. This suite has approximately 2,900 rentable square feet of medical-related space with direct exterior access and signage.
- Entièrement aménagé comme Cabinet médical standard
- Laboratoire
- Convient pour 8 à 24 personnes
- Signalisation
Medical office space for lease in a busy multi-tenant medical office building.
- Il est possible que le loyer annoncé ne comprenne pas certains services publics, services d’immeuble et frais immobiliers.
- Principalement open space
- Entièrement aménagé comme Cabinet médical standard
- TI négociable
Standard office space is available now, move-in ready, with a break room, storage, and waiting area included.
- Il est possible que le loyer annoncé ne comprenne pas certains services publics, services d’immeuble et frais immobiliers.
- Principalement open space
- 2 bureaux privés
- Toilettes privées
- Entièrement aménagé comme Bureau standard
- Convient pour 3 à 8 personnes
- Peut être associé à un ou plusieurs espaces supplémentaires pour obtenir jusqu’à 676 m² d’espace adjacent.
- Prêt à emménager
Medical office space for lease in a busy multi-tenant medical office building. This space has four exam rooms and two offices.
- Il est possible que le loyer annoncé ne comprenne pas certains services publics, services d’immeuble et frais immobiliers.
- Principalement open space
- 2 bureaux privés
- Aire de réception
- Entièrement aménagé comme Cabinet médical standard
- Convient pour 5 à 15 personnes
- Peut être associé à un ou plusieurs espaces supplémentaires pour obtenir jusqu’à 676 m² d’espace adjacent.
- Salle d'attente
Medical office space for lease in a busy multi-tenant medical office building. This space has multiple exam rooms, offices, and therapy rooms.
- Il est possible que le loyer annoncé ne comprenne pas certains services publics, services d’immeuble et frais immobiliers.
- Principalement open space
- Aire de réception
- Zone d'attente
- Entièrement aménagé comme Cabinet médical standard
- Peut être associé à un ou plusieurs espaces supplémentaires pour obtenir jusqu’à 676 m² d’espace adjacent.
- Salle de pause
Medical office space for lease in a busy multi-tenant medical office building.
- Il est possible que le loyer annoncé ne comprenne pas certains services publics, services d’immeuble et frais immobiliers.
- Principalement open space
- 4 bureaux privés
- Aire de réception
- salle de pause
- Entièrement aménagé comme Espace de santé
- Convient pour 4 à 11 personnes
- Peut être associé à un ou plusieurs espaces supplémentaires pour obtenir jusqu’à 676 m² d’espace adjacent.
- prêt à emménager
- Salle d'attente.
Medical office space for lease in a busy multi-tenant medical office building. This space has exam rooms, private offices, a reception area, and a waiting room.
- Il est possible que le loyer annoncé ne comprenne pas certains services publics, services d’immeuble et frais immobiliers.
- Principalement open space
- Toilettes privées
- Entièrement aménagé comme Cabinet médical standard
- Peut être associé à un ou plusieurs espaces supplémentaires pour obtenir jusqu’à 676 m² d’espace adjacent.
- Zone d'attente
Standard office space for lease in a busy multi-tenant medical office building.
- Il est possible que le loyer annoncé ne comprenne pas certains services publics, services d’immeuble et frais immobiliers.
- Convient pour 1 à 3 personnes
- Peut être associé à un ou plusieurs espaces supplémentaires pour obtenir jusqu’à 676 m² d’espace adjacent.
- Entièrement aménagé comme Bureau standard
- 1 bureau privé
- Petit bureau privé
| Espace | Surface | Durée | Loyer | Type de bien | Aménagement | Disponible |
| 1er étage, bureau 103 | 269 m² | 1-15 Ans | Sur demande Sur demande Sur demande Sur demande | Bureaux/Médical | Construction achevée | Maintenant |
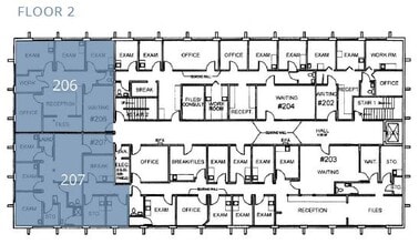
| 2e étage, bureau 207 | 131 m² | 1-10 Ans | 203,81 € /m²/an 16,98 € /m²/mois 26 641 € /an 2 220 € /mois | Médical | Construction achevée | Maintenant |
| 3e étage, bureau 301 | 90 m² | Négociable | 203,81 € /m²/an 16,98 € /m²/mois 18 423 € /an 1 535 € /mois | Bureau | Construction achevée | Maintenant |
| 3e étage, bureau 303 | 172 m² | Négociable | 203,81 € /m²/an 16,98 € /m²/mois 35 104 € /an 2 925 € /mois | Bureaux/Médical | Construction achevée | Maintenant |
| 3e étage, bureau 304 | 155 m² | 1-10 Ans | 203,81 € /m²/an 16,98 € /m²/mois 31 620 € /an 2 635 € /mois | Médical | Construction achevée | Maintenant |
| 3e étage, bureau 305A | 121 m² | Négociable | 203,81 € /m²/an 16,98 € /m²/mois 24 653 € /an 2 054 € /mois | Bureaux/Médical | Construction achevée | Maintenant |
| 3e étage, bureau 305B | 106 m² | 1-10 Ans | 203,81 € /m²/an 16,98 € /m²/mois 21 509 € /an 1 792 € /mois | Médical | Construction achevée | Maintenant |
| 3e étage, bureau 307 | 32 m² | 1-3 Ans | 203,81 € /m²/an 16,98 € /m²/mois 6 513 € /an 542,79 € /mois | Bureau | Construction achevée | Maintenant |
1er étage, bureau 103
| Surface |
| 269 m² |
| Durée |
| 1-15 Ans |
| Loyer |
| Sur demande Sur demande Sur demande Sur demande |
| Type de bien |
| Bureaux/Médical |
| Aménagement |
| Construction achevée |
| Disponible |
| Maintenant |
2e étage, bureau 207
| Surface |
| 131 m² |
| Durée |
| 1-10 Ans |
| Loyer |
| 203,81 € /m²/an 16,98 € /m²/mois 26 641 € /an 2 220 € /mois |
| Type de bien |
| Médical |
| Aménagement |
| Construction achevée |
| Disponible |
| Maintenant |
3e étage, bureau 301
| Surface |
| 90 m² |
| Durée |
| Négociable |
| Loyer |
| 203,81 € /m²/an 16,98 € /m²/mois 18 423 € /an 1 535 € /mois |
| Type de bien |
| Bureau |
| Aménagement |
| Construction achevée |
| Disponible |
| Maintenant |
3e étage, bureau 303
| Surface |
| 172 m² |
| Durée |
| Négociable |
| Loyer |
| 203,81 € /m²/an 16,98 € /m²/mois 35 104 € /an 2 925 € /mois |
| Type de bien |
| Bureaux/Médical |
| Aménagement |
| Construction achevée |
| Disponible |
| Maintenant |
3e étage, bureau 304
| Surface |
| 155 m² |
| Durée |
| 1-10 Ans |
| Loyer |
| 203,81 € /m²/an 16,98 € /m²/mois 31 620 € /an 2 635 € /mois |
| Type de bien |
| Médical |
| Aménagement |
| Construction achevée |
| Disponible |
| Maintenant |
3e étage, bureau 305A
| Surface |
| 121 m² |
| Durée |
| Négociable |
| Loyer |
| 203,81 € /m²/an 16,98 € /m²/mois 24 653 € /an 2 054 € /mois |
| Type de bien |
| Bureaux/Médical |
| Aménagement |
| Construction achevée |
| Disponible |
| Maintenant |
3e étage, bureau 305B
| Surface |
| 106 m² |
| Durée |
| 1-10 Ans |
| Loyer |
| 203,81 € /m²/an 16,98 € /m²/mois 21 509 € /an 1 792 € /mois |
| Type de bien |
| Médical |
| Aménagement |
| Construction achevée |
| Disponible |
| Maintenant |
3e étage, bureau 307
| Surface |
| 32 m² |
| Durée |
| 1-3 Ans |
| Loyer |
| 203,81 € /m²/an 16,98 € /m²/mois 6 513 € /an 542,79 € /mois |
| Type de bien |
| Bureau |
| Aménagement |
| Construction achevée |
| Disponible |
| Maintenant |
1er étage, bureau 103
| Surface | 269 m² |
| Durée | 1-15 Ans |
| Loyer | Sur demande |
| Type de bien | Bureaux/Médical |
| Aménagement | Construction achevée |
| Disponible | Maintenant |
Medical office spaces for lease in a busy multi-tenant medical office building. This suite has approximately 2,900 rentable square feet of medical-related space with direct exterior access and signage.
- Entièrement aménagé comme Cabinet médical standard
- Convient pour 8 à 24 personnes
- Laboratoire
- Signalisation
2e étage, bureau 207
| Surface | 131 m² |
| Durée | 1-10 Ans |
| Loyer | 203,81 € /m²/an |
| Type de bien | Médical |
| Aménagement | Construction achevée |
| Disponible | Maintenant |
Medical office space for lease in a busy multi-tenant medical office building.
- Il est possible que le loyer annoncé ne comprenne pas certains services publics, services d’immeuble et frais immobiliers.
- Entièrement aménagé comme Cabinet médical standard
- Principalement open space
- TI négociable
3e étage, bureau 301
| Surface | 90 m² |
| Durée | Négociable |
| Loyer | 203,81 € /m²/an |
| Type de bien | Bureau |
| Aménagement | Construction achevée |
| Disponible | Maintenant |
Standard office space is available now, move-in ready, with a break room, storage, and waiting area included.
- Il est possible que le loyer annoncé ne comprenne pas certains services publics, services d’immeuble et frais immobiliers.
- Entièrement aménagé comme Bureau standard
- Principalement open space
- Convient pour 3 à 8 personnes
- 2 bureaux privés
- Peut être associé à un ou plusieurs espaces supplémentaires pour obtenir jusqu’à 676 m² d’espace adjacent.
- Toilettes privées
- Prêt à emménager
3e étage, bureau 303
| Surface | 172 m² |
| Durée | Négociable |
| Loyer | 203,81 € /m²/an |
| Type de bien | Bureaux/Médical |
| Aménagement | Construction achevée |
| Disponible | Maintenant |
Medical office space for lease in a busy multi-tenant medical office building. This space has four exam rooms and two offices.
- Il est possible que le loyer annoncé ne comprenne pas certains services publics, services d’immeuble et frais immobiliers.
- Entièrement aménagé comme Cabinet médical standard
- Principalement open space
- Convient pour 5 à 15 personnes
- 2 bureaux privés
- Peut être associé à un ou plusieurs espaces supplémentaires pour obtenir jusqu’à 676 m² d’espace adjacent.
- Aire de réception
- Salle d'attente
3e étage, bureau 304
| Surface | 155 m² |
| Durée | 1-10 Ans |
| Loyer | 203,81 € /m²/an |
| Type de bien | Médical |
| Aménagement | Construction achevée |
| Disponible | Maintenant |
Medical office space for lease in a busy multi-tenant medical office building. This space has multiple exam rooms, offices, and therapy rooms.
- Il est possible que le loyer annoncé ne comprenne pas certains services publics, services d’immeuble et frais immobiliers.
- Entièrement aménagé comme Cabinet médical standard
- Principalement open space
- Peut être associé à un ou plusieurs espaces supplémentaires pour obtenir jusqu’à 676 m² d’espace adjacent.
- Aire de réception
- Salle de pause
- Zone d'attente
3e étage, bureau 305A
| Surface | 121 m² |
| Durée | Négociable |
| Loyer | 203,81 € /m²/an |
| Type de bien | Bureaux/Médical |
| Aménagement | Construction achevée |
| Disponible | Maintenant |
Medical office space for lease in a busy multi-tenant medical office building.
- Il est possible que le loyer annoncé ne comprenne pas certains services publics, services d’immeuble et frais immobiliers.
- Entièrement aménagé comme Espace de santé
- Principalement open space
- Convient pour 4 à 11 personnes
- 4 bureaux privés
- Peut être associé à un ou plusieurs espaces supplémentaires pour obtenir jusqu’à 676 m² d’espace adjacent.
- Aire de réception
- prêt à emménager
- salle de pause
- Salle d'attente.
3e étage, bureau 305B
| Surface | 106 m² |
| Durée | 1-10 Ans |
| Loyer | 203,81 € /m²/an |
| Type de bien | Médical |
| Aménagement | Construction achevée |
| Disponible | Maintenant |
Medical office space for lease in a busy multi-tenant medical office building. This space has exam rooms, private offices, a reception area, and a waiting room.
- Il est possible que le loyer annoncé ne comprenne pas certains services publics, services d’immeuble et frais immobiliers.
- Entièrement aménagé comme Cabinet médical standard
- Principalement open space
- Peut être associé à un ou plusieurs espaces supplémentaires pour obtenir jusqu’à 676 m² d’espace adjacent.
- Toilettes privées
- Zone d'attente
3e étage, bureau 307
| Surface | 32 m² |
| Durée | 1-3 Ans |
| Loyer | 203,81 € /m²/an |
| Type de bien | Bureau |
| Aménagement | Construction achevée |
| Disponible | Maintenant |
Standard office space for lease in a busy multi-tenant medical office building.
- Il est possible que le loyer annoncé ne comprenne pas certains services publics, services d’immeuble et frais immobiliers.
- Entièrement aménagé comme Bureau standard
- Convient pour 1 à 3 personnes
- 1 bureau privé
- Peut être associé à un ou plusieurs espaces supplémentaires pour obtenir jusqu’à 676 m² d’espace adjacent.
- Petit bureau privé
Visite 3D Matterport
Aperçu du bien
Bureau médical très fréquenté et immeuble de bureaux professionnels offrant un accès pratique à l'autoroute 99. Espaces médicaux et dentaires disponibles ; certains sont prêts à emménager.
Informations sur l’immeuble
Présenté par
Hospital Drive Medical Building | 7501 Hospital Dr
Hum, une erreur s’est produite lors de l’envoi de votre message. Veuillez réessayer.
Merci ! Votre message a été envoyé.










