Votre e-mail a été envoyé.
Certaines informations ont été traduites automatiquement.
Informations principales
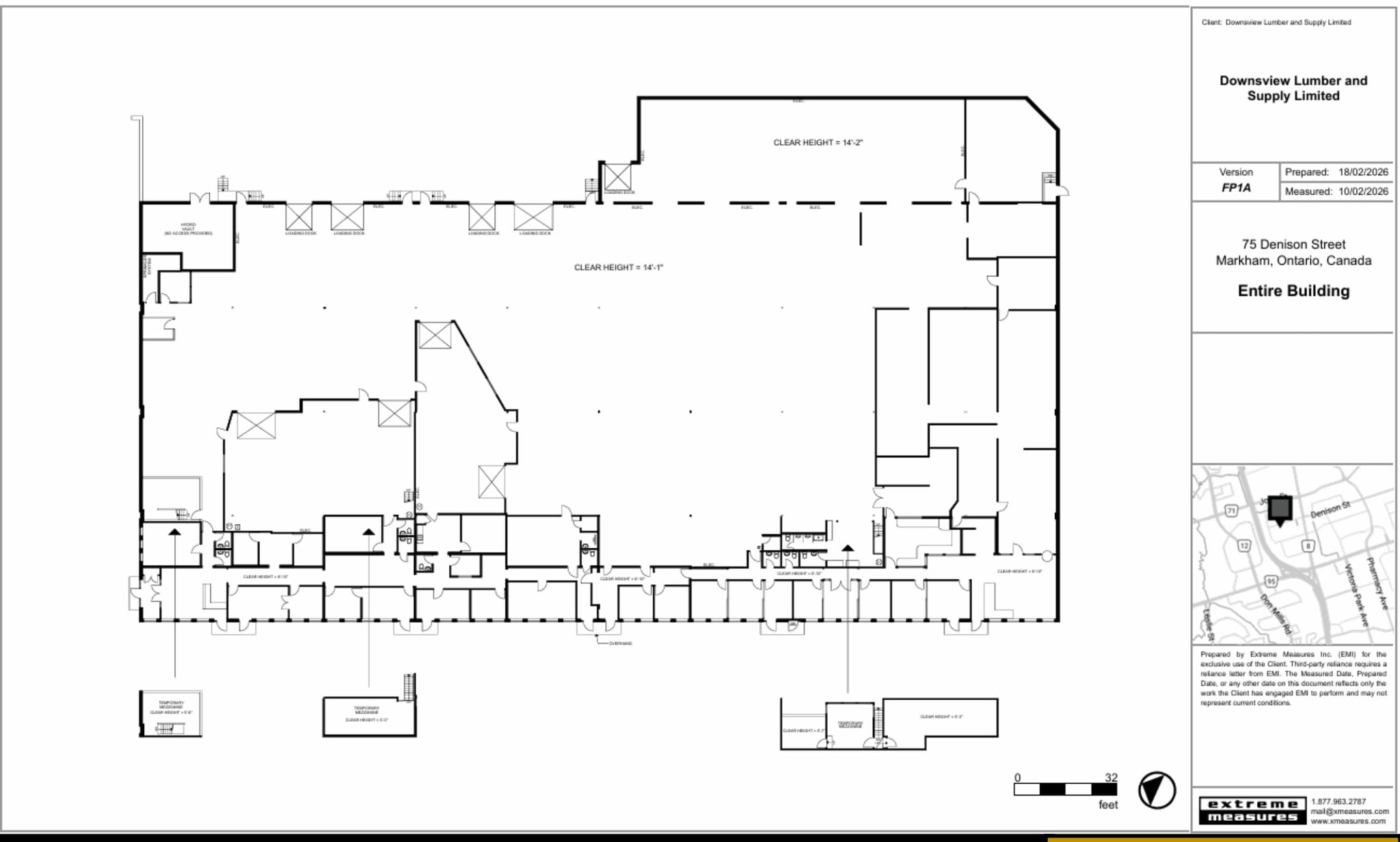
- 41,424 square feet of industrial space with approximately 20% office area.
- Equipped with 1600-amp heavy power supply to support high electrical loads.
- Convenient access to Highway 404 and major arterial roads in Markham.
- EMP-GE zoning allows for multiple permitted uses, including industrial and office.
- Five truck-level shipping doors for efficient loading and distribution.
- Ample on-site parking and potential for space demising to meet tenant needs.
Caractéristiques
Tous les espace disponibles(1)
Afficher les loyers en
- Espace
- Surface
- Durée
- Loyer
- Type de bien
- Aménagement
- Disponible
This industrial facility at 75 Denison Street offers 41,424 square feet of functional space in a well-established Markham business district. The property features approximately 20% office build-out, providing a balanced layout for administrative and operational needs. With a clear height of 14 feet and five truck-level shipping doors, the building is designed to accommodate a range of industrial uses, including manufacturing, distribution, and light assembly. The site benefits from EMP-GE zoning, which permits industrial, office, film studio, retail, and service uses, offering flexibility for diverse business operations. A 1600-amp heavy power supply supports high-demand equipment, while ample on-site parking enhances accessibility for staff and visitors. The property can be demised to suit tenant requirements, providing adaptability for various space needs. Located near major transportation routes, including Highway 404 and Steeles Avenue, the property ensures efficient connectivity to the Greater Toronto Area. The surrounding area is home to a strong mix of industrial and commercial users, creating a supportive business environment. Possession is anticipated for July 2026, making this an excellent opportunity for companies planning future expansion or relocation.
- Le loyer ne comprend pas les services publics, les frais immobiliers ou les services de l’immeuble.
- 5 quais de chargement
- Comprend 770 m² d’espace de bureau dédié
| Espace | Surface | Durée | Loyer | Type de bien | Aménagement | Disponible |
| 1er étage | 3 848 m² | 1-10 Ans | 114,00 € /m²/an 9,50 € /m²/mois 438 734 € /an 36 561 € /mois | Industriel/Logistique | Construction achevée | 01/07/2026 |
1er étage
| Surface |
| 3 848 m² |
| Durée |
| 1-10 Ans |
| Loyer |
| 114,00 € /m²/an 9,50 € /m²/mois 438 734 € /an 36 561 € /mois |
| Type de bien |
| Industriel/Logistique |
| Aménagement |
| Construction achevée |
| Disponible |
| 01/07/2026 |
1er étage
| Surface | 3 848 m² |
| Durée | 1-10 Ans |
| Loyer | 114,00 € /m²/an |
| Type de bien | Industriel/Logistique |
| Aménagement | Construction achevée |
| Disponible | 01/07/2026 |
This industrial facility at 75 Denison Street offers 41,424 square feet of functional space in a well-established Markham business district. The property features approximately 20% office build-out, providing a balanced layout for administrative and operational needs. With a clear height of 14 feet and five truck-level shipping doors, the building is designed to accommodate a range of industrial uses, including manufacturing, distribution, and light assembly. The site benefits from EMP-GE zoning, which permits industrial, office, film studio, retail, and service uses, offering flexibility for diverse business operations. A 1600-amp heavy power supply supports high-demand equipment, while ample on-site parking enhances accessibility for staff and visitors. The property can be demised to suit tenant requirements, providing adaptability for various space needs. Located near major transportation routes, including Highway 404 and Steeles Avenue, the property ensures efficient connectivity to the Greater Toronto Area. The surrounding area is home to a strong mix of industrial and commercial users, creating a supportive business environment. Possession is anticipated for July 2026, making this an excellent opportunity for companies planning future expansion or relocation.
- Le loyer ne comprend pas les services publics, les frais immobiliers ou les services de l’immeuble.
- Comprend 770 m² d’espace de bureau dédié
- 5 quais de chargement
Aperçu du bien
The property at 75 Denison Street in Markham is an industrial building with an office component totaling 41,424 square feet. It has a clear height of 14 feet and five truck-level loading doors. The site is zoned EMP-GE, which permits a range of industrial and commercial uses. The building includes a 1600-amp power supply and on-site parking. The location is in proximity to Highway 404 and Steeles Avenue, providing regional connectivity.
Faits sur l’installation service
Occupants
- Étage
- Nom de l’occupant
- Secteur d’activité
- 1er
- Middleton Group
- Manufacture
Présenté par
75 Denison St
Hum, une erreur s’est produite lors de l’envoi de votre message. Veuillez réessayer.
Merci ! Votre message a été envoyé.






