Votre e-mail a été envoyé.
Turnkey Medical or Office Campus Opportunity 7400 Helen Of Troy Bureaux/Médical | 167–1 338 m² | 4 étoiles | À louer | El Paso, TX 79911



Certaines informations ont été traduites automatiquement.
Informations principales
- Turnkey campus for medical or office use
- Single-user campus opportunity
- Strong power, data, and infrastructure
- Approx. 14,400 SF across two buildings
- Flexible layout with conversion potential
- Located near Paseo Del Norte and Resler near Cimarron Community
Tous les espaces disponibles(4)
Afficher les loyers en
- Espace
- Surface
- Durée
- Loyer
- Type de bien
- Aménagement
- Disponible
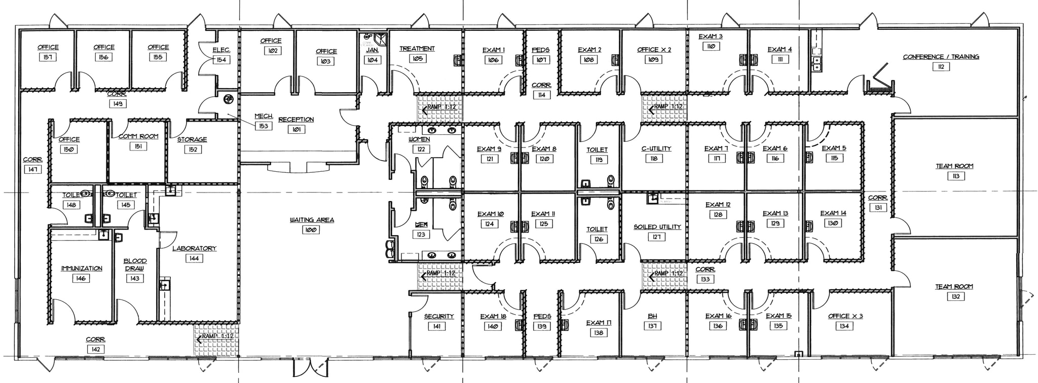
Building A consists of approximately 10,800 SF of fully built-out Class A space originally designed for clinical operations. The layout includes multiple private rooms, laboratory or support areas, offices, conference and training space, large reception and waiting area, storage, and multiple restrooms. The existing configuration supports immediate medical use while also offering a highly adaptable framework for professional office, administrative headquarters, or back-office operations. Rooms were designed with modularity in mind, allowing for efficient reconfiguration without extensive reconstruction.
- Le loyer ne comprend pas les services publics, les frais immobiliers ou les services de l’immeuble.
- Convient pour 12 à 39 personnes
- 1 salle de conférence
- Espace en excellent état
- Laboratoire
- Ventilation et chauffage centraux
- CVC disponible en-dehors des heures ouvrables
- Private rooms and open support areas
- Large reception or lobby area
- Ready for medical or office use
- Entièrement aménagé comme Cabinet médical standard
- 9 bureaux privés
- 1 poste de travail
- Peut être associé à un ou plusieurs espaces supplémentaires pour obtenir jusqu’à 1 003 m² d’espace adjacent.
- Aire de réception
- Lumière naturelle
- Turnkey Class A buildout
- Conference and training spaces
- Efficient and adaptable layout
Building A consists of approximately 10,800 SF of fully built-out Class A space originally designed for clinical operations. The layout includes multiple private rooms, laboratory or support areas, offices, conference and training space, large reception and waiting area, storage, and multiple restrooms. The existing configuration supports immediate medical use while also offering a highly adaptable framework for professional office, administrative headquarters, or back-office operations. Rooms were designed with modularity in mind, allowing for efficient reconfiguration without extensive reconstruction.
- Le loyer ne comprend pas les services publics, les frais immobiliers ou les services de l’immeuble.
- Convient pour 15 à 48 personnes
- 1 salle de conférence
- Espace en excellent état
- Laboratoire
- Ventilation et chauffage centraux
- CVC disponible en-dehors des heures ouvrables
- Private rooms and open support areas
- Large reception or lobby area
- Ready for medical or office use
- Entièrement aménagé comme Cabinet médical standard
- 20 bureaux privés
- 3 postes de travail
- Peut être associé à un ou plusieurs espaces supplémentaires pour obtenir jusqu’à 1 003 m² d’espace adjacent.
- Aire de réception
- Lumière naturelle
- Turnkey Class A buildout
- Conference and training spaces
- Efficient and adaptable layout
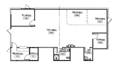
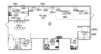
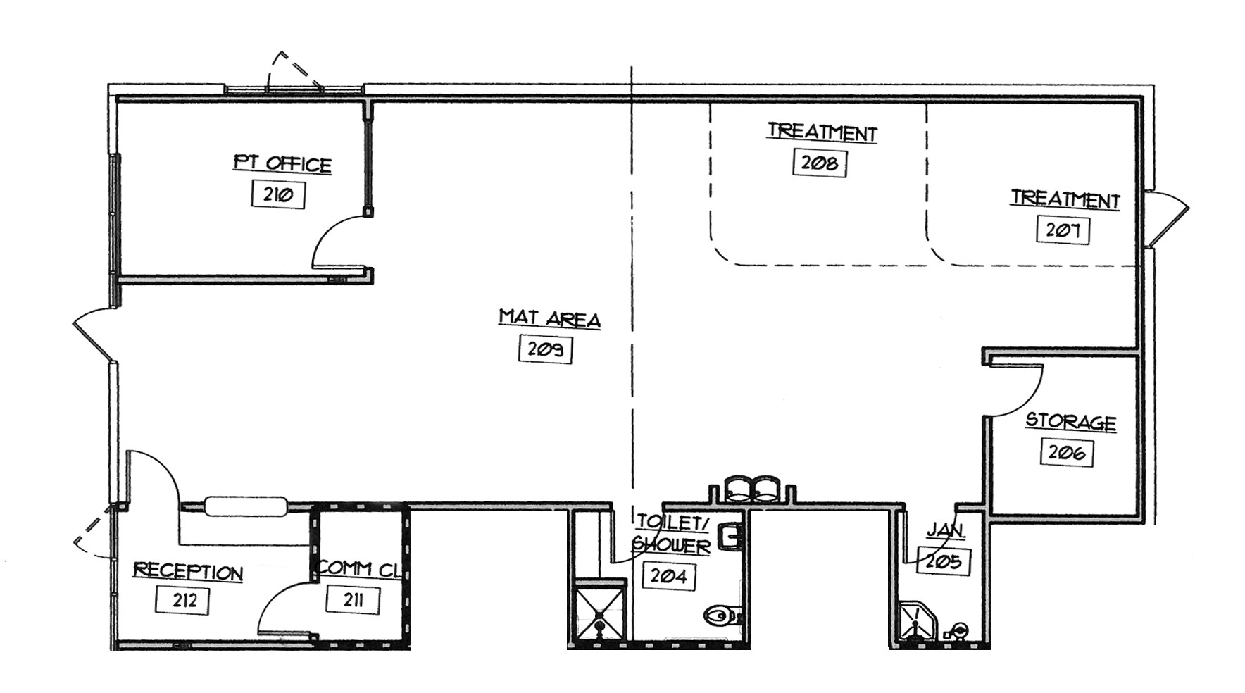
Suite 1 in Building B features a flexible layout totaling approximately 1,800 SF and was originally built out for physical therapy use. The space includes a reception area, private office, large open area, storage, and a restroom with shower. The open configuration allows for continued therapy or wellness use, collaborative office space, training functions, or other professional operations requiring open floor area. This suite functions well as a complementary component within a larger campus environment.
- Le loyer ne comprend pas les services publics, les frais immobiliers ou les services de l’immeuble.
- Principalement open space
- 1 bureau privé
- Peut être associé à un ou plusieurs espaces supplémentaires pour obtenir jusqu’à 334 m² d’espace adjacent.
- Open-plan flexible layout
- Large open work or treatment area
- Adaptable for medical or office use
- Entièrement aménagé comme Espace pour physiothérapie
- Convient pour 5 à 15 personnes
- Espace en excellent état
- Douches
- Reception and private office
- Restroom with shower
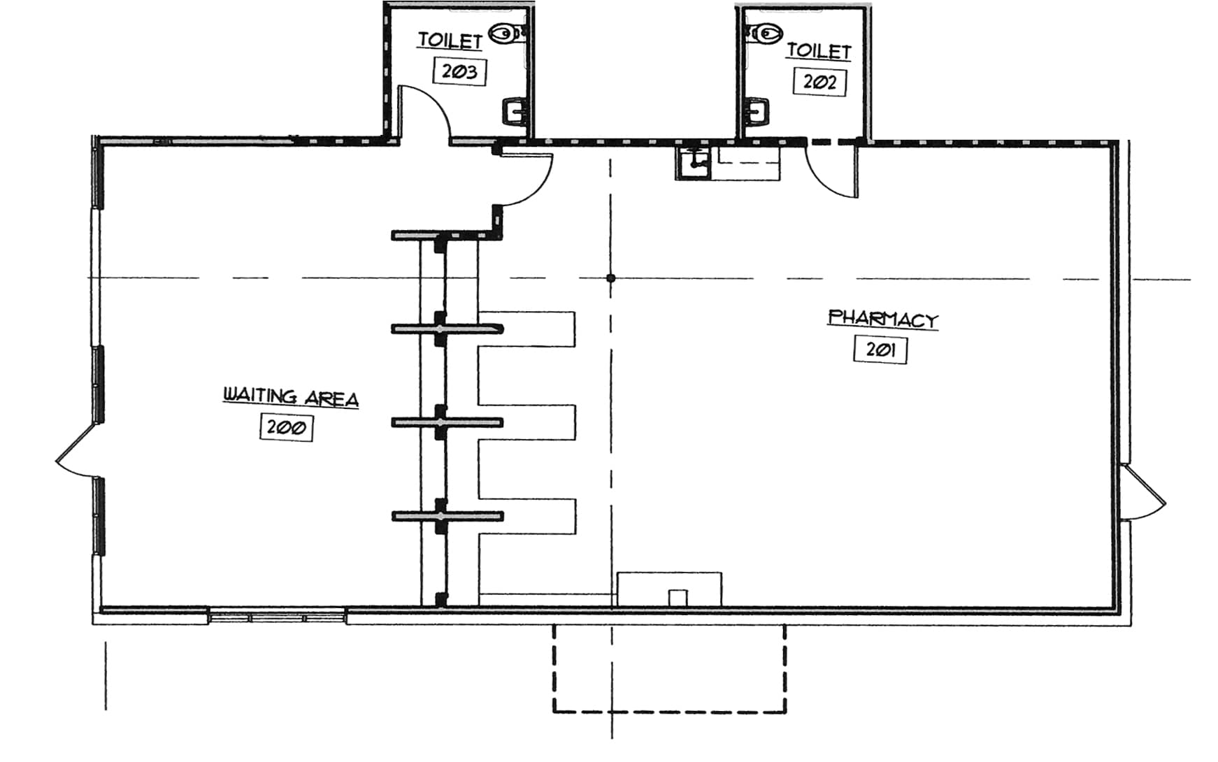
Suite 2 in Building B is built out with controlled access features and a functional front-facing layout. The space includes a waiting area, secured access points, multiple service windows, separate staff restroom, and a large open work area with dedicated climate controls. While originally configured for pharmacy operations, the layout lends itself to a range of professional uses including administrative services, secure operations, or client-facing business functions that benefit from separation of public and staff areas.
- Le loyer ne comprend pas les services publics, les frais immobiliers ou les services de l’immeuble.
- Convient pour 5 à 15 personnes
- Peut être associé à un ou plusieurs espaces supplémentaires pour obtenir jusqu’à 334 m² d’espace adjacent.
- Front-facing service or reception area
- Separate staff facilities
- Disposition open space
- Espace en excellent état
- Secure access-controlled layout
- Large open operations space
- Suitable for medical or office users
| Espace | Surface | Durée | Loyer | Type de bien | Aménagement | Disponible |
| 1er étage, bureau Bldg A - Suite 1 | 446 m² | Négociable | Sur demande Sur demande Sur demande Sur demande | Bureaux/Médical | Construction achevée | Maintenant |
| 1er étage, bureau Bldg A - Suite 2 | 557 m² | Négociable | Sur demande Sur demande Sur demande Sur demande | Bureaux/Médical | Construction achevée | Maintenant |
| 1er étage, bureau Bldg B - Suite 1 | 167 m² | Négociable | Sur demande Sur demande Sur demande Sur demande | Bureaux/Médical | Construction achevée | Maintenant |
| 1er étage, bureau Bldg B - Suite 2 | 167 m² | Négociable | Sur demande Sur demande Sur demande Sur demande | Bureaux/Médical | Construction achevée | Maintenant |
1er étage, bureau Bldg A - Suite 1
| Surface |
| 446 m² |
| Durée |
| Négociable |
| Loyer |
| Sur demande Sur demande Sur demande Sur demande |
| Type de bien |
| Bureaux/Médical |
| Aménagement |
| Construction achevée |
| Disponible |
| Maintenant |
1er étage, bureau Bldg A - Suite 2
| Surface |
| 557 m² |
| Durée |
| Négociable |
| Loyer |
| Sur demande Sur demande Sur demande Sur demande |
| Type de bien |
| Bureaux/Médical |
| Aménagement |
| Construction achevée |
| Disponible |
| Maintenant |
1er étage, bureau Bldg B - Suite 1
| Surface |
| 167 m² |
| Durée |
| Négociable |
| Loyer |
| Sur demande Sur demande Sur demande Sur demande |
| Type de bien |
| Bureaux/Médical |
| Aménagement |
| Construction achevée |
| Disponible |
| Maintenant |
1er étage, bureau Bldg B - Suite 2
| Surface |
| 167 m² |
| Durée |
| Négociable |
| Loyer |
| Sur demande Sur demande Sur demande Sur demande |
| Type de bien |
| Bureaux/Médical |
| Aménagement |
| Construction achevée |
| Disponible |
| Maintenant |
1er étage, bureau Bldg A - Suite 1
| Surface | 446 m² |
| Durée | Négociable |
| Loyer | Sur demande |
| Type de bien | Bureaux/Médical |
| Aménagement | Construction achevée |
| Disponible | Maintenant |
Building A consists of approximately 10,800 SF of fully built-out Class A space originally designed for clinical operations. The layout includes multiple private rooms, laboratory or support areas, offices, conference and training space, large reception and waiting area, storage, and multiple restrooms. The existing configuration supports immediate medical use while also offering a highly adaptable framework for professional office, administrative headquarters, or back-office operations. Rooms were designed with modularity in mind, allowing for efficient reconfiguration without extensive reconstruction.
- Le loyer ne comprend pas les services publics, les frais immobiliers ou les services de l’immeuble.
- Entièrement aménagé comme Cabinet médical standard
- Convient pour 12 à 39 personnes
- 9 bureaux privés
- 1 salle de conférence
- 1 poste de travail
- Espace en excellent état
- Peut être associé à un ou plusieurs espaces supplémentaires pour obtenir jusqu’à 1 003 m² d’espace adjacent.
- Laboratoire
- Aire de réception
- Ventilation et chauffage centraux
- Lumière naturelle
- CVC disponible en-dehors des heures ouvrables
- Turnkey Class A buildout
- Private rooms and open support areas
- Conference and training spaces
- Large reception or lobby area
- Efficient and adaptable layout
- Ready for medical or office use
1er étage, bureau Bldg A - Suite 2
| Surface | 557 m² |
| Durée | Négociable |
| Loyer | Sur demande |
| Type de bien | Bureaux/Médical |
| Aménagement | Construction achevée |
| Disponible | Maintenant |
Building A consists of approximately 10,800 SF of fully built-out Class A space originally designed for clinical operations. The layout includes multiple private rooms, laboratory or support areas, offices, conference and training space, large reception and waiting area, storage, and multiple restrooms. The existing configuration supports immediate medical use while also offering a highly adaptable framework for professional office, administrative headquarters, or back-office operations. Rooms were designed with modularity in mind, allowing for efficient reconfiguration without extensive reconstruction.
- Le loyer ne comprend pas les services publics, les frais immobiliers ou les services de l’immeuble.
- Entièrement aménagé comme Cabinet médical standard
- Convient pour 15 à 48 personnes
- 20 bureaux privés
- 1 salle de conférence
- 3 postes de travail
- Espace en excellent état
- Peut être associé à un ou plusieurs espaces supplémentaires pour obtenir jusqu’à 1 003 m² d’espace adjacent.
- Laboratoire
- Aire de réception
- Ventilation et chauffage centraux
- Lumière naturelle
- CVC disponible en-dehors des heures ouvrables
- Turnkey Class A buildout
- Private rooms and open support areas
- Conference and training spaces
- Large reception or lobby area
- Efficient and adaptable layout
- Ready for medical or office use
1er étage, bureau Bldg B - Suite 1
| Surface | 167 m² |
| Durée | Négociable |
| Loyer | Sur demande |
| Type de bien | Bureaux/Médical |
| Aménagement | Construction achevée |
| Disponible | Maintenant |
Suite 1 in Building B features a flexible layout totaling approximately 1,800 SF and was originally built out for physical therapy use. The space includes a reception area, private office, large open area, storage, and a restroom with shower. The open configuration allows for continued therapy or wellness use, collaborative office space, training functions, or other professional operations requiring open floor area. This suite functions well as a complementary component within a larger campus environment.
- Le loyer ne comprend pas les services publics, les frais immobiliers ou les services de l’immeuble.
- Entièrement aménagé comme Espace pour physiothérapie
- Principalement open space
- Convient pour 5 à 15 personnes
- 1 bureau privé
- Espace en excellent état
- Peut être associé à un ou plusieurs espaces supplémentaires pour obtenir jusqu’à 334 m² d’espace adjacent.
- Douches
- Open-plan flexible layout
- Reception and private office
- Large open work or treatment area
- Restroom with shower
- Adaptable for medical or office use
1er étage, bureau Bldg B - Suite 2
| Surface | 167 m² |
| Durée | Négociable |
| Loyer | Sur demande |
| Type de bien | Bureaux/Médical |
| Aménagement | Construction achevée |
| Disponible | Maintenant |
Suite 2 in Building B is built out with controlled access features and a functional front-facing layout. The space includes a waiting area, secured access points, multiple service windows, separate staff restroom, and a large open work area with dedicated climate controls. While originally configured for pharmacy operations, the layout lends itself to a range of professional uses including administrative services, secure operations, or client-facing business functions that benefit from separation of public and staff areas.
- Le loyer ne comprend pas les services publics, les frais immobiliers ou les services de l’immeuble.
- Disposition open space
- Convient pour 5 à 15 personnes
- Espace en excellent état
- Peut être associé à un ou plusieurs espaces supplémentaires pour obtenir jusqu’à 334 m² d’espace adjacent.
- Secure access-controlled layout
- Front-facing service or reception area
- Large open operations space
- Separate staff facilities
- Suitable for medical or office users
Aperçu du bien
7400 Helen of Troy Drive offers a rare opportunity to lease a fully built-out Class A campus suitable for both medical and professional office users in West El Paso. Comprising approximately 14,400 square feet across two buildings, the property supports single-user campus occupancy and is currently configured for immediate medical use while maintaining clear conversion potential to a Class A professional office environment. The existing layout includes exam-size rooms, administrative areas, open workspaces, conference rooms, and support spaces, allowing healthcare users to occupy with minimal downtime and professional office users to efficiently adapt the space to corporate, operations, or headquarters functions. The campus design provides separation of uses while maintaining cohesive connectivity across both buildings. Located near the rapidly expanding Paseo Del Norte and Resler corridor, the property benefits from strong accessibility, nearby amenities, and a professional setting well suited for client-facing or employee-focused operations. This is a unique opportunity to secure a turnkey campus with flexibility that serves both immediate needs and long-term business growth.
Informations sur l’immeuble
Présenté par
Turnkey Medical or Office Campus Opportunity | 7400 Helen Of Troy
Hum, une erreur s’est produite lors de l’envoi de votre message. Veuillez réessayer.
Merci ! Votre message a été envoyé.









