Votre e-mail a été envoyé.
Certaines informations ont été traduites automatiquement.
Informations principales
- Elegant, wide storefront with exceptional visibility and refined architectural details — a perfect setting for elevated brand experiences.
- Central location surrounded by national retailers with excellent visibility from Westfield’s main signalized intersection
- Prominent location in one of Northern New Jersey’s most beautiful and affluent downtowns
- Exceptional demographics in the surrounding area
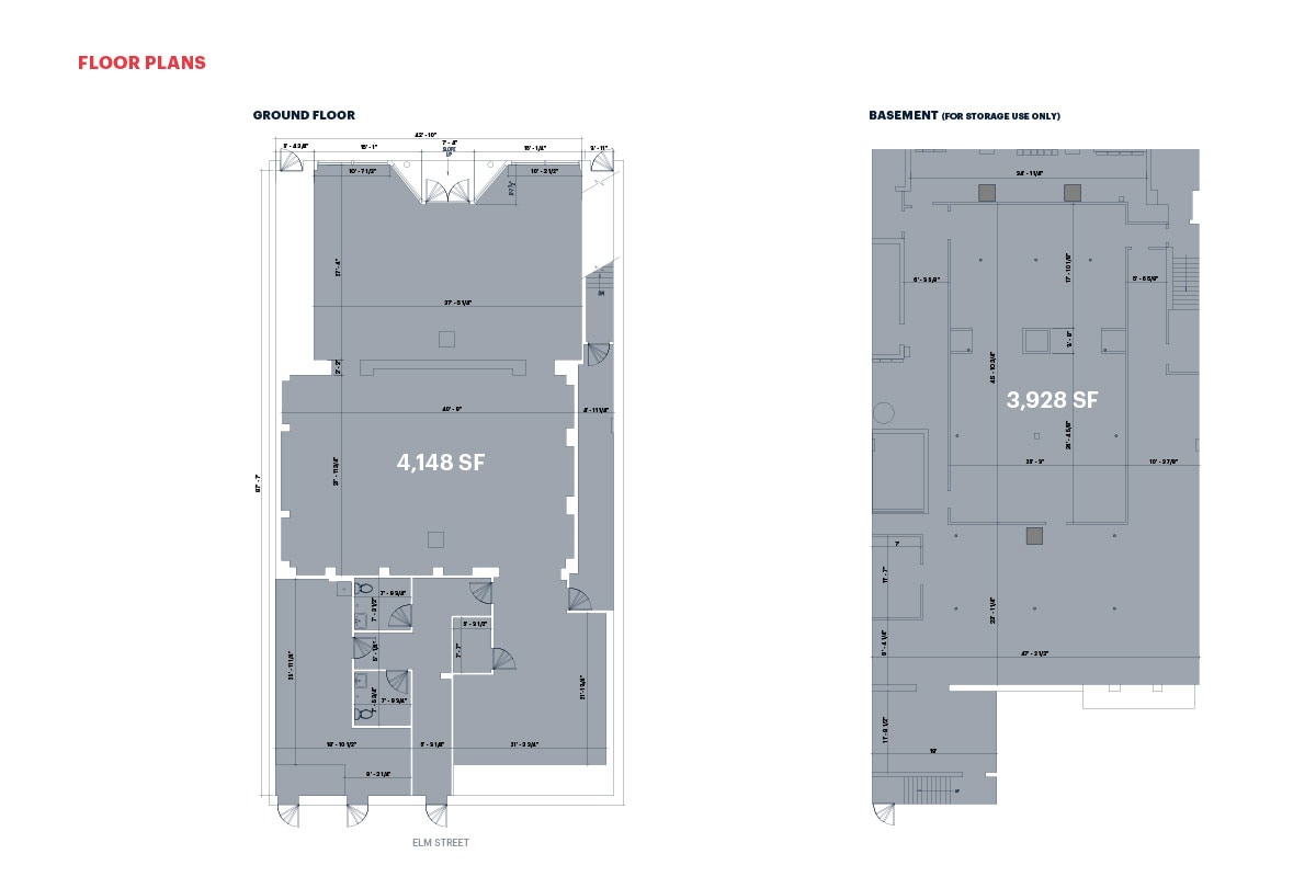
Disponibilité de l’espace (2)
Afficher le tarif en
- Espace
- Surface
- Durée
- Loyer
- Type de loyer
| Espace | Surface | Durée | Loyer | Type de loyer | ||
| Sous-sol | 365 m² | Négociable | Sur demande Sur demande Sur demande Sur demande | À déterminer | ||
| 1er étage | 385 m² | Négociable | Sur demande Sur demande Sur demande Sur demande | À déterminer |
Sous-sol
Prominent location in one of Northern New Jersey’s most beautiful and affluent downtowns Central location surrounded by national retailers with excellent visibility from Westfield’s main signalized intersection Exceptional demographics in the surrounding area Elegant, wide storefront with exceptional visibility and refined architectural details — a perfect setting for elevated brand experiences. Space features beautiful lighting, high ceilings, large dry basement, and three rear entrances to the back alley for loading
- Partiellement aménagé comme Local commercial standard
- Contigu et aligné avec d’autres locaux commerciaux
- Espace en excellent état
- Hauts plafonds
1er étage
Prominent location in one of Northern New Jersey’s most beautiful and affluent downtowns Central location surrounded by national retailers with excellent visibility from Westfield’s main signalized intersection Exceptional demographics in the surrounding area Elegant, wide storefront with exceptional visibility and refined architectural details — a perfect setting for elevated brand experiences. Space features beautiful lighting, high ceilings, large dry basement, and three rear entrances to the back alley for loading
- Partiellement aménagé comme Local commercial standard
- Contigu et aligné avec d’autres locaux commerciaux
- Espace en excellent état
- Hauts plafonds
Types de loyers
Le montant et le type de loyer que l’occupant (locataire) est tenu de payer au propriétaire (bailleur) sur la durée du bail sont négociés avant la signature du bail par les deux parties. Le type de loyer varie selon les services fournis. Par exemple, le prix d’un loyer triple net est habituellement inférieur à celui d’un bail à service complet puisque l’occupant est tenu d’assumer des dépenses supplémentaires par rapport au loyer de base. Contacter le broker chargé de l’annonce pour bien comprendre les coûts associés ou les dépenses supplémentaires pour chaque type de loyer.
1. Service complet: Un loyer qui comprend des services d’immeuble standards normaux fournis par le propriétaire dans le cadre d’une location annuelle de base.
2. Double net (NN): L’occupant paie seulement deux des frais de l’immeuble. Le propriétaire et l’occupant déterminent ces frais spécifiques avant la signature du bail.
3. Triple net (NNN): Un bail selon lequel l’occupant est responsable de tous les frais liés à sa part proportionnelle d’occupation de l’immeuble.
4. Brut modifié: Le brut modifié est un type général de bail dans lequel l’occupant est en général responsable de sa part proportionnelle d’une ou de plusieurs dépenses. C’est le propriétaire qui paie les frais restants. Consultez la liste ci-dessous pour connaître les structures de loyers bruts modifiés les plus courantes : 4. Plus services publics: Un type de bail brut modifié, où l’occupant est responsable à hauteur de sa part proportionnelle des services publics en plus du loyer. 4. Plus nettoyage: Un type de bail brut modifié, où l’occupant est responsable à hauteur de sa part proportionnelle du nettoyage en plus du loyer. 4. Plus électricité: Un type de bail brut modifié, où l’occupant est responsable à hauteur de sa part proportionnelle du coût de la consommation électrique en plus du loyer. 4. Plus électricité et nettoyage: Un type de bail brut modifié, où l’occupant est responsable à hauteur de sa part proportionnelle du coût de la consommation électrique et du nettoyage en plus du loyer. 4. Plus services publics et charges: Un type de bail brut modifié où l’occupant est responsable à hauteur de sa part proportionnelle des services publics et du coût de nettoyage en plus du loyer. 4. Bail industriel brut: Un type de bail brut modifié dans lequel l’occupant paie un ou plusieurs des frais en plus du loyer. Le propriétaire et l’occupant déterminent ces frais spécifiques avant la signature du bail.
5. Électricité à la charge de l’occupant: Le propriétaire paie pour tous les services et l’occupant est responsable de sa propre utilisation de l’éclairage et des prises électriques dans l’espace qu’il occupe.
6. Négociable ou sur demande: Cette option est utilisée lorsque le contact de location n’indique pas le type de loyer ou de service.
7. À déterminer: À déterminer : utilisé pour les immeubles dont le type de services ou de loyer n’est pas connu, souvent quand l’immeuble n’est pas encore construit.
Informations sur l’immeuble
| Espace total disponible | 750 m² | Surface commerciale utile | 1 136 m² |
| Type de bien | Local commercial | Année de construction | 1900 |
| Sous-type de bien | Commerce pied immeuble |
| Espace total disponible | 750 m² |
| Type de bien | Local commercial |
| Sous-type de bien | Commerce pied immeuble |
| Surface commerciale utile | 1 136 m² |
| Année de construction | 1900 |
À propos du bien
Elegant, wide storefront with exceptional visibility and refined architectural details — a perfect setting for elevated brand experiences. Space features beautiful lighting, high ceilings, a large dry basement, and three rear entrances to the back alley for loading
- Climatisation
Principaux commerces à proximité
Présenté par
74-76 Elm St
Hum, une erreur s’est produite lors de l’envoi de votre message. Veuillez réessayer.
Merci ! Votre message a été envoyé.







