Votre e-mail a été envoyé.
Certaines informations ont été traduites automatiquement.
Informations principales
- Five-story medical office building with elevator service.
- Free surface parking with EV charging stations.
- Minutes from St. Joseph and CHOC Hospitals.
- Upgraded lobby and outdoor spaces for tenant comfort.
- Prominent frontage along SR-22 Freeway.
- Tenant improvement allowance and relocation support available.
Tous les espaces disponibles(3)
Afficher les loyers en
- Espace
- Surface
- Durée
- Loyer
- Type de bien
- Aménagement
- Disponible
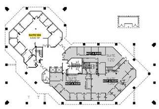
First-floor suite offering a flexible layout for medical use. Convenient access to building amenities and immediate occupancy available.
- Convient pour 10 à 30 personnes
- Lumière naturelle
- First-floor medical suite
- Flexible design options
- Climatisation centrale
- Accessible fauteuils roulants
- Immediate occupancy available
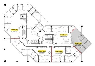
Second-floor suite ideal for specialized medical practices. Positioned near elevators for easy patient access. Excellent natural light and convenient circulation.
- Entièrement aménagé comme Cabinet médical standard
- Climatisation centrale
- Accessible fauteuils roulants
- Near elevator access
- Principalement open space
- Toilettes incluses dans le bail
- Second-floor location
- Adaptable medical layout
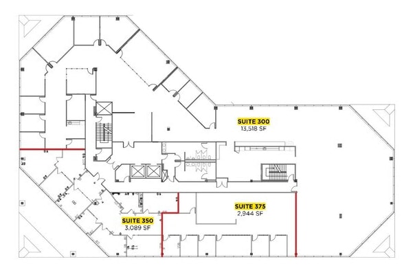
Full-floor opportunity for surgery center or large clinic. Offers maximum design flexibility and privacy. Efficient layout for outpatient services. Positioned for easy patient flow.
- Entièrement aménagé comme Cabinet médical standard
- Climatisation centrale
- Accessible fauteuils roulants
- Practical medical layout
- Principalement open space
- Toilettes incluses dans le bail
- Ideal for surgery center
- Extensive planning options
| Espace | Surface | Durée | Loyer | Type de bien | Aménagement | Disponible |
| 1er étage, bureau 100 | 338 m² | Négociable | Sur demande Sur demande Sur demande Sur demande | Bureaux/Médical | - | 01/09/2026 |
| 2e étage | 233 – 1 251 m² | Négociable | Sur demande Sur demande Sur demande Sur demande | Médical | Construction achevée | Maintenant |
| 3e étage | 483 – 1 816 m² | Négociable | Sur demande Sur demande Sur demande Sur demande | Médical | Construction achevée | Maintenant |
1er étage, bureau 100
| Surface |
| 338 m² |
| Durée |
| Négociable |
| Loyer |
| Sur demande Sur demande Sur demande Sur demande |
| Type de bien |
| Bureaux/Médical |
| Aménagement |
| - |
| Disponible |
| 01/09/2026 |
2e étage
| Surface |
| 233 – 1 251 m² |
| Durée |
| Négociable |
| Loyer |
| Sur demande Sur demande Sur demande Sur demande |
| Type de bien |
| Médical |
| Aménagement |
| Construction achevée |
| Disponible |
| Maintenant |
3e étage
| Surface |
| 483 – 1 816 m² |
| Durée |
| Négociable |
| Loyer |
| Sur demande Sur demande Sur demande Sur demande |
| Type de bien |
| Médical |
| Aménagement |
| Construction achevée |
| Disponible |
| Maintenant |
1er étage, bureau 100
| Surface | 338 m² |
| Durée | Négociable |
| Loyer | Sur demande |
| Type de bien | Bureaux/Médical |
| Aménagement | - |
| Disponible | 01/09/2026 |
First-floor suite offering a flexible layout for medical use. Convenient access to building amenities and immediate occupancy available.
- Convient pour 10 à 30 personnes
- Climatisation centrale
- Lumière naturelle
- Accessible fauteuils roulants
- First-floor medical suite
- Immediate occupancy available
- Flexible design options
2e étage
| Surface | 233 – 1 251 m² |
| Durée | Négociable |
| Loyer | Sur demande |
| Type de bien | Médical |
| Aménagement | Construction achevée |
| Disponible | Maintenant |
Second-floor suite ideal for specialized medical practices. Positioned near elevators for easy patient access. Excellent natural light and convenient circulation.
- Entièrement aménagé comme Cabinet médical standard
- Principalement open space
- Climatisation centrale
- Toilettes incluses dans le bail
- Accessible fauteuils roulants
- Second-floor location
- Near elevator access
- Adaptable medical layout
3e étage
| Surface | 483 – 1 816 m² |
| Durée | Négociable |
| Loyer | Sur demande |
| Type de bien | Médical |
| Aménagement | Construction achevée |
| Disponible | Maintenant |
Full-floor opportunity for surgery center or large clinic. Offers maximum design flexibility and privacy. Efficient layout for outpatient services. Positioned for easy patient flow.
- Entièrement aménagé comme Cabinet médical standard
- Principalement open space
- Climatisation centrale
- Toilettes incluses dans le bail
- Accessible fauteuils roulants
- Ideal for surgery center
- Practical medical layout
- Extensive planning options
Aperçu du bien
725 W Town and Country Road is a five-story, Class A medical office building offering a modern, professional environment for healthcare providers. The property features an upgraded lobby and inviting outdoor spaces designed for collaboration and relaxation, enhancing the overall tenant experience. With elevator service and a multi-tenant layout, the building accommodates a variety of medical practices. Tenants benefit from free surface parking, including EV charging stations, and enjoy convenient access to the SR-22 Freeway for seamless connectivity throughout Orange County. The property is strategically located just minutes from St. Joseph Hospital and CHOC Children’s Hospital, making it an ideal setting for medical professionals seeking proximity to major healthcare institutions. Additional advantages include competitive operating expenses and available tenant improvement allowances, supported by full design and project management services to facilitate smooth relocations for medical groups.
- Atrium
- Système de sécurité
- Certifié Energy Star
- Station de recharge de voitures
- Panneau monumental
- Sièges extérieurs
Informations sur l’immeuble
Présenté par
Centrum South | 725 W Town and Country Rd
Hum, une erreur s’est produite lors de l’envoi de votre message. Veuillez réessayer.
Merci ! Votre message a été envoyé.










