Votre e-mail a été envoyé.
Certaines informations ont été traduites automatiquement.
Informations principales
- Le tout nouveau bâtiment médical offre un espace exceptionnel, notamment des fonctionnalités sans contact.
- Excellent accès aux autoroutes I-70 et I-270 pour les trajets domicile-travail et entouré de restaurants pratiques, de boutiques et d'installations médicales complémentaires.
- Situé à Frederick, dans le Maryland, une charmante communauté à moins d'une heure de Baltimore, DC, et Gettysburg.
- Détenu et géré localement par des professionnels de l'immobilier locaux offrant une assistance expérimentée pour la conception et la construction d'espaces.
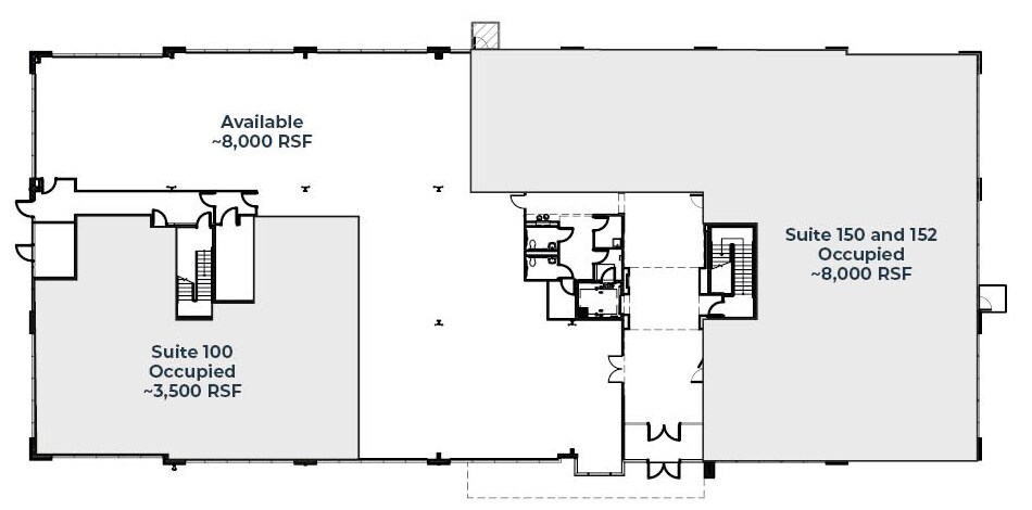
Tous les espace disponibles(1)
Afficher les loyers en
- Espace
- Surface
- Durée
- Loyer
- Type de bien
- Aménagement
- Disponible
Fully customizable build-out available.
- Le loyer ne comprend pas les services publics, les frais immobiliers ou les services de l’immeuble.
- Plan d’étage avec bureaux fermés
- Espace en excellent état
- Entièrement aménagé comme Bureau standard
- Convient pour 5 à 66 personnes
| Espace | Surface | Durée | Loyer | Type de bien | Aménagement | Disponible |
| 1er étage | 186 – 762 m² | 5-15 Ans | 201,97 € /m²/an 16,83 € /m²/mois 153 863 € /an 12 822 € /mois | Bureaux/Médical | Construction achevée | Maintenant |
1er étage
| Surface |
| 186 – 762 m² |
| Durée |
| 5-15 Ans |
| Loyer |
| 201,97 € /m²/an 16,83 € /m²/mois 153 863 € /an 12 822 € /mois |
| Type de bien |
| Bureaux/Médical |
| Aménagement |
| Construction achevée |
| Disponible |
| Maintenant |
1er étage
| Surface | 186 – 762 m² |
| Durée | 5-15 Ans |
| Loyer | 201,97 € /m²/an |
| Type de bien | Bureaux/Médical |
| Aménagement | Construction achevée |
| Disponible | Maintenant |
Fully customizable build-out available.
- Le loyer ne comprend pas les services publics, les frais immobiliers ou les services de l’immeuble.
- Entièrement aménagé comme Bureau standard
- Plan d’étage avec bureaux fermés
- Convient pour 5 à 66 personnes
- Espace en excellent état
Visite 3D Matterport
Aperçu du bien
Le 7100 Guilford Drive est un tout nouvel immeuble de bureaux professionnels et médicaux de classe A situé à Frederick, dans le Maryland. Conçue pendant la pandémie de COVID, cette propriété a été conçue et construite par des professionnels de l'immobilier locaux et comprend des fonctionnalités sans contact de pointe. Cette propriété propose des suites flexibles allant de 2 000 pieds carrés à 20 000 pieds carrés, permettant des options prêtes à emménager et la possibilité de faire appel à un propriétaire local et expérimenté pour aider à la conception et à la construction de l'espace. L'établissement comprend des fonctionnalités tactiles ou sans contact dans l'ensemble de l'établissement, notamment des ouvre-portes automatiques et des boutons d'ascenseur permettant de botter les orteils. Les locataires apprécieront le grand parking, la facilité d'accès et l'état de préparation à l'emménagement. Une excellente signalisation de bâtiment est disponible. Situés aux échangeurs I-270 et I-70, les employés et les patients trouveront leurs déplacements faciles. Les locataires et les visiteurs de la propriété apprécieront la facilité d'accès aux services médicaux, commerciaux et alimentaires complémentaires situés à proximité. Les locataires médicaux voisins incluent le centre dentaire pédiatrique de Frederick, le centre médical Kaiser Permanente Frederick, le Children's National Frederick et le Frederick Health Hospital. Situé à moins d'une heure de Baltimore, DC, et de Gettysburg, le 7100 Guilford est bien placé pour capter le nombre croissant de patients et attirer les talents de bureau de la grande région. Frederick est situé entre les montagnes Catoctin et la rivière Monocacy, dans le centre du Maryland. Frederick est la deuxième plus grande ville du Maryland et le siège de Fort Detrick, le plus grand employeur de la ville. Fort d'un important passé de guerre civile et d'une place sur le corridor technologique de l'I-270, Frederick allie histoire et technologie pour une expérience moderne unique.
Informations sur l’immeuble
Brochure marketing
À proximité
Hôpitaux |
|||
|---|---|---|---|
| Frederick Health Hospital | Soins intensifs | 7 min en voiture | 3,8 km |
Restaurants |
|||
|---|---|---|---|
| Delhi 6 Indian Cuisine & Lounge | Indien | €€ | 12 min. à pied |
| Old Dominion Grill And Sushi | Grill | €€ | 12 min. à pied |
| Mariachi Restaurant | Mexicain | €€ | 15 min. à pied |
| Blues BBQ Co | Barbecue | €€ | 20 min. à pied |
| The Roasthouse Pub | Nourriture de brasserie | €€€ | 23 min. à pied |
| Analia's Cafe | Café | €€ | 42 min. à pied |
Local commercial |
||
|---|---|---|
| Sally Beauty | Parapharmacie | 4 min. à pied |
| GameStop | Magasin de jeux | 4 min. à pied |
| Five Below | Magasin à prix unique/Friperie | 4 min. à pied |
| Chuck E. Cheese | Arcade | 5 min. à pied |
| Kohl's | Grand magasin | 6 min. à pied |
Agent de location
Justin Ausherman, Founder and President
Depuis 2002, Justin travaille au développement de solutions immobilières transformationnelles. Au fil des ans, ses connaissances dans le domaine du courtage et de la gestion immobilière se sont transformées en conglomérats pour former la principale société immobilière commerciale de Frederick, qui rationalise l'investissement et la gestion immobiliers.
En tant que résident permanent de Frederick, Justin connaît parfaitement les conditions du marché et utilise ses connaissances pour trouver la solution idéale qui aura un impact sur le résultat net de ses clients. De la conception à l'examen des documents juridiques, le président d'AushCo assure le succès immobilier du début à la fin.
Présenté par
7100 Guilford Dr
Hum, une erreur s’est produite lors de l’envoi de votre message. Veuillez réessayer.
Merci ! Votre message a été envoyé.







