Votre e-mail a été envoyé.
Certaines informations ont été traduites automatiquement.
Caractéristiques
Tous les espace disponibles(1)
Afficher les loyers en
- Espace
- Surface
- Durée
- Loyer
- Type de bien
- Aménagement
- Disponible
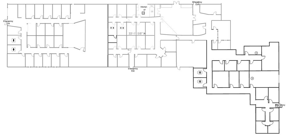
Type: Office Size: 16,081 SF Price: $1.65/SF, NNN ($0.37) Notes: This suite consists of several private offices, two large meeting rooms, three sets of restrooms, and ample on-site parking. ***** Type: Warehouse Size: Flexible up to 16,081 SF Price: Inquire Notes: This flex industrial building is currently configured as office but can be converted to warehouse space with roll-up doors.
- Le loyer ne comprend pas les services publics, les frais immobiliers ou les services de l’immeuble.
| Espace | Surface | Durée | Loyer | Type de bien | Aménagement | Disponible |
| 1er étage | 1 494 m² | Négociable | 181,77 € /m²/an 15,15 € /m²/mois 271 567 € /an 22 631 € /mois | Bureau | - | Maintenant |
1er étage
| Surface |
| 1 494 m² |
| Durée |
| Négociable |
| Loyer |
| 181,77 € /m²/an 15,15 € /m²/mois 271 567 € /an 22 631 € /mois |
| Type de bien |
| Bureau |
| Aménagement |
| - |
| Disponible |
| Maintenant |
1er étage
| Surface | 1 494 m² |
| Durée | Négociable |
| Loyer | 181,77 € /m²/an |
| Type de bien | Bureau |
| Aménagement | - |
| Disponible | Maintenant |
Type: Office Size: 16,081 SF Price: $1.65/SF, NNN ($0.37) Notes: This suite consists of several private offices, two large meeting rooms, three sets of restrooms, and ample on-site parking. ***** Type: Warehouse Size: Flexible up to 16,081 SF Price: Inquire Notes: This flex industrial building is currently configured as office but can be converted to warehouse space with roll-up doors.
- Le loyer ne comprend pas les services publics, les frais immobiliers ou les services de l’immeuble.
Faits sur l’installation entrepôt
Occupants
- Étage
- Nom de l’occupant
- Secteur d’activité
- 1er
- Centauri Labs
- Services professionnels, scientifiques et techniques
- 1er
- Entegris, Inc
- Manufacture
- 1er
- Etna Interactive
- Information
- 1er
- UL Solutions
- Services professionnels, scientifiques et techniques
Présenté par
Fiero II Commerce Park | 709 Fiero Ln
Hum, une erreur s’est produite lors de l’envoi de votre message. Veuillez réessayer.
Merci ! Votre message a été envoyé.



