Votre e-mail a été envoyé.
Flexible Creative & Industrial Space 7025 NW 7th Ave Local d’activités | 372 m² | À louer | Miami, FL 33150



Certaines informations ont été traduites automatiquement.
Informations principales
- HEAVY TRAFFIC
- OPEN PLAN
- ALREADY BUILD OUT
Caractéristiques
Tous les espace disponibles(1)
Afficher les loyers en
- Espace
- Surface
- Durée
- Loyer
- Type de bien
- Aménagement
- Disponible
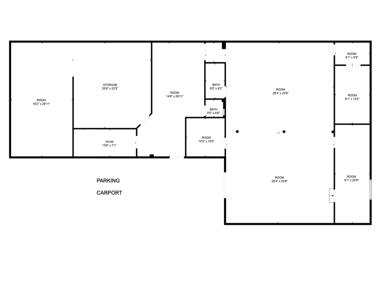
Ideal setup for creatives, small business owners, or anyone needing flexible space to work and build. This property features three private offices (currently used as fully equipped music studios), plus a large warehouse section with two-level racking systems, an open floor plan perfect for coworking or production, and a full kitchen already in place. Private parking for 5 cars with additional space next door if needed. Previously a light mechanic shop, this space can be adapted for manufacturing, storage, distribution, or office use. If interested, the 3 sound-treated studios come with computers and audio systems ready to go. Located just minutes from Downtown with fast access to I-95. Available for Lease with option to Purchase. Contact the agent for full details or a private showing.
- Le loyer ne comprend pas les services publics, les frais immobiliers ou les services de l’immeuble.
- Espace en excellent état
- Hauts plafonds
- Private Parking for 5 Vehicles
- Large Warehouse Area
- High Ceilings
- Comprend 232 m² d’espace de bureau dédié
- Ventilation et chauffage centraux
- 3 Private Offices/Studios (Build Out)
- Open Floor Plan for Coworking
- Lease with Option to Purchase Available
| Espace | Surface | Durée | Loyer | Type de bien | Aménagement | Disponible |
| 1er étage – MAIN SPACE | 372 m² | 3-5 Ans | 221,10 € /m²/an 18,43 € /m²/mois 82 164 € /an 6 847 € /mois | Local d’activités | Construction achevée | Maintenant |
1er étage – MAIN SPACE
| Surface |
| 372 m² |
| Durée |
| 3-5 Ans |
| Loyer |
| 221,10 € /m²/an 18,43 € /m²/mois 82 164 € /an 6 847 € /mois |
| Type de bien |
| Local d’activités |
| Aménagement |
| Construction achevée |
| Disponible |
| Maintenant |
1er étage – MAIN SPACE
| Surface | 372 m² |
| Durée | 3-5 Ans |
| Loyer | 221,10 € /m²/an |
| Type de bien | Local d’activités |
| Aménagement | Construction achevée |
| Disponible | Maintenant |
Ideal setup for creatives, small business owners, or anyone needing flexible space to work and build. This property features three private offices (currently used as fully equipped music studios), plus a large warehouse section with two-level racking systems, an open floor plan perfect for coworking or production, and a full kitchen already in place. Private parking for 5 cars with additional space next door if needed. Previously a light mechanic shop, this space can be adapted for manufacturing, storage, distribution, or office use. If interested, the 3 sound-treated studios come with computers and audio systems ready to go. Located just minutes from Downtown with fast access to I-95. Available for Lease with option to Purchase. Contact the agent for full details or a private showing.
- Le loyer ne comprend pas les services publics, les frais immobiliers ou les services de l’immeuble.
- Comprend 232 m² d’espace de bureau dédié
- Espace en excellent état
- Ventilation et chauffage centraux
- Hauts plafonds
- 3 Private Offices/Studios (Build Out)
- Private Parking for 5 Vehicles
- Open Floor Plan for Coworking
- Large Warehouse Area
- Lease with Option to Purchase Available
- High Ceilings
Aperçu du bien
Incredible opportunity to lease a fully built-out space just minutes from Downtown Miami with direct access to I-95. Whether you're in the creative field, production, tech, distribution, or small-scale manufacturing - this space is ready for you to move in and get to work. The building offers three private office spaces (currently set up as professional recording studios with sound treatment and equipment), a large warehouse with existing two-level racking systems, an open layout ideal for coworking, production, or storage, and a kitchen already in place. Private parking fits five vehicles comfortably, with additional space available next door. Formerly a mechanic shop, the property offers flexibility to adapt to a wide range of uses. Lease available now, with an option to purchase. For more information or to schedule a tour, contact the agent directly.
Informations sur l’immeuble
Présenté par
Flexible Creative & Industrial Space | 7025 NW 7th Ave
Hum, une erreur s’est produite lors de l’envoi de votre message. Veuillez réessayer.
Merci ! Votre message a été envoyé.
