Votre e-mail a été envoyé.
Long Beach Business Park Long Beach, CA 90813 Espace disponible | 178–2 353 m² | Industriel/Logistique



Certaines informations ont été traduites automatiquement.
INFORMATIONS PRINCIPALES SUR LE PARC
- Unité industrielle entièrement rénovée
- Puissance élevée (600 ampères/240 V/3 phases)
- Grand espace de fabrication ou de R&D
- Accès immédiat aux ports LB/LA
FAITS SUR LE PARC
| Espace total disponible | 2 353 m² | Type de parc | Parc industriel |
| Espace total disponible | 2 353 m² |
| Type de parc | Parc industriel |
TOUS LES ESPACES DISPONIBLES(4)
Afficher les loyers en
- ESPACE
- SURFACE
- DURÉE
- LOYER
- TYPE DE BIEN
- ÉTAT
- DISPONIBLE
• RATE: $1.60/SF MG ($3,072/Mo) + $0.12/SF CAM ($230/Mo) • Hard to Find Small Industrial Unit • Ground Level Roll Up Door (14’ x 15’) • 14’ - 15’ Warehouse Ceiling Height • 108 SF Office, 1 Restroom, Warehouse Skylights • Immediate Access to Long Beach/ Los Angeles Ports and 0.2 Miles to I-710 Fwy / 2.9 Miles to 405 Fwy
- Il est possible que le loyer annoncé ne comprenne pas certains services publics, services d’immeuble et frais immobiliers.
- Toilettes privées
- Comprend 10 m² d’espace de bureau dédié
| Espace | Surface | Durée | Loyer | Type de bien | État | Disponible |
| 1er étage – 1333 | 178 m² | 3-5 Ans | 179,94 € /m²/an 15,00 € /m²/mois 32 097 € /an 2 675 € /mois | Industriel/Logistique | Construction achevée | Maintenant |
1305-1339 Oregon Ave - 1er étage – 1333
- ESPACE
- SURFACE
- DURÉE
- LOYER
- TYPE DE BIEN
- ÉTAT
- DISPONIBLE
• Rate: $1.20 / SF MG ($12,194/mo) + $0.14 / SF CAM ($1,422/mo) • Available Size: ±10,162 SF • Professionally Managed and Maintained Business Park • Oversized Ground Level Roll Up Door (14’ x 14’) • 21’ Warehouse Ceiling Height with 400 AMPS • 2 Offices, Conf Room and Open Bullpen Area • Immediate Access to LB/ LA Ports
- Il est possible que le loyer annoncé ne comprenne pas certains services publics, services d’immeuble et frais immobiliers.
- 1 accès plain-pied
• Rate: $1.20 / SF MG ($10,500/mo) + $0.14 SF CAM ($1,225/mo) • Available Size: ±8,750 SF • Professionally Managed and Maintained Business Park • Oversized Ground Level Roll Up Door (18’ x 14’) • 21’ Warehouse Ceiling Height with 600 AMPS • Immediate Access to LB/ LA Ports
- Il est possible que le loyer annoncé ne comprenne pas certains services publics, services d’immeuble et frais immobiliers.
- 1 accès plain-pied
• RATE: $.99/SF MG ($6,750/Mo) + $0.14/SF CAM ($630/Mo) • Professionally Managed and Maintained Business Park • Ground Level Roll Up Door (12’ x 14’) • 18’ Warehouse Ceiling Height with Skylights • 2 Restrooms, 2 Private Offices and Open Office Area • Immediate Access to Long Beach / Los Angeles Ports and 0.4 Miles to I-710 Fwy / 2.9 Miles to 405 Fwy
- Il est possible que le loyer annoncé ne comprenne pas certains services publics, services d’immeuble et frais immobiliers.
- Espace en excellent état
- Comprend 85 m² d’espace de bureau dédié
| Espace | Surface | Durée | Loyer | Type de bien | État | Disponible |
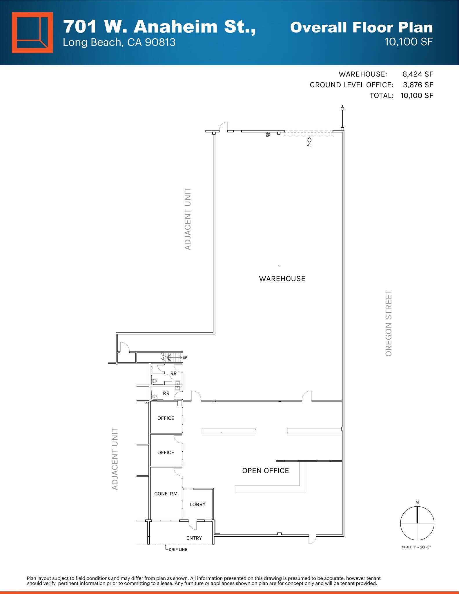
| 1er étage – 701 | 944 m² | Négociable | 134,96 € /m²/an 11,25 € /m²/mois 127 409 € /an 10 617 € /mois | Industriel/Logistique | - | Maintenant |
| 1er étage – 705 | 813 m² | Négociable | 134,96 € /m²/an 11,25 € /m²/mois 109 706 € /an 9 142 € /mois | Industriel/Logistique | - | Maintenant |
| 1er étage – 727 A | 418 m² | 3-5 Ans | 111,34 € /m²/an 9,28 € /m²/mois 46 547 € /an 3 879 € /mois | Industriel/Logistique | Construction achevée | Maintenant |
701-833 W Anaheim St - 1er étage – 701
701-833 W Anaheim St - 1er étage – 705
701-833 W Anaheim St - 1er étage – 727 A
1305-1339 Oregon Ave - 1er étage – 1333
| Surface | 178 m² |
| Durée | 3-5 Ans |
| Loyer | 179,94 € /m²/an |
| Type de bien | Industriel/Logistique |
| État | Construction achevée |
| Disponible | Maintenant |
• RATE: $1.60/SF MG ($3,072/Mo) + $0.12/SF CAM ($230/Mo) • Hard to Find Small Industrial Unit • Ground Level Roll Up Door (14’ x 15’) • 14’ - 15’ Warehouse Ceiling Height • 108 SF Office, 1 Restroom, Warehouse Skylights • Immediate Access to Long Beach/ Los Angeles Ports and 0.2 Miles to I-710 Fwy / 2.9 Miles to 405 Fwy
- Il est possible que le loyer annoncé ne comprenne pas certains services publics, services d’immeuble et frais immobiliers.
- Comprend 10 m² d’espace de bureau dédié
- Toilettes privées
701-833 W Anaheim St - 1er étage – 701
| Surface | 944 m² |
| Durée | Négociable |
| Loyer | 134,96 € /m²/an |
| Type de bien | Industriel/Logistique |
| État | - |
| Disponible | Maintenant |
• Rate: $1.20 / SF MG ($12,194/mo) + $0.14 / SF CAM ($1,422/mo) • Available Size: ±10,162 SF • Professionally Managed and Maintained Business Park • Oversized Ground Level Roll Up Door (14’ x 14’) • 21’ Warehouse Ceiling Height with 400 AMPS • 2 Offices, Conf Room and Open Bullpen Area • Immediate Access to LB/ LA Ports
- Il est possible que le loyer annoncé ne comprenne pas certains services publics, services d’immeuble et frais immobiliers.
- 1 accès plain-pied
701-833 W Anaheim St - 1er étage – 705
| Surface | 813 m² |
| Durée | Négociable |
| Loyer | 134,96 € /m²/an |
| Type de bien | Industriel/Logistique |
| État | - |
| Disponible | Maintenant |
• Rate: $1.20 / SF MG ($10,500/mo) + $0.14 SF CAM ($1,225/mo) • Available Size: ±8,750 SF • Professionally Managed and Maintained Business Park • Oversized Ground Level Roll Up Door (18’ x 14’) • 21’ Warehouse Ceiling Height with 600 AMPS • Immediate Access to LB/ LA Ports
- Il est possible que le loyer annoncé ne comprenne pas certains services publics, services d’immeuble et frais immobiliers.
- 1 accès plain-pied
701-833 W Anaheim St - 1er étage – 727 A
| Surface | 418 m² |
| Durée | 3-5 Ans |
| Loyer | 111,34 € /m²/an |
| Type de bien | Industriel/Logistique |
| État | Construction achevée |
| Disponible | Maintenant |
• RATE: $.99/SF MG ($6,750/Mo) + $0.14/SF CAM ($630/Mo) • Professionally Managed and Maintained Business Park • Ground Level Roll Up Door (12’ x 14’) • 18’ Warehouse Ceiling Height with Skylights • 2 Restrooms, 2 Private Offices and Open Office Area • Immediate Access to Long Beach / Los Angeles Ports and 0.4 Miles to I-710 Fwy / 2.9 Miles to 405 Fwy
- Il est possible que le loyer annoncé ne comprenne pas certains services publics, services d’immeuble et frais immobiliers.
- Comprend 85 m² d’espace de bureau dédié
- Espace en excellent état
PLAN DU SITE
Présenté par
Long Beach Business Park | Long Beach, CA 90813
Hum, une erreur s’est produite lors de l’envoi de votre message. Veuillez réessayer.
Merci ! Votre message a été envoyé.









