Connectez-vous/S’inscrire
Votre e-mail a été envoyé.
Certaines informations ont été traduites automatiquement.
Informations principales
- 1.2 Miles from Route 1-95
- 3.2 Miles from Route 3
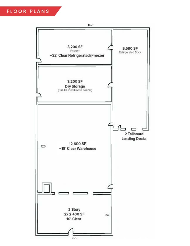
- Building floorplan ratio 80:20 warehouse to office space
- 2.1 Miles from Route I-93
- 40' Clear height within the freezer space
- Freezer space: 10,000 SF
Caractéristiques
Hauteur libre
5,49 m
Espacement des colonnes
15,24 m x 7,62 m
Accès plain-pied
1
Portes de quai de chargement extérieures
2
Niveleurs
1
Places de stationnement standard
25
Tous les espace disponibles(1)
Afficher les loyers en
- Espace
- Surface
- Durée
- Loyer
- Type de bien
- Aménagement
- Disponible
- Comprend 465 m² d’espace de bureau dédié
- 2 quais de chargement
- 1 accès plain-pied
- Chambres de congélation
| Espace | Surface | Durée | Loyer | Type de bien | Aménagement | Disponible |
| 1er étage | 2 565 m² | Négociable | Sur demande Sur demande Sur demande Sur demande | Industriel/Logistique | Construction achevée | Maintenant |
1er étage
| Surface |
| 2 565 m² |
| Durée |
| Négociable |
| Loyer |
| Sur demande Sur demande Sur demande Sur demande |
| Type de bien |
| Industriel/Logistique |
| Aménagement |
| Construction achevée |
| Disponible |
| Maintenant |
1 sur 1
Vidéos
Visite extérieure 3D Matterport
Visite 3D
Photos
Street view
Rue
Carte
1er étage
| Surface | 2 565 m² |
| Durée | Négociable |
| Loyer | Sur demande |
| Type de bien | Industriel/Logistique |
| Aménagement | Construction achevée |
| Disponible | Maintenant |
- Comprend 465 m² d’espace de bureau dédié
- 1 accès plain-pied
- 2 quais de chargement
- Chambres de congélation
Aperçu du bien
27,609 SF Freezer Warehouse Building on 1.76 AC for Lease.
Faits sur l’installation réfrigération/chambre froide
Surface de l’immeuble
2 565 m²
Surface du lot
0,71 ha
Année de construction
1984
Développement et livraisons
Maçonnerie
Eau
Ville
Égout
Ville
Alimentation électrique
Ampères: 1 000
Zonage
IP, Woburn - Zonage industriel
1 1
Fairly walkable
50/100
Exceptionally drivable
100/100
Limited public transit
20/100
Fairly bikeable
40/100
1 sur 10
Vidéos
Visite extérieure 3D Matterport
Visite 3D
Photos
Street view
Rue
Carte
1 sur 1
Présenté par
7 State St
Vous êtes déjà membre ? Connectez-vous
Hum, une erreur s’est produite lors de l’envoi de votre message. Veuillez réessayer.
Merci ! Votre message a été envoyé.






