Votre e-mail a été envoyé.
The Standard Residences Brickell 690 SW 1st Ave Local commercial | 141–884 m² | 5 étoiles | À louer | Miami, FL 33130



Certaines informations ont été traduites automatiquement.
Informations principales
- Prime Ground Floor Retail Space at The Standard Residences
- Steps away from Avra, Brickell City Center and Financial District
- Direct frontage along 8th Street
- Proximity to approximately 5MM square feet of Class A office and over ± 53,000 residential units
Tous les espaces disponibles(2)
Afficher les loyers en
- Espace
- Surface
- Durée
- Loyer
- Type de bien
- Aménagement
- Disponible
Prime ground floor retail space at The Standard Residences, steps away from Avra, Brickell City Centr and Financial District. Proximity to approximately 5MM square feet of Class A office and over +/- 53,000 residential units.
- Entièrement aménagé comme Local commercial standard
- Frontage: ± 30 Feet
- Ceiling Height: ± 20 feet
Steps away from Avra, Brickell City Center, and Financial District Proximity to approximately 5MM square feet of Class A office and over ± 53,000 residential units
- Le loyer ne comprend pas les services publics, les frais immobiliers ou les services de l’immeuble.
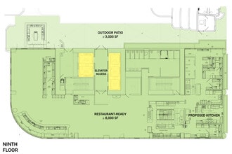
- ± 3,000 SF 9th Floor Outdoor Patio
- Direct frontage along 8th Street
- Plafonds finis: 6,10 mètres
- Restaurant-Ready Space below The Standard
| Espace | Surface | Durée | Loyer | Type de bien | Aménagement | Disponible |
| 1er étage, bureau Ground Floor | 141 m² | Négociable | Sur demande Sur demande Sur demande Sur demande | Local commercial | Construction achevée | 01/08/2027 |
| 9e étage | 743 m² | Négociable | Sur demande Sur demande Sur demande Sur demande | Local commercial | Espace brut | 31/08/2027 |
1er étage, bureau Ground Floor
| Surface |
| 141 m² |
| Durée |
| Négociable |
| Loyer |
| Sur demande Sur demande Sur demande Sur demande |
| Type de bien |
| Local commercial |
| Aménagement |
| Construction achevée |
| Disponible |
| 01/08/2027 |
9e étage
| Surface |
| 743 m² |
| Durée |
| Négociable |
| Loyer |
| Sur demande Sur demande Sur demande Sur demande |
| Type de bien |
| Local commercial |
| Aménagement |
| Espace brut |
| Disponible |
| 31/08/2027 |
1er étage, bureau Ground Floor
| Surface | 141 m² |
| Durée | Négociable |
| Loyer | Sur demande |
| Type de bien | Local commercial |
| Aménagement | Construction achevée |
| Disponible | 01/08/2027 |
Prime ground floor retail space at The Standard Residences, steps away from Avra, Brickell City Centr and Financial District. Proximity to approximately 5MM square feet of Class A office and over +/- 53,000 residential units.
- Entièrement aménagé comme Local commercial standard
- Ceiling Height: ± 20 feet
- Frontage: ± 30 Feet
9e étage
| Surface | 743 m² |
| Durée | Négociable |
| Loyer | Sur demande |
| Type de bien | Local commercial |
| Aménagement | Espace brut |
| Disponible | 31/08/2027 |
Steps away from Avra, Brickell City Center, and Financial District Proximity to approximately 5MM square feet of Class A office and over ± 53,000 residential units
- Le loyer ne comprend pas les services publics, les frais immobiliers ou les services de l’immeuble.
- Plafonds finis: 6,10 mètres
- ± 3,000 SF 9th Floor Outdoor Patio
- Restaurant-Ready Space below The Standard
- Direct frontage along 8th Street
Plan du site
Informations sur l’immeuble
| Espace total disponible | 884 m² | Style d’appartement | De hauteur élevée |
| Nb de lots | 45 | Surface de l’immeuble | 37 161 m² |
| Type de bien | Immeuble residentiel | Année de construction | 2027 |
| Sous-type de bien | Appartement | Statut de la construction | En construction |
| Espace total disponible | 884 m² |
| Nb de lots | 45 |
| Type de bien | Immeuble residentiel |
| Sous-type de bien | Appartement |
| Style d’appartement | De hauteur élevée |
| Surface de l’immeuble | 37 161 m² |
| Année de construction | 2027 |
| Statut de la construction | En construction |
À propos du bien
Espace commercial à louer à Brickell Miami, disponible au 1er trimestre 2026.
Principaux commerces à proximité
Présenté par
The Standard Residences Brickell | 690 SW 1st Ave
Hum, une erreur s’est produite lors de l’envoi de votre message. Veuillez réessayer.
Merci ! Votre message a été envoyé.




