Votre e-mail a été envoyé.
6820-6830 E Washington Blvd Industriel/Logistique 2 660 m² À vendre Commerce, CA 90040 10 219 560 € (3 841,94 €/m²)



Certaines informations ont été traduites automatiquement.
INFORMATIONS PRINCIPALES SUR L'INVESTISSEMENT
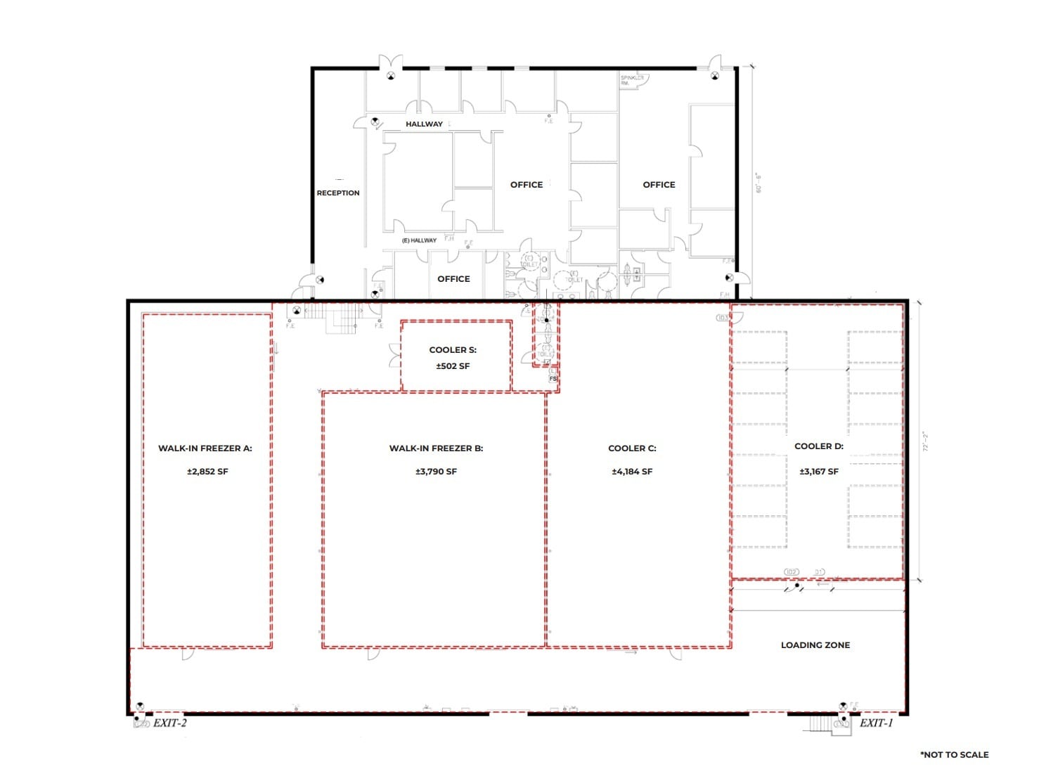
- Fully vacant cold storage facility with± 6,642 SF of Freezer and ±7,853 SF of Cooler
- Four dock-high and two ground-level loading doors for efficient logistics
- Zoned M2, supporting a wide range of industrial and commercial uses
- ±6,750 SF of office with 600A/480V 3-phase power and six restrooms
- Located 1.1 miles from I-5 with direct access to ports and downtown LA
RÉSUMÉ ANALYTIQUE
Originally built in 1962 and renovated in 2007, the facility is zoned M2, allowing for a wide range of industrial and commercial uses. With four dock-high and two ground-level loading doors, the site is optimized for logistics and distribution. The property includes 20 parking spaces and is located just 1.1 miles from the I-5 freeway, offering direct access to the ports of Los Angeles and Long Beach, LAX, and downtown LA.
Surrounded by a dense industrial ecosystem and supported by strong regional demographics—including over $28 billion in consumer spending within a 10-mile radius—the site is ideal for owner-users or investors seeking a turnkey cold storage asset in a high-demand submarket.
INFORMATIONS SUR L’IMMEUBLE
| Prix | 10 219 560 € | Nb d’étages | 2 |
| Prix par m² | 3 841,94 € | Année de construction/rénovation | 1962/2007 |
| Type de vente | Investissement ou propriétaire occupant | Occupation | Mono |
| Type de bien | Industriel/Logistique | Ratio de stationnement | 0,07/1 000 m² |
| Sous-type de bien | Entrepot de réfrigération | Hauteur libre du plafond | 5,79 m |
| Classe d’immeuble | C | Nb de portes élevées/de chargement | 4 |
| Surface du lot | 0,55 ha | Nb d’accès plain-pied/portes niveau du sol | 2 |
| Surface utile brute | 2 660 m² | ||
| Zonage | M2, City of Commerce - Industrial | ||
| Prix | 10 219 560 € |
| Prix par m² | 3 841,94 € |
| Type de vente | Investissement ou propriétaire occupant |
| Type de bien | Industriel/Logistique |
| Sous-type de bien | Entrepot de réfrigération |
| Classe d’immeuble | C |
| Surface du lot | 0,55 ha |
| Surface utile brute | 2 660 m² |
| Nb d’étages | 2 |
| Année de construction/rénovation | 1962/2007 |
| Occupation | Mono |
| Ratio de stationnement | 0,07/1 000 m² |
| Hauteur libre du plafond | 5,79 m |
| Nb de portes élevées/de chargement | 4 |
| Nb d’accès plain-pied/portes niveau du sol | 2 |
| Zonage | M2, City of Commerce - Industrial |
CARACTÉRISTIQUES
- Glacière
- Terrain clôturé
- Siphons de sol
- Chambres de congélation
DISPONIBILITÉ DE L’ESPACE
- ESPACE
- SURFACE
- TYPE DE BIEN
- ÉTAT
- DISPONIBLE
Now available for lease, 6820–6830 E Washington Blvd. offers ±28,632 SF of fully sprinklered industrial space with a robust cold storage setup. The facility includes ±7,341 SF of freezer space and ±7,416 SF of cooler space, along with ±6,750 SF of office buildout. With 11 to 19-foot clear heights, four dock-high and two ground-level loading doors, and 600A/480V 3-phase power, the building is designed for efficient operations. Located in Commerce’s core industrial zone, the property is just over a mile from the I-5 freeway and within 10 miles of downtown Los Angeles. The site is zoned M2, supporting a wide range of industrial and commercial uses, and includes 20 parking spaces. Its proximity to major transportation corridors and ports makes it ideal for logistics, food distribution, or e-commerce fulfillment. The building is available immediately at a competitive gross lease rate of $2.00/SF, offering a strategic location and specialized infrastructure for tenants seeking cold storage capabilities in a central LA submarket.
| Espace | Surface | Type de bien | État | Disponible |
| 1er étage | 2 660 m² | Industriel/Logistique | Construction achevée | Maintenant |
1er étage
| Surface |
| 2 660 m² |
| Type de bien |
| Industriel/Logistique |
| État |
| Construction achevée |
| Disponible |
| Maintenant |
1er étage
| Surface | 2 660 m² |
| Type de bien | Industriel/Logistique |
| État | Construction achevée |
| Disponible | Maintenant |
Now available for lease, 6820–6830 E Washington Blvd. offers ±28,632 SF of fully sprinklered industrial space with a robust cold storage setup. The facility includes ±7,341 SF of freezer space and ±7,416 SF of cooler space, along with ±6,750 SF of office buildout. With 11 to 19-foot clear heights, four dock-high and two ground-level loading doors, and 600A/480V 3-phase power, the building is designed for efficient operations. Located in Commerce’s core industrial zone, the property is just over a mile from the I-5 freeway and within 10 miles of downtown Los Angeles. The site is zoned M2, supporting a wide range of industrial and commercial uses, and includes 20 parking spaces. Its proximity to major transportation corridors and ports makes it ideal for logistics, food distribution, or e-commerce fulfillment. The building is available immediately at a competitive gross lease rate of $2.00/SF, offering a strategic location and specialized infrastructure for tenants seeking cold storage capabilities in a central LA submarket.
TAXES FONCIÈRES
| Numéro de parcelle | 6336-004-018 | Évaluation des aménagements | 1 021 245 € |
| Évaluation du terrain | 8 016 320 € | Évaluation totale | 9 037 565 € |
TAXES FONCIÈRES
Présenté par
6820-6830 E Washington Blvd
Hum, une erreur s’est produite lors de l’envoi de votre message. Veuillez réessayer.
Merci ! Votre message a été envoyé.


