Votre e-mail a été envoyé.
Certaines informations ont été traduites automatiquement.
INFORMATIONS PRINCIPALES SUR LE PARC
- Scenic Ocean and Mountain Views
- Convenient Access
- Prime Hawaii Kai Location
- 24/7 Security
FAITS SUR LE PARC
| Espace total disponible | 1 162 m² | Type de parc | Parc de bureaux |
| Espace total disponible | 1 162 m² |
| Type de parc | Parc de bureaux |
TOUS LES ESPACES DISPONIBLES(5)
Afficher les loyers en
- ESPACE
- SURFACE
- DURÉE
- LOYER
- TYPE DE BIEN
- ÉTAT
- DISPONIBLE
This 2,988-square-foot former bank branch is located on the ground floor in Executive Plaza, Suite 110, at Hawaii Kai Towne Center. It features prominent street frontage and direct access from the courtyard, providing excellent visibility and exposure. The space is complemented by ample parking options, making it convenient for clients and employees alike. Ideal for retail, office, or service uses seeking a highly accessible location.
- Le loyer ne comprend pas les services publics, les frais immobiliers ou les services de l’immeuble.
- Espace en excellent état
- Convient pour 8 à 24 personnes
This 2,019 square foot retail space at Hawaii Kai Towne Center features a mostly open layout, ideal for versatile configurations. It offers excellent parking options for customers and prominent signage opportunities to attract attention. Perfect for retail businesses seeking high visibility and convenient access.
- Le loyer ne comprend pas les services publics, les frais immobiliers ou les services de l’immeuble.
- Convient pour 6 à 17 personnes
- Principalement open space
- Espace en excellent état
Great efficient suite with two offices and a small reception area.
- Le loyer ne comprend pas les services publics, les frais immobiliers ou les services de l’immeuble.
- 2 bureaux privés
- Convient pour 2 à 5 personnes
- Espace en excellent état
The project hosts a diverse mix of tenants, including financial institutions such as Central Pacific Bank and Edward Jones, along with medical and wellness providers like Wellness Partners Hawaii and OsteoStrong. This blend of office and retail within the Hawaii Kai Towne Center fosters a dynamic business environment. The presence of well-known tenants and the proximity to popular attractions further ensure a consistent flow of visitors, making Executive Plaza a strategic location for any business.
- Le loyer ne comprend pas les services publics, les frais immobiliers ou les services de l’immeuble.
- Plan d’étage avec bureaux fermés
- Prime Location
- Ample parking
- Entièrement aménagé comme Bureau standard
- Convient pour 13 à 40 personnes
- Scenic Views
This ADA-accessible 2nd-floor office at Hawaii Kai Towne Center offers great natural light, creating a bright and welcoming environment. It features multiple private offices and a spacious open area suitable for workstations, making it ideal for collaborative and individual work.
- Le loyer ne comprend pas les services publics, les frais immobiliers ou les services de l’immeuble.
- 3 bureaux privés
- Convient pour 6 à 17 personnes
- Espace en excellent état
| Espace | Surface | Durée | Loyer | Type de bien | État | Disponible |
| RDC, bureau 110 | 278 m² | Négociable | 494,82 € /m²/an 41,23 € /m²/mois 137 359 € /an 11 447 € /mois | Bureaux/Local commercial | - | 01/05/2026 |
| RDC, bureau Corporate Plaza 104 | 188 m² | Négociable | 494,82 € /m²/an 41,23 € /m²/mois 92 814 € /an 7 734 € /mois | Bureaux/Local commercial | - | 01/01/2026 |
| 2e étage, bureau 207 | 49 m² | Négociable | 412,35 € /m²/an 34,36 € /m²/mois 20 035 € /an 1 670 € /mois | Bureau | Construction achevée | Maintenant |
| 2e étage, bureau 210 | 461 m² | Négociable | 412,35 € /m²/an 34,36 € /m²/mois 190 087 € /an 15 841 € /mois | Bureau | Construction achevée | Maintenant |
| 2e étage, bureau Corporate Plaza 224 | 187 m² | Négociable | 412,35 € /m²/an 34,36 € /m²/mois 77 153 € /an 6 429 € /mois | Bureau | - | Maintenant |
6700 Kalanianaole Hwy - RDC – Bureau 110
6700 Kalanianaole Hwy - RDC – Bureau Corporate Plaza 104
6700 Kalanianaole Hwy - 2e étage – Bureau 207
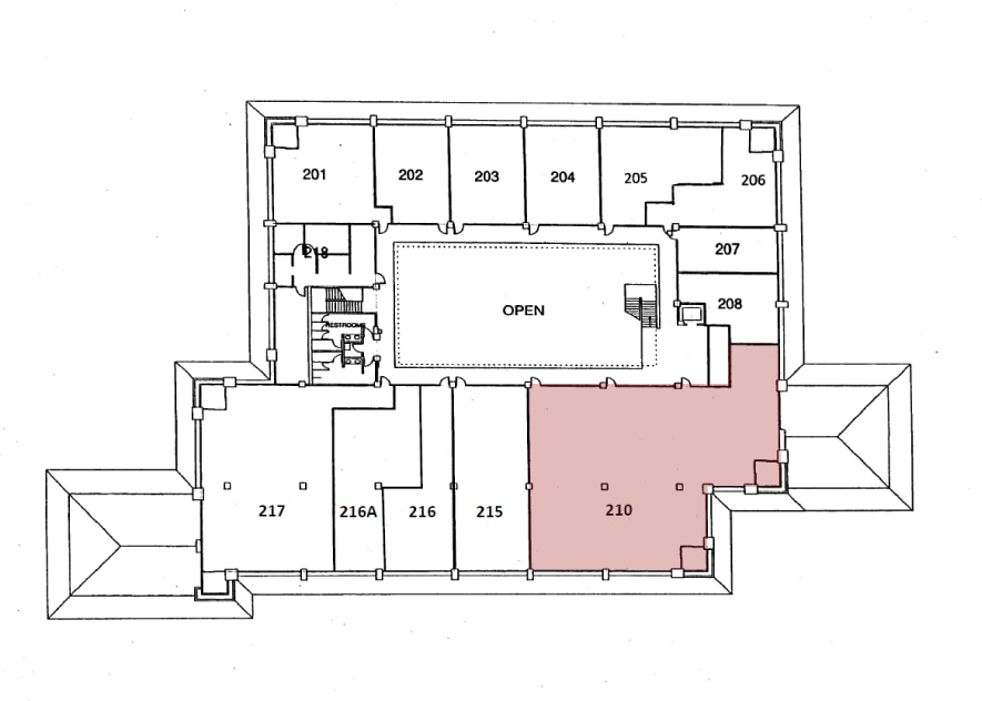
6700 Kalanianaole Hwy - 2e étage – Bureau 210
6700 Kalanianaole Hwy - 2e étage – Bureau Corporate Plaza 224
6700 Kalanianaole Hwy - RDC – Bureau 110
| Surface | 278 m² |
| Durée | Négociable |
| Loyer | 494,82 € /m²/an |
| Type de bien | Bureaux/Local commercial |
| État | - |
| Disponible | 01/05/2026 |
This 2,988-square-foot former bank branch is located on the ground floor in Executive Plaza, Suite 110, at Hawaii Kai Towne Center. It features prominent street frontage and direct access from the courtyard, providing excellent visibility and exposure. The space is complemented by ample parking options, making it convenient for clients and employees alike. Ideal for retail, office, or service uses seeking a highly accessible location.
- Le loyer ne comprend pas les services publics, les frais immobiliers ou les services de l’immeuble.
- Convient pour 8 à 24 personnes
- Espace en excellent état
6700 Kalanianaole Hwy - RDC – Bureau Corporate Plaza 104
| Surface | 188 m² |
| Durée | Négociable |
| Loyer | 494,82 € /m²/an |
| Type de bien | Bureaux/Local commercial |
| État | - |
| Disponible | 01/01/2026 |
This 2,019 square foot retail space at Hawaii Kai Towne Center features a mostly open layout, ideal for versatile configurations. It offers excellent parking options for customers and prominent signage opportunities to attract attention. Perfect for retail businesses seeking high visibility and convenient access.
- Le loyer ne comprend pas les services publics, les frais immobiliers ou les services de l’immeuble.
- Principalement open space
- Convient pour 6 à 17 personnes
- Espace en excellent état
6700 Kalanianaole Hwy - 2e étage – Bureau 207
| Surface | 49 m² |
| Durée | Négociable |
| Loyer | 412,35 € /m²/an |
| Type de bien | Bureau |
| État | Construction achevée |
| Disponible | Maintenant |
Great efficient suite with two offices and a small reception area.
- Le loyer ne comprend pas les services publics, les frais immobiliers ou les services de l’immeuble.
- Convient pour 2 à 5 personnes
- 2 bureaux privés
- Espace en excellent état
6700 Kalanianaole Hwy - 2e étage – Bureau 210
| Surface | 461 m² |
| Durée | Négociable |
| Loyer | 412,35 € /m²/an |
| Type de bien | Bureau |
| État | Construction achevée |
| Disponible | Maintenant |
The project hosts a diverse mix of tenants, including financial institutions such as Central Pacific Bank and Edward Jones, along with medical and wellness providers like Wellness Partners Hawaii and OsteoStrong. This blend of office and retail within the Hawaii Kai Towne Center fosters a dynamic business environment. The presence of well-known tenants and the proximity to popular attractions further ensure a consistent flow of visitors, making Executive Plaza a strategic location for any business.
- Le loyer ne comprend pas les services publics, les frais immobiliers ou les services de l’immeuble.
- Entièrement aménagé comme Bureau standard
- Plan d’étage avec bureaux fermés
- Convient pour 13 à 40 personnes
- Prime Location
- Scenic Views
- Ample parking
6700 Kalanianaole Hwy - 2e étage – Bureau Corporate Plaza 224
| Surface | 187 m² |
| Durée | Négociable |
| Loyer | 412,35 € /m²/an |
| Type de bien | Bureau |
| État | - |
| Disponible | Maintenant |
This ADA-accessible 2nd-floor office at Hawaii Kai Towne Center offers great natural light, creating a bright and welcoming environment. It features multiple private offices and a spacious open area suitable for workstations, making it ideal for collaborative and individual work.
- Le loyer ne comprend pas les services publics, les frais immobiliers ou les services de l’immeuble.
- Convient pour 6 à 17 personnes
- 3 bureaux privés
- Espace en excellent état
SÉLECTIONNER DES OCCUPANTS À CE BIEN
- ÉTAGE
- NOM DE L’OCCUPANT
- SECTEUR D’ACTIVITÉ
- 2e
- Diehl & Weger Attorneys at Law ALC
- Services professionnels, scientifiques et techniques
- Inconnu
- Edward Jones
- Finance et assurances
- 2e
- Hawaii American Water
- Services publics
- 2e
- Hawaii Dermatology & Plastic Surgery Center
- -
- RDC
- Hawaii Kai Chiropractic Center
- Santé et assistance sociale
- RDC
- Hawaii Kai Salon & Day Spa
- Services
- 2e
- Hawaii Mortgage Experts
- Finance et assurances
- 2e
- Hawaii Pacific Dental Group
- Santé et assistance sociale
- RDC
- Kaiser Permanente
- Santé et assistance sociale
- RDC
- OsteoStrong Hawaii Kai
- -
VUE D’ENSEMBLE DU PARC
Executive Plaza, located at 6700 Kalanianaole Hwy within the Hawaii Kai Towne Center, offers a premier business address in one of Honolulu’s most upscale neighborhoods. The building features flexible office spaces with open layouts, including Suite 210, making it ideal for a wide range of professional tenants. With sweeping ocean and mountain views, Executive Plaza provides an attractive setting for businesses. Tenants and their clients also benefit from ample customer parking, 24/7 security, and the steady foot traffic generated by the surrounding retail and dining establishments.
Présenté par
Hawaii Kai Towne Center Executive Plaza | Honolulu, HI 96825
Hum, une erreur s’est produite lors de l’envoi de votre message. Veuillez réessayer.
Merci ! Votre message a été envoyé.






