Votre e-mail a été envoyé.
Certaines informations ont été traduites automatiquement.
Informations principales
- Immense tour de bureaux emblématique de 25 étages située à l'angle de la 61e rue et de Madison Avenue, dans le très prisé Plaza District de Manhattan.
- Il présente une statue de la liberté à l'entrée, ainsi qu'un portrait complet de George Washington et des chevaliers en armure du XVIe siècle dans le hall.
- Idéalement situé dans le quartier commerçant le plus chic de New York, entouré de restaurants renommés, de boutiques de luxe et de clubs de remise en forme branchés.
- Les meilleurs équipements de sa catégorie incluent un café avec salon, un centre de conférence, un centre de remise en forme et un simulateur de golf exclusifs et ultramodernes.
- Doté d'intérieurs de bureaux sur mesure avec des finitions haut de gamme, de planchers de bois à larges planches, de hauteurs de plafond allant jusqu'à 14 pieds et de fenêtres du sol au plafond.
- Il permet de se déplacer facilement grâce à trois stations de métro situées à deux pâtés de maisons et à une courte distance en voiture des principales artères de New York, FDR Dr. et 12th Avenue.
Tous les espaces disponibles(6)
Afficher les loyers en
- Espace
- Surface
- Durée
- Loyer
- Type de bien
- Aménagement
- Disponible
- Entièrement aménagé comme Bureau standard
- Espace nécessitant des rénovations
- Aire de réception
- Principalement open space
- Ventilation et chauffage centraux
- Détecteur de fumée
- Entièrement aménagé comme Bureau standard
- Espace en excellent état
- Aire de réception
- Principalement open space
- Ventilation et chauffage centraux
- Détecteur de fumée
- Entièrement aménagé comme Bureau standard
- Espace en excellent état
- Détecteur de fumée
- Disposition open space
- Ventilation et chauffage centraux
- Entièrement aménagé comme Bureau standard
- Espace en excellent état
- Détecteur de fumée
- Principalement open space
- Ventilation et chauffage centraux
- Partiellement aménagé comme Bureau standard
- Espace en excellent état
- Aire de réception
- Disposition open space
- Ventilation et chauffage centraux
- Détecteur de fumée
- Ventilation et chauffage centraux
- Détecteur de fumée
| Espace | Surface | Durée | Loyer | Type de bien | Aménagement | Disponible |
| 2e étage | 1 359 m² | Négociable | Sur demande Sur demande Sur demande Sur demande | Bureau | Construction achevée | Maintenant |
| 11e étage | 859 m² | Négociable | Sur demande Sur demande Sur demande Sur demande | Bureau | Construction achevée | Maintenant |
| 12e étage | 859 m² | Négociable | Sur demande Sur demande Sur demande Sur demande | Bureau | Construction achevée | Maintenant |
| 16e étage | 814 m² | 1-15 Ans | Sur demande Sur demande Sur demande Sur demande | Bureau | Construction achevée | Maintenant |
| 17e étage | 232 m² | Négociable | Sur demande Sur demande Sur demande Sur demande | Bureau | Construction partielle | Maintenant |
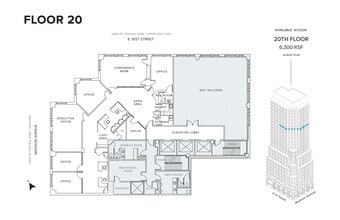
| 20e étage | 585 m² | Négociable | Sur demande Sur demande Sur demande Sur demande | Bureau | - | 01/09/2026 |
2e étage
| Surface |
| 1 359 m² |
| Durée |
| Négociable |
| Loyer |
| Sur demande Sur demande Sur demande Sur demande |
| Type de bien |
| Bureau |
| Aménagement |
| Construction achevée |
| Disponible |
| Maintenant |
11e étage
| Surface |
| 859 m² |
| Durée |
| Négociable |
| Loyer |
| Sur demande Sur demande Sur demande Sur demande |
| Type de bien |
| Bureau |
| Aménagement |
| Construction achevée |
| Disponible |
| Maintenant |
12e étage
| Surface |
| 859 m² |
| Durée |
| Négociable |
| Loyer |
| Sur demande Sur demande Sur demande Sur demande |
| Type de bien |
| Bureau |
| Aménagement |
| Construction achevée |
| Disponible |
| Maintenant |
16e étage
| Surface |
| 814 m² |
| Durée |
| 1-15 Ans |
| Loyer |
| Sur demande Sur demande Sur demande Sur demande |
| Type de bien |
| Bureau |
| Aménagement |
| Construction achevée |
| Disponible |
| Maintenant |
17e étage
| Surface |
| 232 m² |
| Durée |
| Négociable |
| Loyer |
| Sur demande Sur demande Sur demande Sur demande |
| Type de bien |
| Bureau |
| Aménagement |
| Construction partielle |
| Disponible |
| Maintenant |
20e étage
| Surface |
| 585 m² |
| Durée |
| Négociable |
| Loyer |
| Sur demande Sur demande Sur demande Sur demande |
| Type de bien |
| Bureau |
| Aménagement |
| - |
| Disponible |
| 01/09/2026 |
2e étage
| Surface | 1 359 m² |
| Durée | Négociable |
| Loyer | Sur demande |
| Type de bien | Bureau |
| Aménagement | Construction achevée |
| Disponible | Maintenant |
- Entièrement aménagé comme Bureau standard
- Principalement open space
- Espace nécessitant des rénovations
- Ventilation et chauffage centraux
- Aire de réception
- Détecteur de fumée
11e étage
| Surface | 859 m² |
| Durée | Négociable |
| Loyer | Sur demande |
| Type de bien | Bureau |
| Aménagement | Construction achevée |
| Disponible | Maintenant |
- Entièrement aménagé comme Bureau standard
- Principalement open space
- Espace en excellent état
- Ventilation et chauffage centraux
- Aire de réception
- Détecteur de fumée
12e étage
| Surface | 859 m² |
| Durée | Négociable |
| Loyer | Sur demande |
| Type de bien | Bureau |
| Aménagement | Construction achevée |
| Disponible | Maintenant |
- Entièrement aménagé comme Bureau standard
- Disposition open space
- Espace en excellent état
- Ventilation et chauffage centraux
- Détecteur de fumée
16e étage
| Surface | 814 m² |
| Durée | 1-15 Ans |
| Loyer | Sur demande |
| Type de bien | Bureau |
| Aménagement | Construction achevée |
| Disponible | Maintenant |
- Entièrement aménagé comme Bureau standard
- Principalement open space
- Espace en excellent état
- Ventilation et chauffage centraux
- Détecteur de fumée
17e étage
| Surface | 232 m² |
| Durée | Négociable |
| Loyer | Sur demande |
| Type de bien | Bureau |
| Aménagement | Construction partielle |
| Disponible | Maintenant |
- Partiellement aménagé comme Bureau standard
- Disposition open space
- Espace en excellent état
- Ventilation et chauffage centraux
- Aire de réception
- Détecteur de fumée
20e étage
| Surface | 585 m² |
| Durée | Négociable |
| Loyer | Sur demande |
| Type de bien | Bureau |
| Aménagement | - |
| Disponible | 01/09/2026 |
- Ventilation et chauffage centraux
- Détecteur de fumée
Visites 3D Matterport
Aperçu du bien
S'élevant à 25 étages au-dessus du centre-ville de Manhattan, le 667 Madison Avenue est largement reconnu comme l'un des plus beaux immeubles de bureaux de New York. Le majestueux immeuble de bureaux se trouve à l'angle de la 61e rue et de Madison Avenue, à quelques pas de Central Park, dans le Plaza District. D'une superficie de 273 114 pieds carrés, la tour emblématique est recouverte d'une façade en granit mise en valeur par une garniture décorative en calcaire. Le design détaillé de l'établissement associe des hauteurs de plafond immersives à de superbes finitions et à des œuvres d'art dignes d'un musée. Les locataires et les invités sont accueillis par une statue de la Liberté en bronze de 10 pieds de haut réalisée par Frédéric Auguste Bartholdi. Le portrait intégral de George Washington et des chevaliers en armure du XVIe siècle réalisé par Gilbert Stuart est également exposé. Le bâtiment dispose également d'équipements tels qu'un centre de remise en forme avec personnel et un simulateur de golf à l'usage exclusif des locataires. La proximité du 667 Madison Avenue avec de nombreuses options de transport en commun ainsi que les services et commodités environnants accroît son attrait. L'établissement se trouve à deux pâtés de maisons de trois stations de métro, à moins d'un kilomètre à l'est de FDR Drive et du pont Ed Koch Queensboro, et à 1,5 km à l'ouest de la 12e Avenue. Au cœur du quartier commerçant le plus célèbre de New York, le 667 Madison Avenue est entouré de restaurants raffinés, de boutiques chics, de clubs de remise en forme sophistiqués et d'hôtels urbains. Le 667 Madison Avenue offre aux entreprises un environnement sophistiqué et productif au cœur du quartier florissant du Plaza District de Manhattan.
- Accès 24 h/24
- Ligne d’autobus
- Accès contrôlé
- Concierge
- Installations de conférences
- Centre de fitness
- Métro
- Property Manager sur place
- Système de sécurité
- Certifié Energy Star
- Éclairage d’appoint
- Stores automatiques
- Climatisation
- Balcon
Informations sur l’immeuble
Brochure marketing
À proximité
Hôpitaux |
|||
|---|---|---|---|
| Lenox Hill Hospital | Soins intensifs | 3 min en voiture | 1,9 km |
| New York - Presbyterian Hospital | Soins intensifs | 3 min en voiture | 1,9 km |
| Mount Sinai St. Luke's Roosevelt Hospital | Soins intensifs | 3 min en voiture | 2 km |
| Hospital for Special Surgery | Soins intensifs | 3 min en voiture | 2,4 km |
| New York University Langone Medical Center | Soins intensifs | 7 min en voiture | 3,9 km |
Restaurants |
|||
|---|---|---|---|
| Perrine | Français | €€€ | 2 min. à pied |
| Amaranth Restaurant | Méditerranéen | €€ | 2 min. à pied |
| Bar Room | Américain | €€€ | 4 min. à pied |
Local commercial |
||
|---|---|---|
| Chase Bank | Banque | 3 min. à pied |
| Ralph Lauren | Vêtements unisexes | 2 min. à pied |
| Apple | Électronique grand public | 3 min. à pied |
Hôtels |
|
|---|---|
| Ritz-Carlton |
253 chambres
7 min. à pied
|
À propos du quartier District de la Plaza
Le Plaza District est l'une des destinations de bureaux les plus importantes et les plus en vue du pays. La proximité de Central Park, l'accès à des boutiques de premier ordre le long des Cinquième et Madison Avenues et l'abondance d'options de transport en commun font de ce quartier un choix de premier ordre pour les locataires.
Le quartier abrite de nombreuses sociétés nationales et multinationales, dominées par des locataires des secteurs financier et juridique. Parmi les plus grands occupants du quartier figurent les géants de la finance JPMorgan Chase, Blackstone et Lazard. Mais le quartier accueille également des locataires des secteurs créatifs des médias et du design, tels que CBS Media et Polo Ralph Lauren.
À l'avenir, le Plaza District bénéficiera du projet de JPMorgan Chase de tirer parti de la législation Midtown Rezoning et de construire son siège social de 2,5 millions de pieds carrés au 270 Park Avenue.
Équipe de location
Samia Bali, Assistant
Glenn Frankel, Vice President
À propos du propriétaire
Autres biens dans le portefeuille HARTZ MOUNTAIN INDUSTRIES, INC.
À propos de l’architecte
Autres biens dans le portefeuille Helpern Architects
Présenté par
667 Madison Ave
Hum, une erreur s’est produite lors de l’envoi de votre message. Veuillez réessayer.
Merci ! Votre message a été envoyé.



















