Votre e-mail a été envoyé.
6661 Huntley Rd Industriel/Logistique 1 954 m² À vendre Columbus, OH 43229 2 235 272 € (1 144,20 €/m²)



Certaines informations ont été traduites automatiquement.
INFORMATIONS PRINCIPALES SUR L'INVESTISSEMENT
- Opportunité propriétaire-occupant à Worthington
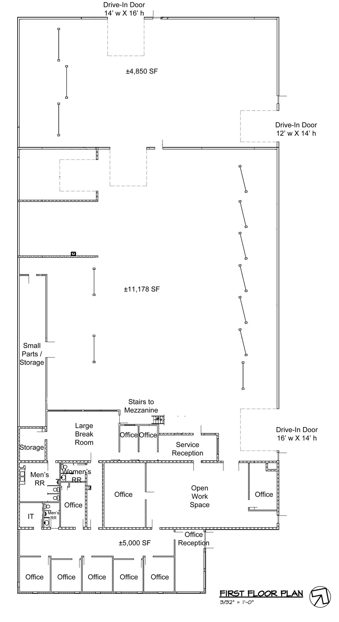
- ± 16 028 pieds carrés d'espace d'entrepôt + 1 500 pieds carrés de mezzanine
- Conduites de compresseur d'air et système d'échappement aériens
- Bâtiment industriel de 21 028 pieds carrés
- Trois portes Drive-In
- Zoné I-1 (industrie légère restreinte)
RÉSUMÉ ANALYTIQUE
TAXES ET FRAIS D’EXPLOITATION (RÉEL - 2025) Cliquez ici pour accéder à |
ANNUEL | ANNUEL PAR m² |
|---|---|---|
| Taxes |
-
|
-
|
| Frais d’exploitation |
-
|
-
|
| Total des frais |
$99,999
|
$9.99
|
TAXES ET FRAIS D’EXPLOITATION (RÉEL - 2025) Cliquez ici pour accéder à
| Taxes | |
|---|---|
| Annuel | - |
| Annuel par m² | - |
| Frais d’exploitation | |
|---|---|
| Annuel | - |
| Annuel par m² | - |
| Total des frais | |
|---|---|
| Annuel | $99,999 |
| Annuel par m² | $9.99 |
INFORMATIONS SUR L’IMMEUBLE
CARACTÉRISTIQUES
- Signalisation
- Réception
SERVICES PUBLICS
- Eau - Ville
- Égout - Ville
- Chauffage - Gaz
DISPONIBILITÉ DE L’ESPACE
- ESPACE
- SURFACE
- TYPE DE BIEN
- ÉTAT
- DISPONIBLE
21,028 SF Industrial Building ±5,000 SF of Office Space Reception Area, 8 Offices, Open Work Space ±16,028 SF of Warehouse Space + 1,500 SF Mezzanine Up to 18' Clear Height Service Reception Area, 2 Offices, Large Break Room Three Drive-In Doors Overhead Air Compressor Lines & Exhaust System Power | 120/208V SYSTEM & 277/480V SYSTEM
| Espace | Surface | Type de bien | État | Disponible |
| 1er étage | 1 954 m² | Industriel/Logistique | Construction achevée | Maintenant |
1er étage
| Surface |
| 1 954 m² |
| Type de bien |
| Industriel/Logistique |
| État |
| Construction achevée |
| Disponible |
| Maintenant |
1er étage
| Surface | 1 954 m² |
| Type de bien | Industriel/Logistique |
| État | Construction achevée |
| Disponible | Maintenant |
21,028 SF Industrial Building ±5,000 SF of Office Space Reception Area, 8 Offices, Open Work Space ±16,028 SF of Warehouse Space + 1,500 SF Mezzanine Up to 18' Clear Height Service Reception Area, 2 Offices, Large Break Room Three Drive-In Doors Overhead Air Compressor Lines & Exhaust System Power | 120/208V SYSTEM & 277/480V SYSTEM
TAXES FONCIÈRES
| N° de parcelle | Évaluation des aménagements | 431 407 € (2024) | |
| Évaluation du terrain | 64 212 € (2024) | Évaluation totale | 495 620 € (2024) |
TAXES FONCIÈRES
Présenté par
6661 Huntley Rd
Hum, une erreur s’est produite lors de l’envoi de votre message. Veuillez réessayer.
Merci ! Votre message a été envoyé.



