Connectez-vous/S’inscrire
Votre e-mail a été envoyé.
66321 Pierson Blvd Local commercial 593 m² À vendre Desert Hot Springs, CA 92240 1 306 020 € (2 203,43 €/m²)



Certaines informations ont été traduites automatiquement.
INFORMATIONS PRINCIPALES SUR L'INVESTISSEMENT
- Highest & Best Use: Cannabis Microbusiness
- Two Parcels
- .9 Acres Also Available Land APN: 641-041-002, 003, 040, 039, 038 and 037
- The purchase price includes use of the Cannabis Microbusiness License
- Cannabis Friendly City
- Parking: 10+24 in Fenced Parking Lot
RÉSUMÉ ANALYTIQUE
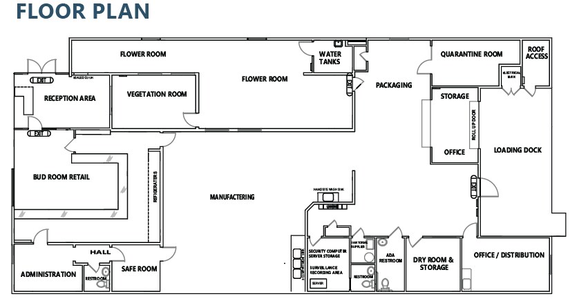
¦ Your Opportunity To Own Both The Real Estate And A Fully Licensed, Vertically Integrated Cannabis Facility
¦ Free Standing 5,836 SF Cannabis Building On .6 Acres
¦ Allows Dispensary, Delivery, Manufacturing Kitchen, Distribution, and Cultivation
¦ Prime Location On High-Traffic Pierson Blvd With Easy Ingress/Egress
¦ No Cannabis Manufacturing Tax in Desert Hot Springs
¦ Free Standing 5,836 SF Cannabis Building On .6 Acres
¦ Allows Dispensary, Delivery, Manufacturing Kitchen, Distribution, and Cultivation
¦ Prime Location On High-Traffic Pierson Blvd With Easy Ingress/Egress
¦ No Cannabis Manufacturing Tax in Desert Hot Springs
INFORMATIONS SUR L’IMMEUBLE
Type de vente
Investissement ou propriétaire occupant
Type de bien
Local commercial
Sous-type de bien
Immeuble de commerce
Surface de l’immeuble
593 m²
Classe d’immeuble
C
Année de construction/rénovation
1965/2000
Prix
1 306 020 €
Prix par m²
2 203,43 €
Occupation
Mono
Hauteur du bâtiment
1 étage
Coefficient d’occupation des sols de l’immeuble
0,25
Surface du lot
0,24 ha
Zone de développement économique [USA]
Oui
Zonage
C1 - Top Parcel (045) Downtown Commercial;
Bottom Parcel (044): MU-N (Mixed Use Neighborhood)
Stationnement
10 places (16,87 places par 1 000 m² loué)
Façade
CARACTÉRISTIQUES
- Terrain clôturé
- Climatisation
Walk Score®
Très praticable à pied (72)
PRINCIPAUX COMMERCES À PROXIMITÉ
TAXES FONCIÈRES
| N° de parcelle | Évaluation des aménagements | 2 690 145 € | |
| Évaluation du terrain | 120 116 € | Évaluation totale | 2 810 261 € |
TAXES FONCIÈRES
N° de parcelle
Évaluation du terrain
120 116 €
Évaluation des aménagements
2 690 145 €
Évaluation totale
2 810 261 €
1 sur 8
VIDÉOS
VISITE EXTÉRIEURE 3D MATTERPORT
VISITE 3D
PHOTOS
STREET VIEW
RUE
CARTE
1 sur 1
Présenté par
66321 Pierson Blvd
Vous êtes déjà membre ? Connectez-vous
Hum, une erreur s’est produite lors de l’envoi de votre message. Veuillez réessayer.
Merci ! Votre message a été envoyé.

