Votre e-mail a été envoyé.
Certaines informations ont été traduites automatiquement.
Informations principales
- Beaucoup de lumière naturelle
- Près de BART
- À proximité de nombreuses commodités
- Dublin/Pleasanton BART station short walk away
Tous les espaces disponibles(3)
Afficher les loyers en
- Espace
- Surface
- Durée
- Loyer
- Type de bien
- Aménagement
- Disponible
- Le loyer comprend les services publics, les services de l’immeuble et les frais immobiliers.
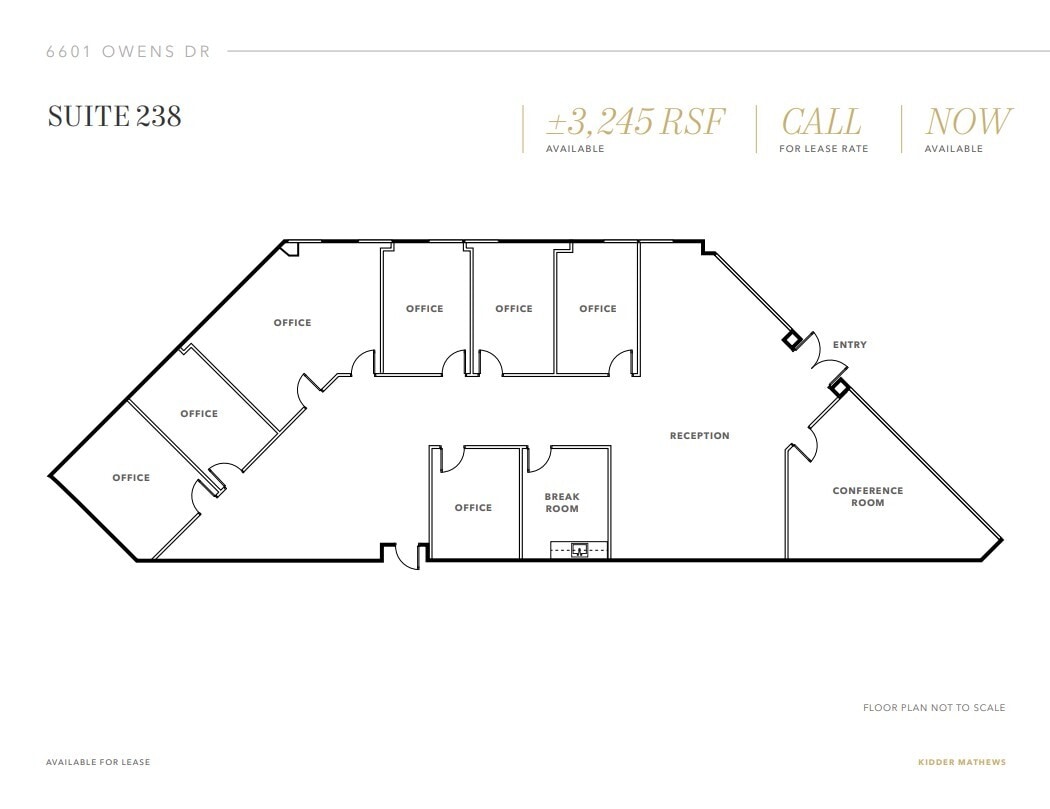
- 9 bureaux privés
- Entièrement aménagé comme Bureau standard
- 2 salles de conférence
This second floor office space features seven private offices, an open reception area, one conference room, and a breakroom.
- Entièrement aménagé comme Bureau standard
- 1 salle de conférence
- 7 bureaux privés
- Aire de réception
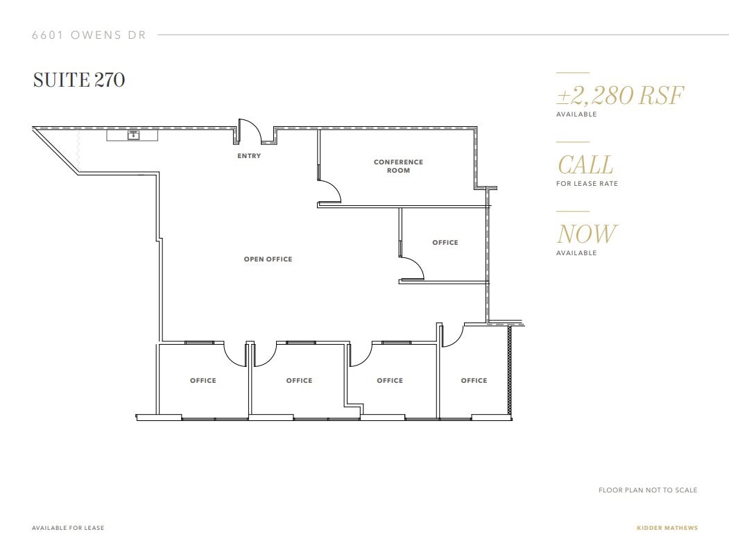
four window offices, one interior office and conference room with break room
- Le loyer comprend les services publics, les services de l’immeuble et les frais immobiliers.
- Principalement open space
- 1 salle de conférence
- Entièrement aménagé comme Bureau standard
- 5 bureaux privés
| Espace | Surface | Durée | Loyer | Type de bien | Aménagement | Disponible |
| 1er étage, bureau 150 | 582 m² | Négociable | Sur demande Sur demande Sur demande Sur demande | Bureau | Construction achevée | Maintenant |
| 2e étage, bureau 238 | 301 m² | Négociable | Sur demande Sur demande Sur demande Sur demande | Bureau | Construction achevée | Maintenant |
| 2e étage, bureau 270 | 212 m² | Négociable | Sur demande Sur demande Sur demande Sur demande | Bureau | Construction achevée | Maintenant |
1er étage, bureau 150
| Surface |
| 582 m² |
| Durée |
| Négociable |
| Loyer |
| Sur demande Sur demande Sur demande Sur demande |
| Type de bien |
| Bureau |
| Aménagement |
| Construction achevée |
| Disponible |
| Maintenant |
2e étage, bureau 238
| Surface |
| 301 m² |
| Durée |
| Négociable |
| Loyer |
| Sur demande Sur demande Sur demande Sur demande |
| Type de bien |
| Bureau |
| Aménagement |
| Construction achevée |
| Disponible |
| Maintenant |
2e étage, bureau 270
| Surface |
| 212 m² |
| Durée |
| Négociable |
| Loyer |
| Sur demande Sur demande Sur demande Sur demande |
| Type de bien |
| Bureau |
| Aménagement |
| Construction achevée |
| Disponible |
| Maintenant |
1er étage, bureau 150
| Surface | 582 m² |
| Durée | Négociable |
| Loyer | Sur demande |
| Type de bien | Bureau |
| Aménagement | Construction achevée |
| Disponible | Maintenant |
- Le loyer comprend les services publics, les services de l’immeuble et les frais immobiliers.
- Entièrement aménagé comme Bureau standard
- 9 bureaux privés
- 2 salles de conférence
2e étage, bureau 238
| Surface | 301 m² |
| Durée | Négociable |
| Loyer | Sur demande |
| Type de bien | Bureau |
| Aménagement | Construction achevée |
| Disponible | Maintenant |
This second floor office space features seven private offices, an open reception area, one conference room, and a breakroom.
- Entièrement aménagé comme Bureau standard
- 7 bureaux privés
- 1 salle de conférence
- Aire de réception
2e étage, bureau 270
| Surface | 212 m² |
| Durée | Négociable |
| Loyer | Sur demande |
| Type de bien | Bureau |
| Aménagement | Construction achevée |
| Disponible | Maintenant |
four window offices, one interior office and conference room with break room
- Le loyer comprend les services publics, les services de l’immeuble et les frais immobiliers.
- Entièrement aménagé comme Bureau standard
- Principalement open space
- 5 bureaux privés
- 1 salle de conférence
Aperçu du bien
• Excellent accès à l'I-580/I-680 • Comcast et fibre optique pour le bâtiment • À distance de marche des restaurants et des magasins de détail • Excellent taux de stationnement : 4/1000
- Trains de banlieue
- Installations de conférences
- Property Manager sur place
- Signalisation
Informations sur l’immeuble
Présenté par
6601 Owens Dr
Hum, une erreur s’est produite lors de l’envoi de votre message. Veuillez réessayer.
Merci ! Votre message a été envoyé.









