Votre e-mail a été envoyé.
Certaines informations ont été traduites automatiquement.
Disponibilité de l’espace (2)
Afficher le tarif en
- Espace
- Surface
- Durée
- Loyer
- Type de loyer
| Espace | Surface | Durée | Loyer | Type de loyer | ||
| 1er étage, bureau Building E | 88 m² | Négociable | 422,30 € /m²/an 35,19 € /m²/mois 37 311 € /an 3 109 € /mois | Brut modifié | ||
| 1er étage, bureau Building G | 60 m² | Négociable | Sur demande Sur demande Sur demande Sur demande | À déterminer |
1er étage, bureau Building E
Corner building for lease in the 50,000 SF Shoppes on Broad retail development Located in downtown Newark, corner of Broad at New Street Tremendous visibility from all points of Broad street and Military Park Across from Whole Foods, Petco and City MD
- Il est possible que le loyer annoncé ne comprenne pas certains services publics, services d’immeuble et frais immobiliers.
- Partiellement aménagé comme Local commercial standard
- Convient pour 3 à 8 personnes
1er étage, bureau Building G
- Entièrement aménagé comme Local commercial standard
Types de loyers
Le montant et le type de loyer que l’occupant (locataire) est tenu de payer au propriétaire (bailleur) sur la durée du bail sont négociés avant la signature du bail par les deux parties. Le type de loyer varie selon les services fournis. Par exemple, le prix d’un loyer triple net est habituellement inférieur à celui d’un bail à service complet puisque l’occupant est tenu d’assumer des dépenses supplémentaires par rapport au loyer de base. Contacter le broker chargé de l’annonce pour bien comprendre les coûts associés ou les dépenses supplémentaires pour chaque type de loyer.
1. Service complet: Un loyer qui comprend des services d’immeuble standards normaux fournis par le propriétaire dans le cadre d’une location annuelle de base.
2. Double net (NN): L’occupant paie seulement deux des frais de l’immeuble. Le propriétaire et l’occupant déterminent ces frais spécifiques avant la signature du bail.
3. Triple net (NNN): Un bail selon lequel l’occupant est responsable de tous les frais liés à sa part proportionnelle d’occupation de l’immeuble.
4. Brut modifié: Le brut modifié est un type général de bail dans lequel l’occupant est en général responsable de sa part proportionnelle d’une ou de plusieurs dépenses. C’est le propriétaire qui paie les frais restants. Consultez la liste ci-dessous pour connaître les structures de loyers bruts modifiés les plus courantes : 4. Plus services publics: Un type de bail brut modifié, où l’occupant est responsable à hauteur de sa part proportionnelle des services publics en plus du loyer. 4. Plus nettoyage: Un type de bail brut modifié, où l’occupant est responsable à hauteur de sa part proportionnelle du nettoyage en plus du loyer. 4. Plus électricité: Un type de bail brut modifié, où l’occupant est responsable à hauteur de sa part proportionnelle du coût de la consommation électrique en plus du loyer. 4. Plus électricité et nettoyage: Un type de bail brut modifié, où l’occupant est responsable à hauteur de sa part proportionnelle du coût de la consommation électrique et du nettoyage en plus du loyer. 4. Plus services publics et charges: Un type de bail brut modifié où l’occupant est responsable à hauteur de sa part proportionnelle des services publics et du coût de nettoyage en plus du loyer. 4. Bail industriel brut: Un type de bail brut modifié dans lequel l’occupant paie un ou plusieurs des frais en plus du loyer. Le propriétaire et l’occupant déterminent ces frais spécifiques avant la signature du bail.
5. Électricité à la charge de l’occupant: Le propriétaire paie pour tous les services et l’occupant est responsable de sa propre utilisation de l’éclairage et des prises électriques dans l’espace qu’il occupe.
6. Négociable ou sur demande: Cette option est utilisée lorsque le contact de location n’indique pas le type de loyer ou de service.
7. À déterminer: À déterminer : utilisé pour les immeubles dont le type de services ou de loyer n’est pas connu, souvent quand l’immeuble n’est pas encore construit.
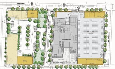
Plan du site
Sélectionner des occupants à E & F
- Occupant
- Description
- US localisations
- Couverture
- Cold Stone Creamery
- Glaces
- 619
- International
- Halsey Cleaners
- Pressing
- 1
- Local
- Panera
- Hébergement et restauration
- 1
- -
- Prudential Financial
- Assurance
- 1 093
- International
- QDOBA
- Restauration rapide
- 1 051
- International
| Occupant | Description | US localisations | Couverture |
| Cold Stone Creamery | Glaces | 619 | International |
| Halsey Cleaners | Pressing | 1 | Local |
| Panera | Hébergement et restauration | 1 | - |
| Prudential Financial | Assurance | 1 093 | International |
| QDOBA | Restauration rapide | 1 051 | International |
Informations sur l’immeuble
| Espace total disponible | 149 m² | Surface commerciale utile | 1 301 m² |
| Type de bien | Local commercial | Surface totale du terrain | 1,29 ha |
| Sous-type de bien | Immeuble de commerce | Année de construction | 2014 |
| Espace total disponible | 149 m² |
| Type de bien | Local commercial |
| Sous-type de bien | Immeuble de commerce |
| Surface commerciale utile | 1 301 m² |
| Surface totale du terrain | 1,29 ha |
| Année de construction | 2014 |
Principaux commerces à proximité
Présenté par
E & F | 635-649 Broad St
Hum, une erreur s’est produite lors de l’envoi de votre message. Veuillez réessayer.
Merci ! Votre message a été envoyé.







